NewConstruction Igangsettingstillatelse Naeringsbygg

Nytt datasenter med tekniske anlegg i Kvandalen, Narvik

📍 Nordmoveien 301 , 8530 BJERKVIK

Nøkkelinfo

Sakstype
Nybygg
Bygningstype
Naeringsbygg
Bruksareal
7,850 m²
Kommune
Narvik
Fylke
Nordland - Nordlánnda
Gnr / Bnr
10 / 742
Saksnummer
25/3833
Fase
Igangsettingstillatelse

Om byggesaken

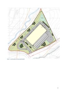
Nytt datasenter på ca. 7 850 m² BRA og 20 044 m² BYA oppføres på en 25 mål stor, planert tomt i Kvandalen, Narvik. Bygget består av en rektangulær teknisk hall med tilhørende kontorfløy i tre etasjer. Bygget har bærende stålkonstruksjon med betongdekker, sandwichpaneler i stål på fasader og betongsandwichbrystning. Tekniske installasjoner som kjøleenheter plasseres på taket, og utendørs installasjoner på betongplate langs sørfasaden. Utomhusanlegg inkluderer parkeringsplasser for 31 biler inkl. HC-plass, sykkelparkering, driftsveier, snøopplag, beplantning og belysning. Overvann håndteres lokalt med åpne grøfter og fordrøyningsanlegg. Det etableres brannvannstank med høytrykks vanntåkeanlegg innvendig. Bygget er tilpasset universell utforming og arbeidsplassforskriften. Støyutredning viser at støy fra datasenteret ikke vil gi vesentlig ulempe for nærliggende bebyggelse. Prosjektet har godkjente planer for vann, avløp, geoteknikk, brann, ventilasjon, elektro, og landskapsutforming, med flere ansvarlige foretak og kontrollører involvert. Igangsettingstillatelser for grunnarbeid, råbygg, tett bygg, innredning og utomhus er gitt.

Produkter og materialer

Grunnarbeid Drens- og overvannssystem

Åpne overvannsgrøfter, fordrøyningsanlegg, erosjonssikring

Overvannshåndtering på tomta

Gulv Betonggulv

Betonggulv i teknisk hall og kontorfløy

Gulv i bygget

Terrasse Utendørs betongplate for installasjoner

Betongplate langs sørfasade for utendørs installasjoner

Utendørs betongplate for tekniske installasjoner

Grunnarbeid Planering og fylling

🧱 Sprengsteinmasser, pukk, grus

Planert tomt med arronderte fyllingsskråninger

Grunnarbeid for bygging av datasenteret

VVS Brannvannstank og høytrykks vanntåkeanlegg

Brannvannstank med ventil-/pumpekammer, høytrykks vanntåkeanlegg innvendig

Brannslokkeanlegg for datasenteret

Terrasse Utomhusanlegg

🧱 Asfalt, betong, granittkantstein, gress, trær

Parkeringsplasser, gangveier, snøopplag, beplantning, belysning, gjerder og porter

Utomhusanlegg rundt datasenteret

Betong Plasstøpte betongkonstruksjoner

Stripefundament og punkfundament

Fundamentering og plasstøpte betongkonstruksjoner for datasenteret

Stål Bærende stålkonstruksjoner

🧱 Stålsøyler og fagverkskonstruksjoner

Stålkonstruksjon for hall og mesaninetasje i hall

Bærende konstruksjon i stål for datasenterets tekniske hall og mesaninetasje

Elektro Brannalarmanlegg og ledesystem

Brannalarmanlegg NS3960:2019, ledesystem iht. NS1838:2013

Brann- og sikkerhetssystemer

Vinduer Fasadevindu

Antall: 26

11 vinduer på nordfasade, 11 på østfasade, 4 på sørfasade

Fasadevindu i betongfasader

Ventilasjon Ventilasjon og klimainstallasjoner

Ventilasjon for kontordel og tekniske rom, unntatt datahall ventilasjon som prosjekteres senere

Ventilasjonsanlegg for datasenteret

Fasade Sandwichpaneler i stål

🧱 Isolerte sandwichpaneler i stål, farge Mountain grey

Langsgående betongsandwichbrystning nederst, sandwichpaneler øverst

Fasadeelementer for datasenteret

Garasjeport Varemottak og manøvreringsareal

Antall: 2

To oppstillingsplasser for varetransport med snuplass ved sørøstlige hjørne

Varemottak og tilhørende porter

Dører Fasadedører

Antall: 4

1 dør på nordfasade, 1 dør på østfasade, 2 dører på sørfasade

Fasadedører i betongfasader

VVS Vannforsynings- og avløpsanlegg

VA-ledninger Ø110 mm og Ø180 mm, spillvannsledning Ø160 mm, pumpestasjon

Vann- og avløpssystem for datasenteret

Trapper Innvendige trapper

Antall: 2

To innvendige trapper i bygget

Tak Flatt tak med hulldekke

Flatt tak med hulldekke over datahallen

Takstruktur med god luftlydisolasjon

Plantegning

Datahall 4,657.6 m²

Etasje 1 4,657.6 m²

Rom Areal Vinduer Dører
Fire Pump Room 101 65.8 m² 0 1
Pod 102 31.3 m² 0 1
Storage 103 44.4 m² 0 0
Poe 104 11.9 m² 0 0
A.WC 105 4.5 m² 0 0
F.WC 106 4.6 m² 0 0
Reception Office 107 20.7 m² 0 0
Reception 108 26.0 m² 0 0
Boot Room 109 16.3 m² 0 0
Goods Lift 110 8.4 m² 0 0
GPU Lobby 111 8.6 m² 0 0
GPU Storage/Workshop 112 61.1 m² 0 0
Deboxing Room 113 37.7 m² 0 0
Delivery Bay 114 96.7 m² 0 0
Technical Hall 115 4,057.6 m² 0 0

Fasader

Datahall

Nord
Materiale
Betong
Taktype
Flatt tak
Vinduer
11
Dører
1
Synlige etasjer
2
Øst
Materiale
Betong
Taktype
Flatt tak
Vinduer
11
Dører
1
Synlige etasjer
2
Vest
Materiale
Betong
Taktype
Flatt tak
Vinduer
0
Dører
0
Balkonger
1
Synlige etasjer
2
Sør
Materiale
Betong
Taktype
Flatt tak
Vinduer
4
Dører
2
Balkonger
1
Synlige etasjer
2

Hendelser

13.04.2026 Supplering av søknad for gbnr. 10/742 - nye ansvarsretter og oppdatert gjennomføringsplan
13.02.2026 Igangsettingstillatelse III - gbnr. 10/742 - Kvandalen - rammetillatelse for etablering av nytt bygg
10.02.2026 Søknad om igangsettingstillatelse for etablering av nytt anlegg på gbnr.10/742 Kvandalen
09.01.2026 Søknad om dispensasjon fra plikten til å bygge tilfluktsrom
27.11.2025 Vedtak igangsettingstillatelse II gbnr. 10/742 - Kvandalen - rammetillatelse for etablering av nytt bygg
26.11.2025 Vi innvilger søknaden om samtykke etter automatisk saksbehandling
26.11.2025 Søknad om igangsettingstillatelse for etablering av nytt anlegg på gbnr. 10/742 Kvandalen
27.10.2025 Igangsettingstillatelse I - 10/742 - Kvandalen - rammetillatelse for etablering av nytt bygg
22.10.2025 Kopi av dispensasjon fra plikten til å bygge tilfluktsrom – Gbnr. 10/742 Narvik
21.10.2025 Vedtak - Tiltak om rammetillatelse for etablering av nytt anlegg(datasenter) på gbnr. 10/742 Kvandalen
21.10.2025 Søknad om igangsettingstillatelse for etablering av nytt anlegg på gbnr.10/742 Kvandal
17.10.2025 Supplering av søknad for etablering av nytt anlegg på gbnr. 10/742 Kvandalen
13.10.2025 Søknad om rammetillatelse for ettablering av nytt anlegg på gbnr. 10/742 Kvandalen
13.10.2025 Tilbakemelding om mangler - 10/742 - Kvandalen - rammetillatelse for etablering av nytt bygg