NewConstruction Soeknad Naeringsbygg

To nye næringsbygg på Østre Grenstøl 22 og 24, Tvedestrand

📍 Østre Grenstøl 22 , 4900 TVEDESTRAND

Nøkkelinfo

Sakstype
Nybygg
Bygningstype
Naeringsbygg
Bruksareal
731 m²
Kommune
Tvedestrand
Fylke
Agder
Gnr / Bnr
29 / 147
Saksnummer
2026/720
Fase
Søknad

Om byggesaken

To nye næringsbygg oppført på eiendommene Østre Grenstøl 22 og 24 i Tvedestrand kommune. Byggene er industribygg med samlet bruksareal på ca. 464,5 m² og 266,8 m² fordelt på to etasjer hver. Byggene inneholder kontorer, lager, showrom, møterom, tekniske rom, garderober, WC, dusj, heis og andre funksjonsrom. Konstruksjonen består av betongfundamenter, stålkonstruksjoner, prefabrikerte hulldekker, taktekking og fasadeelementer. Prosjektet inkluderer også grunnarbeider, terrengarbeider, VA-anlegg, ventilasjon, elektro, brannalarm og løfteinnretninger. Byggene har heis og er tilrettelagt med HC WC. Avfallsplan og sluttrapport er utarbeidet for byggeprosjektet.

Produkter og materialer

Grunnarbeid Terrengarbeider og grunnarbeider

Grunnarbeider med tilhørende terrengarbeider, sikring av skrenter, overvannshåndtering og VA-anlegg

Grunnarbeid og terrengarbeid for fundamentering og tilrettelegging av byggeplass

Fasade Fasadeelementer

Montering av fasadeelementer

Fasadeelementer for yttervegger

Trapper Innvendige trapper

Trapper mellom etasjer i byggene

Innvendige trapper for etasjeadkomst

Annet Avfallsplan og miljøsanering

Avfallsplan med sortering og disponering av byggeavfall

Avfallshåndtering og miljøsanering under byggeprosessen

Gulv Gulvbelegg

Gulvbelegg i kontor- og lagerområder

Gulvbelegg og overflater

Dører Ytterdører og innvendige dører

Montering av ytterdører og innvendige dører i kontor- og lagerområder

Dører for adkomst og rominndeling

Betong Betongfundamenter og hulldekker

🧱 Betong

Betongfundamenter for bærende konstruksjon, prefabrikerte hulldekker

Betongfundamenter og dekker for bærende konstruksjon

Stål Stålkonstruksjon

🧱 Stål

Stålkonstruksjon for bærende ramme og tak, vegg og fasadeelementer

Stålkonstruksjon for byggets bærende ramme og elementmontasje

Vinduer Fasadevindu

Montering av vinduer i fasadeelementer

Vinduer for kontor- og lagerområder

Ventilasjon Ventilasjon og klimainnstallasjoner

Ventilasjon- og klimainnstallasjoner

Ventilasjonsanlegg for inneklima

Maling Innvendig maling

Innvendig maling og overflatebehandling

Maling av innvendige flater

Tak Taktekking

Taktekking i henhold til bygningsfysikk og våtromsarbeider

Taktekking for industribyggene

Heis Personheis

Antall: 2

Heisinstallasjon i begge bygg

Heis for tilgjengelighet mellom etasjer

VVS Sanitær og varme

Innvendige sanitærinstallasjoner, vannbåren varme, varmefordeling

Sanitær- og varmeanlegg for byggene

Elektro Brannalarmanlegg kategori 2 og elektroinstallasjoner

Brannalarmanlegg kategori 2, elektroinstallasjoner

Elektriske installasjoner og brannalarm

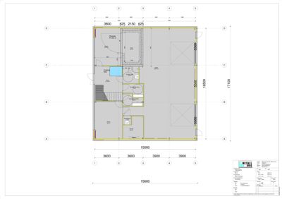
Plantegning

Enebolig 285.8 m²

Etasje 1 285.8 m²

Rom Areal Vinduer Dører
Entré 101 21.4 m² 0 2
Kontor 102 23.0 m² 0 1
Inngang heis 103 14.1 m² 0 0
Hvelv 104 9.5 m² 0 0
Kjeller 105 21.4 m² 0 1
Lager 106 133.2 m² 0 0
Omkledning Herre 107 5.0 m² 0 1
Omkledning Dame 108 4.4 m² 0 1
Renholdsrom 109 1.5 m² 0 1
Teknisk 110 8.5 m² 0 0
Stell 111 9.3 m² 0 1
OPG 112 3.8 m² 0 1
Pauserom 113 11.8 m² 0 2
Personallinngang 114 6.1 m² 0 2
WC 115 4.4 m² 0 1
Vaskerom 116 4.7 m² 0 1
Behandlingsrom 1 117 12.1 m² 0 1
Behandlingsrom 2 118 12.2 m² 0 1

Hendelser

18.02.2026 Østre Grenstøl 22 og 24 - Søknad om ferdigattest