NewConstruction UnderBehandling Naeringsbygg

Ny sorteringshall på Rundhågen 3, Harstad

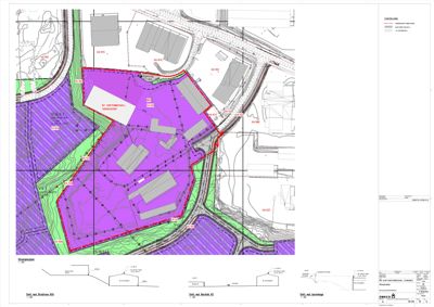
📍 Rundhågen 3 , 9409 HARSTAD

Nøkkelinfo

Sakstype
Nybygg
Bygningstype
Naeringsbygg
Bruksareal
1,950 m²
Kommune
Harstad - Hárstták
Fylke
Troms - Romsa - Tromssa
Gnr / Bnr
54 / 501
Saksnummer
2026/2173
Fase
Under behandling

Om byggesaken

Ny sorteringshall på ca. 1950 m² (30x65 meter) oppføres på eiendommen Rundhågen 3 i Harstad. Bygget er en lukket plasthall med prefabrikkert stål- og betongkonstruksjon, med valmtak og mønehøyde ca. kote +28. Hallen skal brukes til innendørs sortering og kverning av avfall, og er utformet for å redusere støy, støv, lukt og flygeavfall i området. Bygget har gesimshøyde på ca. 13,5 meter og mønehøyde på ca. 28 meter, med funksjonelle krav til arbeidshøyde for maskiner og intern logistikk. Fundamentering skjer på fjell, og overvann håndteres via tette oppsamlingskummer og oljeutskiller, uten tilknytning til kommunalt nett. Bygget plasseres med dispensasjon 1 meter utenfor regulert byggegrense, men innenfor industriområdet, og med god avstand til naboer og vegetasjonsskjerm. Materialvalg og fargevalg er dempet for å integrere bygget i industriområdet. Tiltaket vil gi bedre arbeidsforhold og miljøforbedringer ved miljøparken.

Produkter og materialer

Betong Fundamentering

🧱 Betong på fjell

Fundamentering på fjell med plasstøpt betong

Fundamentering for plasthall

VVS Overvannshåndtering

🧱 Tette oppsamlingskummer, sandfang, oljeutskiller

Tette oppsamlingskummer for forurenset vann, sandfang og oljeutskiller for rent overvann, ikke tilknyttet kommunalt nett

Overvannshåndtering med tette kummer og oljeutskiller

Grunnarbeid Grunnarbeider og vegtilpasninger

Grunnarbeider og vegtilpasninger for manøvreringsareal og adkomst

Grunnarbeider og vegtilpasninger rundt hallen

Fasade PVC duk fasade

🧱 matt, dempet gråtone PVC duk

Industriell fasade med matt, dempet gråtone PVC duk for redusert refleks og visuell dominans

Ytterduk/fasade i PVC for plasthall

Tømrer Innvendige flyttbare innervegger

Flyttbare innervegger for fleksibilitet i sorteringshallen

Innvendige flyttbare vegger for tilpasning av rom

Tak Valmtak

🧱 PVC duk

Valmtak med takvinkel 10,5°-18,5°, dekket med PVC duk

Tak med valmtak og PVC duk

VVS Ventilasjon og klimainstallasjoner

Ventilasjon og klimainstallasjoner for kontrollert ventilasjon og utslippsmålinger

Ventilasjon og klimainstallasjoner for sorteringshall

Stål Prefabrikkert stålhall

🧱 Stålrammer og bærende konstruksjoner

Prefabrikkert stålhall med bærende metallkonstruksjoner

Bærende stål- og metallkonstruksjoner for plasthall

Fasader

Sorterings hall

Ukjent
Taktype
Valmtak
Høyde
13.5 m
Mønehøyde
29.5 m
Vinduer
0
Dører
0
Synlige etasjer
0

Hendelser

16.04.2026 Oppsummering av telefonsamtale og mangler i søknad
08.04.2026 Gbnr 54/501 - Rundhågen 3 - Gjennomføringsplan
08.04.2026 Gbnr 54/501 - Rundhågen 3 - Supplering av søknad
26.03.2026 Gbnr 54/501 - Rundhågen 3 - Anmodning om tilleggsopplysninger
23.03.2026 Supplering av søknad
06.03.2026 Oversendelse av tegninger
05.03.2026 Søknad om rammetillatelse