NewConstruction UnderBehandling Naeringsbygg

Nytt næringsbygg med lager, verksted og vaskehall i Tjeldsundveien 809

📍 Sandtorg, Tjeldsundveien 809 , 9430 SANDTORG

Nøkkelinfo

Sakstype
Nybygg
Bygningstype
Naeringsbygg
Bruksareal
876 m²
Kommune
Harstad - Hárstták
Fylke
Troms - Romsa - Tromssa
Gnr / Bnr
27 / 36
Saksnummer
2025/3410
Fase
Under behandling

Om byggesaken

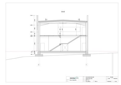
Ny næringsbygning på totalt 875,85 m² BRA fordelt på to etasjer oppføres på eiendommen Tjeldsundveien 809 i Harstad. Bygget består av lagerseksjoner, automatisk bilvaskehall, verksted/service senter med tilhørende personalfasiliteter som garderober, WC, dusj og pauserom. Bygget har flatt tak med gesimshøyde på 7,385 m til 9,34 m, og er utført i betong med glassfasade mot nordøst. Det planlegges balansert ventilasjon, brannsikring i henhold til TEK17, og overvannshåndtering med støttemur og drenering. Det eksisterende lagerbygget på 625,4 m² rives, mens et annet bygg på tomten forblir uberørt. Utearealene inkluderer ca. 1000 m² parkerings- og ladestasjoner for elektriske kjøretøy. Bygget er tilpasset terrenget og naboskap, med hensyn til nabomerknader og reguleringsplaner.

Produkter og materialer

Trapper Innvendig trapp

Antall: 1

Innvendig trapp mellom etasjer, uten krav til røykventilasjon

Innvendig trapp for adkomst mellom 1. og 2. etasje

VVS Vann- og avløpsanlegg

Ny oljeutskiller for verksted og vaskehall, fornyelse og tilpasning av eksisterende vann- og avløpsanlegg

Vann- og avløpsinstallasjoner med oljeutskiller

Grunnarbeid Drenering og overvannshåndtering

Dreneringsmasser og dreneringsledning langs støttemur, overvannstiltak med slukker for oppsamling

Overvannshåndtering og drenering på tomt

Garasjeport Port til vaskehall

Antall: 1

Garasjeport i fasade sørvest til vaskehall

Port for kjøretøysadkomst til vaskehall

Elektro Belysning og nødlys

Nødlys og ledesystem i rømningsveier i henhold til NS-EN 1838:2013

Belysning og sikkerhetsbelysning for rømningsveier

Mur Støttemur

🧱 Betong

Støttemur mot vei og naboside, plassert minimum 4 m fra tomtegrense, med sikring mot fall

Støttemur for terrengutjevning og støyreduksjon

Heis Personheis

Antall: 1

Heis mellom 1. og 2. etasje for personell

Heis for tilgjengelighet mellom etasjer

Fasade Betongfasade med glasspartier

🧱 Betong og glass

Betongfasade med flatt tak, gesimshøyde 7,385-9,34 m, glassfasade mot nordøst

Fasadeelementer i betong og glass til nytt næringsbygg

Gulv Industrielt gulv og parkett

Gulv med brannklasse Dfl-s1, egnet for lager, verksted og personalrom

Gulvbelegg tilpasset næringsbygg og brannkrav

Tak Flatt tak

🧱 Brennbar isolasjon med beskyttelse, taktekning BROOF (t2)

Flatt tak med brannteknisk utførelse i henhold til TEK17

Taktekking og isolasjon for flatt tak med brannmotstand

Bad Sanitærrom

WC, dusj, garderober og renholdsrom i begge etasjer, inkludert rom for renholdsutstyr på mesanin

Sanitær- og personalfasiliteter for ansatte

Vinduer Fasadevindu

🧱 Glass

Antall: 9

Vinduer i fasade, inkludert 1 glassfasade mot nordøst og øvrige betongfasader

Vinduer til fasade i betong og glass

Brannvern Brannalarmanlegg og slokkeutstyr

Optiske seriekoblede røykvarslere, håndslukkeapparat minimum 6 kg ABC-pulver i hver branncelle, markeringsskilt i rømningsveier

Brannalarmanlegg og manuelt slokkeutstyr i henhold til TEK17 og brannkonsept

VVS Ventilasjonssystem

Antall: 1

Balansert smart ventilasjon med automatisk feilvarsling og manuell kontroll

Ventilasjonsanlegg for arbeidslokaler og personalrom

Dører Ytterdører og branncelle-dører

🧱 Uklassifiserte og brannklassifiserte dører

Antall: 8

Dører i fasade og branncellebegrensende dører med fri bredde min 0,86 m

Ytterdører og dører til brannceller og rømningsveier

Plantegning

Enebolig 875.9 m²

Etasje 1 811.4 m²

Rom Areal Vinduer Dører
Lager 101 67.4 m² 0 1
Lager 102 67.4 m² 0 1
Lager 103 67.4 m² 0 1
Lager 104 67.4 m² 0 1
Lager 105 67.4 m² 0 1
Lager 106 67.4 m² 0 1
Bilvask/hall 107 52.9 m² 0 0
Verksted 108 243.2 m² 0 0
Servicegang 109 0.0 m² 0 0
Vindfang 110 7.4 m² 1 1
WC 111 4.8 m² 0 1
Toalett 112 10.6 m² 0 1
Bad 113 3.8 m² 0 1
Dusj 114 3.6 m² 0 1
Dusj 115 3.4 m² 0 1
Omkledningsrom 116 6.3 m² 0 1
Omkledningsrom 117 6.3 m² 0 1
Skiftrom 118 8.1 m² 0 1

Etasje 2 64.5 m²

Rom Areal Vinduer Dører
Spiserom/pauseom 201 25.6 m² 0 1
WC/Dusj 202 6.5 m² 0 1
Gang 203 16.3 m² 0 0
Kontor 204 15.4 m² 0 1

Fasader

Hovedbygg

Nordøst
Materiale
Glass
Taktype
Flatt tak
Høyde
9.3 m
Mønehøyde
9.3 m
Vinduer
1
Dører
0
Synlige etasjer
1
Sørvest
Materiale
Betong
Taktype
Flatt tak
Høyde
9.3 m
Mønehøyde
9.3 m
Vinduer
6
Dører
4
Synlige etasjer
1
Sørøst
Materiale
Betong
Taktype
Flatt tak
Høyde
9.3 m
Mønehøyde
9.3 m
Vinduer
1
Dører
0
Synlige etasjer
1
Nordvest
Materiale
Betong
Taktype
Flatt tak
Høyde
9.3 m
Mønehøyde
9.3 m
Vinduer
1
Dører
0
Synlige etasjer
1

FASADER FORELØPIG

Nord-Øst
Materiale
Betong
Høyde
13.4 m
Vinduer
1
Dører
1
Synlige etasjer
3
Sør-Vest
Materiale
Betong
Høyde
13.4 m
Vinduer
1
Dører
1
Synlige etasjer
3
Nord-Vest
Materiale
Betong
Høyde
13.4 m
Vinduer
1
Dører
0
Synlige etasjer
3
Sør-Øst
Materiale
Betong
Høyde
13.4 m
Vinduer
1
Dører
0
Synlige etasjer
3

Hendelser

15.04.2026 Gbnr. 27/63 - Tjeldsundveien 809 Sandtorg - Oppføring av næringsbygning - Oppdatering byggesak
29.12.2025 E-post korrespondanse
04.12.2025 Oversendelse - Gbnr 27/36 - Tjeldsundveien 809 - Søknad - Anmodning om opplysninger
16.09.2025 Gbnr 27/36 Tjeldsundveien 809 - Søknad om riving og oppføring av bygning - Anmodning om tilleggsinformasjon
20.08.2025 Purring på svar
29.07.2025 Gbnr 27/36 Tjeldsundveien 809 - purrer på svar
25.06.2025 Etterkontroll – planene oppfyller nå kravene i regelverket
10.06.2025 Gbnr. 27/36 Tjeldsundveien - Foreløpig svarbrev - Melding om saksbehandlingstid - Søknad om rammetillatelse
04.06.2025 Etterkontroll av planene for tiltaket - foretatt
08.05.2025 Innvilgelse av søknaden om samtykke etter automatisk saksbehandling
08.05.2025 Søknad om rammetillatelse
14.04.2025 Uttalelse i forbindelse med nabovarsel
08.04.2025 Klage på nabovarsel
07.04.2025 Merknader - mottatt nabovarsel
01.04.2025 Svar på nabovarsel - nytt bygg