NewConstruction Igangsettingstillatelse Naeringsbygg

Ny sorteringshall og miljøstasjon på Svolværveien 109, Svolvær

📍 Svolværveien 109 , 8300 SVOLVÆR

Nøkkelinfo

Sakstype
Nybygg
Bygningstype
Naeringsbygg
Bruksareal
1,694 m²
Kommune
Vågan
Fylke
Nordland - Nordlánnda
Gnr / Bnr
16 / 73
Saksnummer
24/2220
Fase
Igangsettingstillatelse

Om byggesaken

Ny sorteringshall på ca. 1500 m² grunnflate oppføres i stålkonstruksjon med sandwichelementer over betongramper for 11 skråstilte containere, med tilhørende utkjøringsrampe i betong med rekkverk. Eksisterende elektrohall flyttes til nye fundamenter på tomten, og eksisterende vektbu rives og erstattes med ny vektbu på ca. 90 m². Det etableres støttemurer med rekkverk for å håndtere høydeforskjeller mellom asfaltert areal og terreng. Bygget er i risikoklasse 2 og oppfyller krav til brannsikkerhet, universell utforming og miljø. Utomhusarealer asfalteres, og det etableres ny vei fra eksisterende Mikodanbygg til sorteringshallen. Midlertidig slukkevannsløsning er etablert, permanent løsning skal være på plass innen 2030. Tiltaket inkluderer også miljøsanering og håndtering av forurensede masser i grunnen.

Produkter og materialer

Fasade Sandwichelementer og Kebony kledning

🧱 Sandwichelementer, Kebony tre

Sandwichelementer type SP2B100 E – PIR, Kebony kledning på vektbu

Yttervegger for sorteringshall og vektbu

Riving Riving av eksisterende vektbu og sorteringsramper

Riving og miljøsanering av eksisterende bygg og konstruksjoner

Riving og miljøsanering

Grunnarbeid Masseutskifting og sprengning

Masseutskifting ned til 0,5-1 m dybde, sprengning av fjell, håndtering av forurensede masser

Grunnarbeider og miljøsanering

Betong Fundamenter og gulv på grunn

🧱 Betong

Plasstøpte betongfundamenter og gulv på grunn i sorteringshall og vektbu

Fundamenter og gulv

Elektro Brannalarmanlegg og ledesystem

Brannalarmanlegg kategori 2 med alarmoverføring til 110-sentral, ledesystem og nødbelysning

Brannalarmsystem og nødlys

VVS Sanitærinstallasjoner og vannforsyning

Tilknytning til offentlig vannverk, septiktank for avløp, midlertidig og permanent slukkevannsløsning

Vann- og avløpsinstallasjoner

Brannvern Brannslokkeutstyr

Håndslokkere og brannslanger i hallen, pulverapparat i elektrohall

Brannslokkeutstyr for miljøstasjon

Bygningskomponenter Stålkonstruksjon

🧱 Stål

Stålkonstruksjon for sorteringshall med sandwichelementer

Bærekonstruksjon for sorteringshall

Tak Flatt tak med Derbigumtekking

🧱 Mineralull og Derbigum

Selvbærende stålplater med mineralull og Derbigumtekking

Taktekking for sorteringshall og vektbu

Bygningskomponenter Betongelementer

🧱 Betong

Betongelementer for sorteringsramper ca. 1,7 m over terreng

Betongelementer for ramper og støttemurer

Vinduer Alubelagte trevinduer

🧱 Tre med aluminium

Alubelagte trevinduer i vektbu

Vinduer i vektbu

Terrasse Asfaltering og støttemurer

🧱 Betong, asfalt

Asfaltering av utearealer, støttemurer med rekkverk for høydeforskjeller

Utomhusanlegg og terrengtilpasning

Dører Ytterdører og porter i alu/stål

🧱 Aluminium og stål

Dører og porter med farge RAL 9006 (Metallic Silver)

Ytterdører og porter i sorteringshall og vektbu

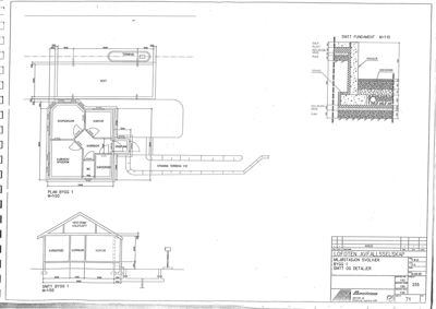
Plantegning

Miljøstasjon 0.0 m²

Etasje 1 0.0 m²

Rom Areal Vinduer Dører
Kontor 101 0.0 m² 0 1
Korridor 102 0.0 m² 0 2
Garderobe 103 0.0 m² 0 1
WC 104 0.0 m² 0 1
Vindfang 105 0.0 m² 0 1
Ekspedisjon 106 0.0 m² 0 1
Kjøkken/Spiserom 107 0.0 m² 0 1
Terminal 108 0.0 m² 0 0
Vekt 109 0.0 m² 0 0

Sorteringshall 0.0 m²

Etasje 1 0.0 m²

Rom Areal Vinduer Dører
Sorteringshall 0 0.0 m² 0 0

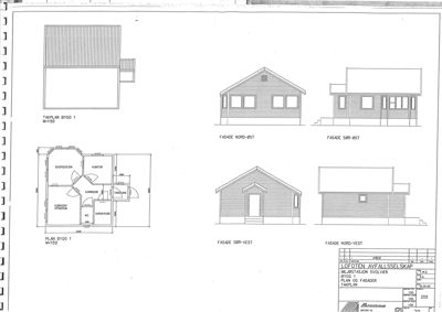
Fasader

EL-Hall

Vest
Materiale
Tre
Taktype
Flatt tak
Høyde
5.8 m
Mønehøyde
12.9 m
Vinduer
1
Dører
1
Synlige etasjer
1
Øst
Materiale
Tre
Taktype
Flatt tak
Høyde
5.8 m
Mønehøyde
12.9 m
Vinduer
3
Dører
0
Synlige etasjer
1
Sør
Materiale
Tre
Taktype
Flatt tak
Høyde
6.5 m
Vinduer
3
Dører
1
Synlige etasjer
1
Nord
Materiale
Betong
Taktype
Flatt tak
Høyde
6.5 m
Mønehøyde
13.0 m
Vinduer
10
Dører
0
Synlige etasjer
1

Bygg 1

Nord-Øst
Materiale
Tre
Taktype
Saltak
Vinduer
5
Dører
0
Synlige etasjer
1
Sør-Øst
Materiale
Tre
Taktype
Saltak
Vinduer
5
Dører
1
Synlige etasjer
1
Sør-Vest
Materiale
Tre
Taktype
Saltak
Vinduer
1
Dører
1
Synlige etasjer
1
Nord-Vest
Materiale
Tre
Taktype
Saltak
Vinduer
1
Dører
0
Synlige etasjer
1

Hendelser

20.04.2026 Endringsvedtak - Oppføring av sorteringshall - gbn 16/73 Svolværveien 109
26.03.2026 Svolværveien 109 Supplering av søknad 16/73
09.03.2026 Svar vedrørende supplering - Svolværveien 109 Supplering av søknad 16/73
09.03.2026 Angående supplering - Svolværveien 109 Supplering av søknad 16/73
12.02.2026 Svolværveien 109 Supplering av søknad 16/73
27.11.2025 Midlertidig brukstillatelse - Oppføring av elektrohall - gbn 16/73, Svolværveien 109
26.11.2025 Forespørsel om tilbakemelding - 24/19872 - LAS - Oppføring av sorteringshall Svolvær miljøstasjon - gbn 16/73, Svolværveien 109
05.11.2025 LAS - Oppføring av sorteringshall Svolvær miljøstasjon - gbn 16/73, Svolværveien 109
20.10.2025 Svolværveien 109 Supplering av søknad 16/73
03.10.2025 Søknad om midlertidig brukstillatelse - Gbn 16/73 - Svolværveien 109
04.07.2025 Tillatelse til tiltak - Oppføring av sorteringshall - gbn 16/73 Svolværveien 109
03.07.2025 Tillegsareal - Signert avtale og sendt faktura - Salg av del av 1865-16/1 - Lofoten Avfallsselskap AS
26.06.2025 Supplering oppdatert VAO-rammeplan - gbn 16/73, Svolværveien 109
05.06.2025 Svolværveien 109 Supplering av søknad 16/73
27.05.2025 Tilbakemelding om mangler - Oppføring av sorteringshall - gbn 16/73 Svolværveien 109
02.05.2025 Svolværveien 109 Søknad om tillatelse i ett trinn 16/73