NewConstruction UnderBehandling Naeringsbygg

Ny driftsbygning med korntørkeanlegg i Thorsøveien 135

📍 Thorsøveien 133 , 1634 GAMLE FREDRIKSTAD

Nøkkelinfo

Sakstype
Nybygg
Bygningstype
Naeringsbygg
Bruksareal
1,355 m²
Kommune
Fredrikstad
Fylke
Østfold
Gnr / Bnr
688 / 3
Saksnummer
2024/7749
Fase
Under behandling

Om byggesaken

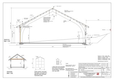
Ny driftsbygning på totalt ca. 1355 m² med kjørbar korntørkeanlegg og et mindre tilbygg til personalrom oppføres på gården Humlekjær, Thorsøveien 135 i Fredrikstad. Bygningen har betongvegger og limtrekonstruksjoner, med flatt stål-tak på deler og saltak med rød trepanel på andre fasader. Bygget inneholder store lagerhaller, tørkerom, tekniske rom og personalrom. Det er etablert stikkledninger for vann, avløp, el-kabel og vannvarme, samt pumpestasjon for avløp. Bygningen er dimensjonert for kjørbar tørke og har flere leddheiseporter. Det er lagt vekt på bærekraft med bruk av limtre og planlagt solcelleanlegg på taket. Bygget er tatt i bruk til korntørking med midlertidig brukstillatelse, og ferdigstillelse av resterende arbeider forventes innen juni 2026.

Produkter og materialer

Isolasjon Isolasjon under isolerte rom og i tak

Isolering under isolerte rom og i tak med kondensdempende belegg

Isolasjon for termisk komfort og kondenskontroll

Betong Prefabrikkerte og plasstøpte betongfundamenter og konstruksjoner

🧱 Betong

Prefabrikkerte og plasstøpte betongfundamenter og konstruksjoner for driftsbygning

Fundamenter og bærende betongkonstruksjoner for driftsbygning

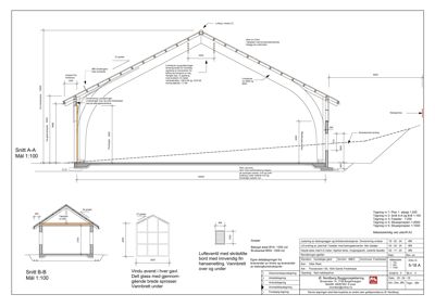
Tømrer Limtrekonstruksjoner

🧱 Limtre

Limtrebuer, limtredrager og limtresøyler for bærende konstruksjon

Bærende limtrekonstruksjoner i driftsbygningen

VVS Sanitærinstallasjoner og pumpestasjon for avløp

Vannledning, avløpsledning, stikkledninger, vannvarmerør og pumpestasjon for avløp

VVS-installasjoner for driftsbygning og tilbygg

Elektro El-kabler og trekkerør for strøm og fiber

El-kabler, 40 mm trekkerør for strøm og fiberkabel

Elektriske installasjoner og tilkoblinger

Terrasse Utendørs oppfylling og planering

Utvendig oppfylling og planering av kjøreareal foran bygningen

Utendørs areal for adkomst og kjøring

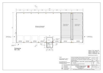
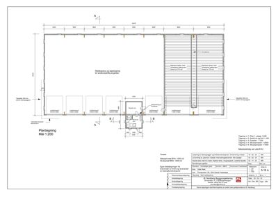
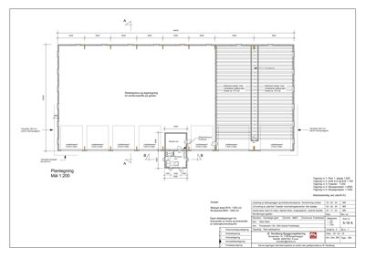
Stål Stålkanaler for kjørbare tørker

🧱 Stål

Nedstøpte stålkanaler for kjørbare tørker i bygningen

Stålkanaler for tørkeanlegg

Grunnarbeid Utstikking, plassering av fundamenter og utvendig planering

Grunnarbeider med utstikking, plassering av prefabrikkerte betongfundamenter og utvendig planering

Grunnarbeid for driftsbygning

Dører Leddheiseporter og personaldører

Antall: 15

Leddheiseporter i størrelser 5,0x5,5 m og 7,0x5,5 m, samt personaldører

Adkomst og portåpninger for driftsbygning

Maling Innvendig maling og overflatebehandling

Innvendig maling og overflatebehandling av personalrom og tekniske rom

Tak Flatt tak med stålplater og saltak med takplater

🧱 Stålplater

Flatt tak med stålplater og saltak med takplater, inkl. kondensdempende belegg

Taktekking for driftsbygning

Solceller Solcelleanlegg på tak

Planlagt solcelleanlegg på halve taket av driftsbygningen

Fornybar energiproduksjon på byggets tak

Vinduer Fasadevindu i betong- og trekonstruksjon

Antall: 22

Vinduer med delt glass og brede sprosser, antall og plassering i fasader

Fasadevindu for lys og ventilasjon

Fasader

Redskapshus

Syd
Materiale
Betong
Taktype
Flatt tak
Takmat.
Stål
Vinduer
8
Dører
0
Synlige etasjer
1
Vest
Materiale
Tre
Taktype
Saltak
Vinduer
7
Dører
0
Synlige etasjer
2
Øst
Materiale
Tre
Taktype
Saltak
Vinduer
7
Dører
0
Synlige etasjer
2
Nord
Materiale
Betong
Taktype
Flatt tak
Takmat.
Stål
Vinduer
0
Dører
1
Synlige etasjer
1

Hendelser

10.04.2026 Søknad om endring av gitt tillatelse - Thorsøveien 135 - Eiendom 688/3 - Korntørke
18.09.2025 Søknad om midlertidig brukstillatelse - Thorsøveien 135 - Eiendom 688/3 - Korntørke
18.09.2025 Midlertidig brukstillatelse for deler av tiltaket - Driftsbygning m/korntørkeanlegg og tilbygg (personalrom) - Thorsøveien 135 - Eiendom 688/3
05.04.2024 Sak til matrikkelføring - Endringstillatelse driftsbygning og stikkledninger, samt IG nr. 2 for resterende deler av tiltaket - Thorsøveien 135 - Eiendom 688/3
05.04.2024 Kommentar på angitt avstand i endringstillatelsen - Thorsøveien 135 - Eiendom 688/3
05.04.2024 Tilbakemelding på kommentar om angitt avstand i endringstillatelse - Thorsøveien 135 - Eiendom 688/3
05.04.2024 Endringstillatelse - Driftsbygning og stikkledninger - Igangsettingstillatelse nr. 2 for resterende deler av tiltaket - Thorsøveien 135 - Eiendom 688/3
26.03.2024 Svar - Ny driftsbygning.
25.03.2024 Uttalelse fra Miljø og landbruk til endringssøknad - Driftsbygning - Thorsøveien 135 - Eiendom 688/3
21.03.2024 Thorsøveien 135 - Eiendom 688/3 - Anmodning om uttalelse til endringssøknad - Driftsbygning
20.03.2024 Søknad om endring av gitt tillatelse - Thorsøveien 135 - Eiendom 688/3 - Korntørke
14.03.2024 Tilleggsopplysninger - Thorsøveien 135 - Eiendom 688/3
12.03.2024 Mangelfull søknad - Søknad om igangsettingstillatelse nr. 2 - Thorsøveien 135 - Eiendom 688/3
11.03.2024 Søknad om igangsettingstillatelse - Thorsøveien 135 - Eiendom 688/3 - Driftsbygning