NewConstruction UnderBehandling Naeringsbygg

Midlertidig kantine- og boligrigger i Undheimsvegen, Time

📍 Undheimsvegen 667 , 4342 UNDHEIM

Nøkkelinfo

Sakstype
Nybygg
Bygningstype
Naeringsbygg
Bruksareal
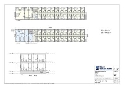
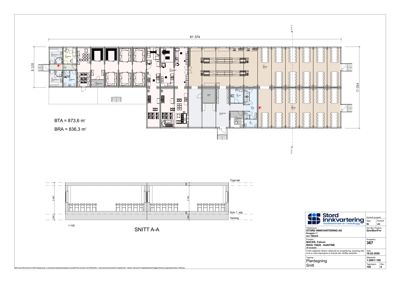
1,042 m²
Boenheter
616
Kommune
Time
Fylke
Rogaland
Gnr / Bnr
46 / 47
Saksnummer
2026/1223
Fase
Under behandling

Om byggesaken

Prosjektet omfatter oppføring av en midlertidig kantinerigg og 14 boligrigger over to etasjer, med totalt 616 boenheter, på eiendommen Undheimsvegen 46/47 i Time kommune. Kantineriggen har et areal på ca. 299 m² og inneholder kjøkken, kantine, garderober og tekniske rom. Boligriggene er modulbaserte og samlet innenfor et område på ca. 32 dekar, med interne kjøre- og parkeringsarealer. Området vil være inngjerdet med adgangskontroll og vakthold. Tiltaket er midlertidig med varighet inntil to år, knyttet til anleggsperioden for datasenterutbyggingen, og skal fjernes med tilbakeføring av arealet etter bruk. Byggene er planlagt med trefasader og inneholder nødvendige tekniske installasjoner som sanitær, ventilasjon og brannalarm. Prosjektet krever dispensasjon fra LNF- og andre arealformål, og det er vurdert at fordelene ved tiltaket er større enn ulempene.

Produkter og materialer

Dører Ytterdører og innvendige dører

Dører i kantine og boligrigg, inkludert innganger og interne dører

Dører for adgang og rominndeling i kantine- og boligbrakker

Trapper Innvendig trapp i boligrigg

Antall: 2

Trapper i 44-manns boligrigg, to etasjer

Innvendige trapper for etasjeadkomst i boligrigg

Vinduer Fasadevindu

Antall: 31

22 vinduer på boligrigg, 9 vinduer på kantinerigg

Vinduer i fasader på kantine- og boligbrakker

Elektro Brannalarmanlegg og ledesystem

Brannalarmanlegg og ledesystem installert i brakkeriggene

Brannalarmanlegg og ledesystem for sikkerhet i midlertidige brakker

Tømrer Montering av trekonstruksjoner

🧱 Tre

Montering av trekonstruksjoner for brakkeriggene

Tømrerarbeid for oppføring av midlertidige kantine- og boligbrakker

Ventilasjon Ventilasjons- og klimainstallasjoner

Ventilasjon og klimainstallasjoner i kantine og boligrigger

Ventilasjons- og klimainstallasjoner for midlertidige brakker

Annet Adgangskontroll og vakthold

Kontinuerlig adgangskontroll og vakthold hele døgnet

Sikkerhetstjenester for riggområdet

Innhegning Inngjerding av riggområde

Inngjerding av området med adgangskontroll og vakthold

Sikkerhetsgjerde rundt riggområdet

Grunnarbeid Planering og opparbeidelse av riggområde

Planering av oppstillingsarealer, interne kjørearealer og parkeringsplasser

Grunnarbeid for riggområde med midlertidige brakker

VVS Sanitærinstallasjoner

Sanitærinstallasjoner i kantine og boligrigger, inkludert WC, dusj, vaskerom

Sanitærinstallasjoner for midlertidige brakker

Tak Flatt tak

Antall: 2

Tak på kantinerigg og boligrigg, modulbasert konstruksjon

Tak på midlertidige brakker

Fasade Trefasade

🧱 Tre

Fasader på kantinerigg og boligrigg i tre

Trefasader på midlertidige kantine- og boligbrakker

Fasader

Boligrigg

Ukjent
Materiale
Tre
Vinduer
22
Dører
0
Synlige etasjer
2

Kantine

Ukjent
Materiale
Tre
Vinduer
9
Dører
0
Balkonger
2
Synlige etasjer
1

Hendelser

20.04.2026 Uttale fra Rogaland fylkeskommune 16.04.26
16.04.2026 Time kommune - gnr 46 bnr 47 - dispensasjon - oppføring av midlertidig kantine- og boligbrakker - søknad - uttalelse
15.04.2026 merknad til nabovarsel
15.04.2026 Merknad til nabovarsel
13.04.2026 Undheimsvegen Søknad om endring av gitt tillatelse eller godkjenning 46/47
08.04.2026 Fråsegn- dispensasjon - Time 46/47 - Undheimsvegen - oppføring midlertidig kantinerigg og boligbrakker
27.03.2026 Oversendelse av sak til uttale - Oppføring av midlertidige kantine- og boligbrakker i forbindelse med datasenter på Undheim
20.03.2026 Oversendelse av sak til uttale - oppføring av midlertidige kantine- og boligbrakker i forbindelse med datasenter på Undheim
16.03.2026 Oversendelse av sak til uttale - oppføring av midlertidig kantine- og boligbrakker. Gnr. 46 bnr. 47, Undheimsvegen
13.03.2026 Søknad om løyve til oppføring av kantine og boligrigger