NewConstruction Soeknad Naeringsbygg

Nytt kombinert nærings- og boligbygg i Ottersøy

📍 Varøyvegen 30 , 7940 OTTERSØY

Nøkkelinfo

Sakstype
Nybygg
Bygningstype
Naeringsbygg
Bruksareal
2,088 m²
Boenheter
14
Kommune
Nærøysund
Fylke
Trøndelag - Trööndelage
Gnr / Bnr
2 / 73
Saksnummer
2026/1750
Fase
Søknad

Om byggesaken

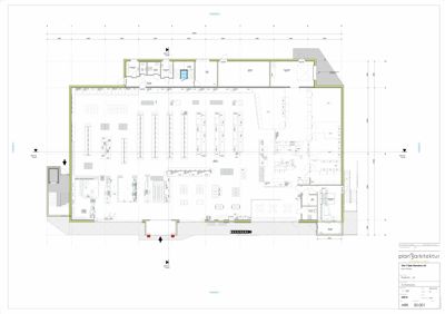
Ny bygning med blandet formål næring og bolig oppføres på eiendom gnr 2, bnr 73 i Ottersøy. Bygget får dagligvareforretning i 1. etasje og 14 leiligheter fordelt på 2. og 3. etasje. Totalt areal for ny bebyggelse er ca. 2088 m² med tilhørende parkeringsareal og carporter. Bygget tilpasses eksisterende bebyggelse med gode adkomst- og parkeringsforhold. Det planlegges heis og løfteplattform i bygget. Utearealer inkluderer nærlekeplass for boligene. Fasaden består blant annet av glass og flatt tak. Prosjektet er i tråd med gjeldende reguleringsplan for området.

Produkter og materialer

Terrasse Uteareal og lekeplass

Nærlekeplass og terrasser tilknyttet boligene

Utearealer med lekeplass og terrasser for beboere

VVS Sanitær og varme

VVS-installasjoner for bolig og næring, inkl. vann, avløp og varme

VVS-installasjoner for hele bygget

Elektro El-installasjoner

Elektriske installasjoner for nærings- og boligdel

El-installasjoner for belysning, strøm og tekniske anlegg

Garasjeport Carport med bod

Antall: 7

Carporter med tilhørende boder

7 carporter med boder for parkering og lagring

Betong Fundament og dekker

Betongfundament og dekker for nærings- og boligdel

Betongkonstruksjoner for bæresystem og dekker

Ventilasjon Mekanisk ventilasjon

Ventilasjonsanlegg for nærings- og boligdel

Ventilasjonsløsninger iht. krav for bygg

Tømrer Bærekonstruksjon og innvendige vegger

Tømrerarbeid for bærekonstruksjon og innvendige skillevegger

Tømrerarbeid for byggkropp og rominndeling

Tak Flatt tak med sedum

🧱 Sedumtak

Flatt tak med sedumbelegg

Tak med sedumdekke for miljøvennlig løsning

Grunnarbeid Tomtearbeid og fundamentering

Grunnarbeid for nybygg på tomt 14950 m²

Grunnarbeid, fundamentering og opparbeidelse av utearealer

Dører Ytterdør

Antall: 1

Ytterdør i glassfasade

Hovedinngangsdør til næringsdelen

Vinduer Fasadevindu

🧱 Glass

Antall: 16

Fasadevindu i glassfasade

Fasadevinduer i glass for hovedbygget

Heis Personheis og løfteplattform

Antall: 1

Heis og løfteplattform i bygget

Heis og løfteplattform for tilgjengelighet mellom etasjer

Fasade Glassfasade

🧱 Glass

Glassfasade på hovedbygget

Glassfasade som hovedmateriale på byggets fasade

Trapper Innvendig trapp

Trapperom i bygget, inkl. heis og løfteplattform

Innvendige trapper og heis for adkomst mellom etasjer

Isolasjon Bygningsisolasjon

Isolasjon i vegger, tak og gulv iht. TEK

Isolasjon for varme- og lydisolering

Fasader

Hovedbygg

Ukjent
Materiale
Glass
Taktype
Flatt tak
Vinduer
16
Dører
1
Balkonger
1
Synlige etasjer
2

Hendelser

20.04.2026 2/73 - Ole P. Fjær Eiendom AS - Søknad om rammetillatelse - nytt bygg - blandet formål næring og bolig - gnr 2 bnr 73