NewConstruction Rammetillatelse Naeringsbygg

Ny snikkerverkstad med riving av lagerbygg på Vikastemmo 31

📍 Vikastemmo 31 , 5411 STORD

Nøkkelinfo

Sakstype
Nybygg
Bygningstype
Naeringsbygg
Bruksareal
390 m²
Kommune
Stord
Fylke
Vestland
Gnr / Bnr
41 / 49
Saksnummer
2022/6117
Fase
Rammetillatelse

Om byggesaken

Ny snikkerverkstad og lagerbygg på 390 m² oppføres på eiendommen Vikastemmo 31, Stord, etter riving av et eksisterende falleferdig lagerbygg på 101 m². Bygget er ettetasjes med betongfasader mot nord og trefasader i grå farge mot sør, og inneholder lager/arbeidsareal på 295 m², kantine, kontor, teknisk rom, toalett, dusj, garderober, badekar og handikapptoalett. Det planlegges terrenginngrep med skjæring på inntil 10,9 meter langs nabogrense. Bygget har 21 vinduer og flere dører, samt garasjeport på sørvestfasade. Tilkomst skjer via eksisterende avkjørsel fra fylkesveg 544, som er godkjent dispensasjon for utvidet bruk. Bygget knyttes til offentlig vann og avløp med godkjent VA-plan. Prosjektet har gjennomgått omfattende saksbehandling med dispensasjoner fra reguleringsplan og avstandskrav, og er godkjent med vilkår om nabosamtykke og igangsettingssøknad.

Produkter og materialer

Fasade Trekledning

🧱 Tre, grå farge

Fasade SørVest og SørØst i tre, grå farge, 1 etasje

Trekledning på sørvest- og sørøstside av bygget

Dører Ytterdører og innvendige dører

Antall: 10

Flere dører inkludert ytterdører og dører til teknisk rom, garderober, toalett og kontor

Kjøkken Kantine

Antall: 1

Kantine på 17 m² med 2 vinduer og 1 dør

Kantine for ansatte

Fasade Betongfasade

🧱 Betong

Fasade NordVest og NordØst i betong, 1 etasje

Betongfasade på nordvest- og nordøstside av bygget

VVS Offentlig vann og avløp

Tilknytning til offentlig vann- og avløpsnett med godkjent VA-plan

Tilknytning til offentlig vann- og avløpsnett i henhold til VA-plan og kommunale krav

Grunnarbeid Terrenginngrep og skjæring

Skjæring på 10 grader, høyde opptil 10,9 meter langs nabogrense

Terrenginngrep med skjæring langs nabogrense for tilpasning av tomt

Gulv Betonggulv i lager/arbeidsareal

🧱 Betong

Betonggulv i lager og arbeidsareal på 295,4 m²

Vinduer Fasadevindu

Antall: 21

Totalt 21 fasadevindu fordelt på alle fasader

Bad Toalett, dusj, badekar, HC-toalett

Antall: 4

Sanitærrom inkludert toalett, dusj, badekar og handikapptoalett

Tømrer Bygging av nytt næringsbygg

Nybygg på 390 m² med betong og trekledning, inkludert terrenginngrep

Tømrerarbeid for oppføring av nytt snikkerverksted og lager

Garasjeport Garasjeport på fasade SørVest

Antall: 1

Garasjeport på sørvestfasade

Elektro Teknisk rom

Antall: 1

Teknisk rom på 1,8 m² med dør

Rom for tekniske installasjoner

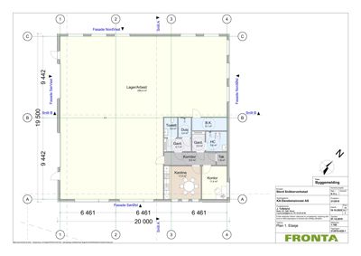
Plantegning

Stord Snikerverkstad 485.9 m²

Etasje 1 485.9 m²

Rom Areal Vinduer Dører
Lager/Arbeid Lager/Arbeid 295.4 m² 10 0
Kantine Kantine 17.0 m² 2 1
Kontor Kontor 11.4 m² 3 1
Teknisk rom Tek 1.8 m² 0 1
Korridor Korridor 9.0 m² 0 2
Toalett Toalett 3.6 m² 0 1
Dusj Dusj 3.4 m² 0 1
Garderobe Gard. 4.7 m² 0 1
Badkar B.K. 6.1 m² 0 1
Handikappas WC HC 5.6 m² 0 1
Garderobe Gard. 3.5 m² 0 1

Fasader

Stord Snikerverkstad

NordVest
Materiale
Betong
Vinduer
5
Dører
0
Synlige etasjer
1
NordØst
Materiale
Betong
Vinduer
4
Dører
0
Synlige etasjer
1
SørVest
Materiale
Tre
Vinduer
2
Dører
2
Synlige etasjer
1
SørØst
Materiale
Tre
Vinduer
5
Dører
0
Synlige etasjer
1

Hendelser

15.04.2026 Brev kopi fra Stord Vatn og Avløp AS
18.09.2023 Godkjent søknad - dispensasjon - 41/49 - Bruk av avkøyrsle, Vikastemmo
14.09.2023 Søknad om dispensasjon, Vikastemmo 3, 41/49
02.08.2023 Svar på søknad om ny avkøyrsle - fv. 544 - nytt bygg - gnr. 41 bnr. 49 - Stord kommune (kopi)
01.08.2023 Matrikkelføring rammeløyve nytt snikkerverkstad, Vikastemmo 29 - 41/49
05.07.2023 Underretning om vedtak - Rammeløyve - Dispensasjon - 41/49 - Riva lagerbygg og oppføring av nytt næringsbygg, Vikastemmo
15.05.2023 Melding om tidspunkt for handsaming av klage - 41/49 - Riva lagerbygg og oppføring av nytt næringsbygg, Vikastemmo
11.05.2023 Klage på vedtak i sak 2022/6117
20.04.2023 Matrikkelføring rammeløyve riving av lagerbygg - Gnr/bnr 41/49
19.04.2023 Delvis godkjent søknad om rammeløyve - Løyve til riving - Avslag for nybygg og dispensasjon - 41/49 - Næringsbygg, Vikastemmo 31
23.02.2023 Førespurnad om uttale - 41/49 - Næringsbygg, Vikastemmo 31
10.02.2023 SV: Vabakkjen gnr/bnr 41/49
01.02.2023 VS: Vabakkjen gnr/bnr 41/49
30.01.2023 Supplering av søknad - 41/49
24.11.2022 Førebels svar - 41/49 - Næringsbygg, Vikastemmo 31
07.11.2022 Stadfesting av motteken søknad - 41/49 - Næringsbygg, Vikastemmo 31
07.11.2022 Søknad om rammeløyve - 41/49, Vikastemmo 31
26.07.2022 41/49 - bygg Vikastemmo
01.07.2022 41/49 - Falleferdig bygning , Vikastemmo
17.06.2022 Asbest