NewConstruction UnderBehandling Naeringsbygg

Ny lagerhall på Voren 45, Sandsøya

📍 Voren 45 , 6089 SANDSHAMN

Nøkkelinfo

Sakstype
Nybygg
Bygningstype
Naeringsbygg
Bruksareal
450 m²
Kommune
Sande
Fylke
Møre og Romsdal
Gnr / Bnr
68 / 37
Saksnummer
2025/963
Fase
Under behandling

Om byggesaken

Ny lagerhall på 450 m² oppføres på eiendommen Voren 45, gnr 68 bnr 37, Sandsøya. Bygget er en næringsbygning med saltak, gesimshøyde og mønehøyde på 15 meter, og består av ett plan med et stort lagerrom på 450 m². Lagerhallen har 10 vinduer og 1 dør, inkludert en gangdør (1000x2100 mm) og en port (5000x4500 mm). Bygget plasseres på opparbeidet, planert grunn med betongfundamentering og ringmur. Det er ikke planlagt innlagt vann eller avløp, og takvann føres til terreng. Bygget er tilpasset flom- og havnivåstigningsforhold med ferdig gulv på kote 2,0, samme nivå som eksisterende bygg på tomten. Tiltaket krever dispensasjon fra kommuneplanens LNRF-formål og byggeforbud i 100-metersbeltet mot sjø, og ligger nær Storevika naturreservat med tilhørende miljøhensyn.

Produkter og materialer

Tømrer Stålkonstruksjon

🧱 Stål

Stålhall konstruksjon for lagerbygget

Stålkonstruksjon for lagerhallen

Maling Innvendig og utvendig maling

Overflatebehandling av lagerhallens konstruksjoner

Dører Gangdør og port

Antall: 2

Gangdør 1000x2100 mm, port 5000x4500 mm

Inngangsdør og stor port for lagerhallen

Fasade Vinduer

Antall: 10

Fasadevindu i lagerhallen

Ventilasjon Naturlig ventilasjon

Ingen faste arbeidsplasser, sporadisk opphold, ventilasjon tilpasset lagerbruk

Ventilasjon for lagerhallen

Grunnarbeid Planering og utfylling

🧱 Steinmasser

Antall: 1850

Utfylling av ca. 1850 m² med rene steinmasser på nordre del av tomta

Grunnarbeid med utfylling for opparbeidelse av byggeplass

VVS Vann og avløp

Ingen innlagt vann eller avløp planlagt

Ingen tilknytning til vann og avløp

Betong Fundamentering og ringmur

🧱 Betong

Min. vertikal betongtykkelse 250 mm i fotplateforankring, min. avstand 50 mm fra fotplate til ringmur utside

Betongfundamentering og ringmur for lagerhallen

Tak Saltak

Antall: 1

Saltak med gesims- og mønehøyde på 15 meter

Elektro Belysning og strøm

Ingen spesifikke detaljer, men bygget ligger i tidligere høyspentområde (nå nedlagt)

Elektrisk installasjon for lagerhallen

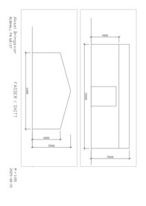
Plantegning

Lagerbygning 450.0 m²

Etasje 1 450.0 m²

Rom Areal Vinduer Dører
Lager 450.0 m² 10 1

Fasader

Lagerbygning

Ukjent
Taktype
Saltak
Høyde
15.0 m
Mønehøyde
15.0 m
Vinduer
2
Dører
1
Synlige etasjer
1

Hendelser

22.04.2026 Høyringssvar - Sande kommune - oppføring av lagerhall - gbnr 68/37 - Voren 45 - fråsegn til søknad om dispensasjon
22.04.2026 Høyringssvar - Sande kommune - oppføring av lagerhall - gbnr 68/37 - Voren 45 - fråsegn til søknad om dispensasjon
21.04.2026 Uttale frå Starsforvaltaren - dispensasjon - Sande 68/37 - Voren 45 - lagerhall
26.03.2026 Oversending av søknad til uttale - Lagerhall - Voren 45 - gnr 68 bnr 37
26.03.2026 Oversending av søknad til uttale - Lagerhall - Voren 45 - gnr 68 bnr 37
05.11.2025 Voren 45 Søknad om rammetillatelse 68/37
04.11.2025 Lagerbygg på 68/37 - Sandsøya
30.10.2025 Vedrørande eventuelt lagerbygg på Sandsøya - Voren 45 - gnr 68 bnr 37
29.10.2025 Førehandskonferanse