Rendering
3D-visualisering (rendering) som viser et nytt bygganlegg med eksisterende deler, inkludert omgivelser, veier og vegetasjon.
1 / 8
NewConstruction
Soeknad
Naeringsbygg
Nyoppføring av hagesenter i Ytrebygdsvegen 158, Bergen
📍 Ytrebygdsvegen 158 , 5252 SØREIDGREND
Nøkkelinfo
- Sakstype
- Nybygg
- Bygningstype
- Naeringsbygg
- Kommune
- Bergen
- Fylke
- Vestland
- Gnr / Bnr
- 114 / 13
- Saksnummer
- BYGG-2026/12408
- Fase
- Søknad
Om byggesaken
Nyoppført næringsbygg for hagesenter i Ytrebygdsvegen 158, Bergen, med to etasjer og saltak. Bygget har fasader i tre med totalt 23 vinduer fordelt på øst, sør og vest, samt flere dører og balkonger. Det er etablert pipe og garasjeport på vestfasaden. Bygget inkluderer butikk- og kontorarealer, med et nytt takoppløft over endeparglass tak mot nybygg. Byggets fasader og takmaterialer er tilpasset tradisjonell trearkitektur.
Produkter og materialer
Pipe
Pipe i trebygg
Antall: 1
Pipe tilknyttet bygget
Tak
Saltak
🧱 ukjent
Nytt takoppløft over endeparglass tak mot nybygg
Saltak med takoppløft over endeparglass tak
Maling
Utvendig maling
Maling av trefasader
Tømrer
Tømrerarbeid
🧱 tre
Tømrerarbeid for oppføring av trebygget
Balkong
Balkong i tre
🧱 tre
Antall: 2
Balkonger på sør og vest fasade
Elektro
Elektrisk anlegg
Elektrisk installasjon for næringsbygg
Dører
Ytterdør
🧱 tre
Antall: 2
Ytterdører i tre på sør og vest fasade
Fasade
Trepanel
🧱 tre
Trepanel på alle fasader
Vinduer
Fasadevindu
🧱 tre
Antall: 23
Fasadevindu i tre fordelt på øst (8 stk), sør (3 stk) og vest (12 stk) fasade
VVS
VVS-installasjoner
VVS-installasjoner for næringsbygg
Betong
Betongfundament og dekker
Betongfundament og dekker for næringsbygg
Grunnarbeid
Fundamentering og grunnarbeid
Grunnarbeid for nyoppføring av næringsbygg
Garasjeport
Garasjeport
Antall: 1
Garasjeport på vestfasade
Fasader
Butikk/kontor
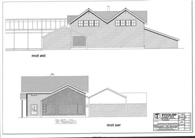
Øst
- Materiale
- Tre
- Taktype
- Saltak
- Vinduer
- 8
- Dører
- 0
- Synlige etasjer
- 2
Sør
- Materiale
- Tre
- Taktype
- Saltak
- Vinduer
- 3
- Dører
- 1
- Balkonger
- 1
- Synlige etasjer
- 2
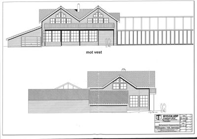
Vest
- Materiale
- Tre
- Taktype
- Saltak
- Vinduer
- 12
- Dører
- 1
- Balkonger
- 1
- Synlige etasjer
- 2
Hendelser
09.04.2026
Søknad om ferdigattest
—