Other UnderBehandling Naeringsbygg

Registrering og ettergodkjenning av industribygg i Rolighetsvegen 11, Porsgrunn

📍 Rolighetsvegen 11 , 3933 PORSGRUNN

Nøkkelinfo

Sakstype
Other
Bygningstype
Naeringsbygg
Bruksareal
1,502 m²
Kommune
Porsgrunn
Fylke
Telemark
Gnr / Bnr
200 / 2017
Saksnummer
2025/7367
Fase
Under behandling

Om byggesaken

Prosjektet omfatter fire eksisterende industribygg på eiendommene Rolighetsvegen 11, 15 og tilgrensende gbnr. 200/2024 og 200/2034 i Porsgrunn. Byggene inkluderer et posefilterhus for støvfiltrering, et lager/kantine/kontorbygg med varig opphold, et senterskorsteinsfilter og et miljøfilterbygg med avtrekksvifter og støvfiltre. Byggene har varierende etasjeantall fra 2 til 3 og fotavtrykk mellom 63 og 1105 m². Det foreligger omfattende tilstandsanalyser som dokumenterer behov for utbedringer som taktekking, stålplatekledning, korrosjonsbeskyttelse, reparasjon av betong og utskifting av vinduer. Prosjektet innebærer formalisering av eksisterende bygningsmasse i kommunens registre og planlegging av nødvendige vedlikeholds- og oppgraderingsarbeider.

Produkter og materialer

Vinduer Industrielle vinduer

Sprekker i flere ruter, vinduer må skiftes ut eller gjenmures

Utskifting av ødelagte vinduer i industribygg

Maling Overflatebehandling fasade

Rengjøring og maling av fasade for å fjerne misfarging og beskytte mot vannavrenning

Overflatebehandling av fasader for å hindre videre korrosjon og forringelse

Betong Betongreparasjon

Skader på betong, eksponert armering, mekanisk reparasjon iht Byggforsk detaljblad 720.423

Reparasjon av betongskader og eksponert armering i byggkonstruksjoner

Grunnarbeid Drenering og vannhåndtering

Tiltak for å hindre vannansamling ved fundament og knutepunkter

Dreneringstiltak for å redusere fuktbelastning på bygg

Trapper Ståltrapper og plattformer

🧱 Stål

Korrosjon og gjennomkorrosjon på trapper og plattformer, må erstattes med nye stålkonstruksjoner

Utskifting av korroderte trapper og plattformer

VVS Avtrekksvifter og støvfiltre

Filterkasser og avtrekksvifter for støv og røyk i industribygg

Vedlikehold og eventuelle oppgraderinger av ventilasjons- og filteranlegg

Tak Taktekking

🧱 Ukjent, men må skiftes/utbedres

Svekket taktekking med lekkasjer og behov for utskifting

Reparasjon og utskifting av taktekking på flere bygg

Fasade Stålplatekledning

🧱 Stålplater

Korrosjonsutsatt stålplatekledning med behov for utskifting og reparasjon

Utskifting og reparasjon av korroderte stålplater på fasade

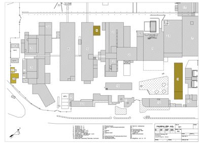
Plantegning

Hovedbygg 0.0 m²

Etasje 1 0.0 m²

Rom Areal Vinduer Dører
Ovnshus nr. 1 1 0.0 m² 0 0
Ovnshus nr. 2 2 0.0 m² 0 0
Ovnshus nr. 3 3 0.0 m² 0 0
Filteranlegg mor 4 0.0 m² 0 0
Råmateriallager nr.2 5 0.0 m² 0 0
Råmateriallager nr.3 6 0.0 m² 0 0
Knuse-/siktelegg 7 0.0 m² 0 0
Ferdivare-/Bingelager nord 8 0.0 m² 0 0
Materiallager/Kantine 9 0.0 m² 0 0
Velferdsbygg 10 0.0 m² 0 0
Kontorbygg 11 0.0 m² 0 0
Mekanisk verksted/Tekniske kontorer 12 0.0 m² 0 0
Plateverksted 13 0.0 m² 0 0
Elektro-/Automasjonsverksted 14 0.0 m² 0 0
MRU 15 0.0 m² 0 0
Pakkeri 16 0.0 m² 0 0
Kai 17 0.0 m² 0 0
Kjørebrovekt 18 0.0 m² 0 0
Lagerhall 19 0.0 m² 0 0
Øsemureverksted 20 0.0 m² 0 0
Laboratorium/Produksjonskontorer 21 0.0 m² 0 0
Ferdigvarelager 22 0.0 m² 0 0
Operatørbod/Kai 23 0.0 m² 0 0
Sentral vaskeplass 24 0.0 m² 0 0
Kontorpavjong 25 0.0 m² 0 0
Tørkeanlegg øster 26 0.0 m² 0 0
Knuser kai 27 0.0 m² 0 0
Lagerhall 28 0.0 m² 0 0
Bingelager 29 0.0 m² 0 0
Miljøfilter ovn nr. 10 30 0.0 m² 0 0
Lagune 31 0.0 m² 0 0
Kjøletårn 32 0.0 m² 0 0
Bingelager 33 0.0 m² 0 0
Miljøfilter ovn nr. 10 34 0.0 m² 0 0
Bingelager 35 0.0 m² 0 0
Miljøfilter ovn nr. 10 36 0.0 m² 0 0
Miljøfilter ovn nr. 10 37 0.0 m² 0 0

Hendelser

17.04.2026 Be om tilbakemelding - Gbnr. 200/2017, Rolighetsvegen 11 og 15, gbnr. 200/2024 og gbnr. 200/2034 - Oppføring av nytt bygg
03.03.2026 Tilbakemelding 3 - Gbnr. 200/2017, Rolighetsvegen 11 og 15, gbnr. 200/2024 og gbnr. 200/2034 - Oppføring av nytt bygg
12.01.2026 Ettersendt vedlegg 2 - Gbnr. 200/2017, Rolighetsvegen 11 og 15, gbnr. 200/2024 og gbnr. 200/2034 - Oppføring av nytt bygg
12.01.2026 Ettersendt dokumentasjon - Gbnr. 200/2017, Rolighetsvegen 11 og 15, gbnr. 200/2024 og gbnr. 200/2034 - Oppføring av nytt bygg
11.12.2025 Purring - Gbnr. 200/2017, Rolighetsvegen 11 og 15, gbnr. 200/2024 og gbnr. 200/2034 - Oppføring av nytt bygg
05.09.2025 Mangelfull søknad - Gbnr. 200/2017, Rolighetsvegen 11 og 15, gbnr. 200/2024 og gbnr. 200/2034 - Oppføring av nytt bygg
30.07.2025 Samtykke Grenland Havn IKS - Gbnr. 200/2017, Rolighetsvegen 11 og 15, gbnr. 200/2024 og gbnr. 200/2034 - Oppføring av nytt bygg
30.06.2025 Tilbakemelding Grenland Havn - Gbnr. 200/2017, Rolighetsvegen 11 og 15, gbnr. 200/2024 og gbnr. 200/2034 - Oppføring av nytt bygg
30.06.2025 Tilleggsdokumentasjon for Grenland havn - Gbnr. 200/2017, Rolighetsvegen 11 og 15, gbnr. 200/2024 og gbnr. 200/2034 - Oppføring av nytt bygg
17.06.2025 Søknad om tillatelse i ett trinn - Gbnr. 200/2017, Rolighetsvegen 11 og 15, gbnr. 200/2024 og gbnr. 200/2034