VerticalExtension Soeknad Naeringsbygg

Påbygg og ombygging av kafé- og servicebygg i Jølstravegen 3261

📍 Jølstravegen 3261 , 6843 SKEI I JØLSTER

Nøkkelinfo

Sakstype
Påbygg
Bygningstype
Naeringsbygg
Bruksareal
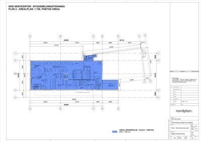
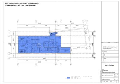
389 m²
Kommune
Sunnfjord
Fylke
Vestland
Gnr / Bnr
310 / 24
Saksnummer
2026/1821
Fase
Søknad

Om byggesaken

Ny 2. etasje påbygges over deler av eksisterende kafé- og servicebygg ved Skei Servicenter i Jølstravegen 3261. Påbygget har et bruttoareal på ca. 389 m² og inkluderer kafé, serveringsareal, kjøkken, personalrom, teknisk rom, toalettanlegg med HC-WC, garderober og møterom. Bygget får et horisontalt tak med et markert skrått tak over vinterhagen, og et nytt takoverbygg over utvidet rampe for venteareal. Fasaden oppgraderes med glass og betong, og gesimshøyden er ca. 7,5 m med mønehøyde opp til 8,9 m. Tiltaket inkluderer også ombygging av eksisterende arealer og forbedret universell utforming, samt ny trapp og heis. Totalt areal for hele bygget etter tiltaket blir ca. 1042 m². Området omfatter flere eiendommer og tiltaket er tilpasset eksisterende bygningsmasse og funksjon som servicenter.

Produkter og materialer

Tak Flatt tak og saltak

🧱 Taktekking og membran

Nytt horisontalt tak med markert skrått tak over vinterhage, takoverbygg over rampe

Nytt tak på påbygg og takoverbygg over uteareal

Tømrer Byggkonstruksjoner og montering

🧱 Trekonstruksjoner

Påbygg med trekonstruksjoner, montering av vinduer, dører, taktekking og membranarbeid

Tømrerarbeid for påbygg og ombygging

Elektro Belysning og tekniske installasjoner

Elektriske installasjoner for belysning, tekniske rom og ventilasjon

Elektroinstallasjoner i påbygg

Maling Innvendig og utvendig maling

Maling av fasader og innvendige overflater i påbygg

Overflatebehandling og maling

Fasade Glassfasade og betongfasade

🧱 Glass og betong

Fasade øst og vest med glass, fasade nord og sør med betong, saltak med gesimshøyde ca. 6,9-8,3 m og mønehøyde ca. 9,9 m

Oppgradering og utvidelse av fasader med glass og betongmaterialer, inkludert nye vinduer og dører

Dører Ytterdører og skyvedører

Antall: 5

Nye ytterdører, inkludert dobbel skyvedør 20x21M, og dører til tekniske rom og personalrom

Dører for påbygg og ombygging

Kjøkken Kjøkken og anretning

Utvidet kjøkkenareal på 14,5 m² og anretning i påbygg

Kjøkkeninnredning og utstyr for kafé/servering

Ventilasjon Ventilasjonsrom og teknisk rom

Antall: 1

Nytt teknisk rom/ventilasjonsrom på 24,5 m² i påbygg

Ventilasjonsanlegg for påbygg

Vinduer Fasadevindu og vinduer i påbygg

Antall: 16

Nye vinduer i fasade øst, vest, nord og sør, totalt ca. 16 vinduer

Nye vinduer for påbygg og fasadeendring

Trapper Innvendig trapp og trapp til møterom

Antall: 2

Ny trapp til møterom og ny trapp i påbygg, samt trapp i trapperom på 16,6 m²

Trapper for intern adkomst i påbygg

VVS Toalettanlegg og dusj

Nye toaletter inkludert HC-WC, dusj og garderober for døgnkvilesjåfører

Sanitærinstallasjoner i påbygg

Grunnarbeid Utomhusplan og drenering

Utomhusplan med rampe, takoverbygg og drenering tilpasset påbygg

Grunn- og terrengarbeider for tilpasning av uteareal

Rekkverk Rekkverk ved trapper og ramper

Rekkverk for trapper og ramper i påbygg og uteareal

Sikkerhetsrekkverk

Gulv Gulvbelegg i kafé, kontor og personalrom

Gulv i påbygg med kafé, kontorer og personalrom

Gulvbelegg og overflater i påbygg

Fasader

Stasjonsbygg

Øst
Materiale
Glass
Taktype
Saltak
Høyde
8.3 m
Mønehøyde
9.9 m
Vinduer
3
Dører
1
Synlige etasjer
2
Vest
Materiale
Glass
Taktype
Saltak
Høyde
8.3 m
Mønehøyde
9.9 m
Vinduer
3
Dører
1
Synlige etasjer
2
Nord
Materiale
Betong
Taktype
Saltak
Høyde
6.9 m
Mønehøyde
9.9 m
Vinduer
11
Dører
1
Balkonger
1
Synlige etasjer
2
Sør
Materiale
Betong
Taktype
Saltak
Høyde
6.9 m
Mønehøyde
9.9 m
Vinduer
10
Dører
1
Synlige etasjer
2

Hendelser

22.04.2026 Søknad om dispensasjon gbnr. 310/24 - Jølstravegen 3261
17.03.2026 Tilbakemelding - Uttale - Søknad om tiltak - E39 - gnr. 310 bnr. 21 - Sunnfjord kommune
17.03.2026 Uttale - Søknad om tiltak - E39 - gnr. 310 bnr. 21 - Sunnfjord kommune
11.03.2026 Uttale - Nabovarsel - Påbygg og ombygging av eksisterende kafé- og serviceanlegg - gnr 310 bnr 24 m.fl. - Jølstravegen 3261 - Sunnfjord kommune