VerticalExtension UnderBehandling Naeringsbygg

Påbygg og bruksendring av driftsbygning til selskapslokale, Samslåttvegen 46

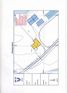
📍 Samslåttvegen 46 , 4335 DIRDAL

Nøkkelinfo

Sakstype
Påbygg
Bygningstype
Naeringsbygg
Bruksareal
79 m²
Kommune
Gjesdal
Fylke
Rogaland
Gnr / Bnr
78 / 17
Saksnummer
24/00477
Fase
Under behandling

Om byggesaken

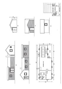
Prosjektet omfatter et påbygg på en tidligere driftsbygning på ca. 79 m² totalt, hvor taket heves i en seksjon for å etablere et hobbyrom/anneks. Bygningen endrer funksjon fra landbruksdrift til selskapslokale med ca. 30 sitteplasser, inkludert kurs- og møtevirksomhet. Bygget er plassert i et landbruksområde med tilhørende dispensasjon fra kommuneplanens LNF-formål og 50-meters byggeforbudssone langs vassdrag. Det er gjennomført omfattende fagkyndige vurderinger av flomfare, kvikkleireskred og brannsikkerhet, med tiltak som brannskillevegger i murstein, nødlys, røykvarslere og slokkeutstyr. Bygget har tre rømningsveier og tilfredsstiller krav til universell utforming. Vann- og avløpsløsning er under avklaring, og bygget er tilknyttet kommunalt vann. Flom- og kvikkleirevurderinger konkluderer med at tiltaket ligger på sikker grunn innenfor sikkerhetsklasse F2 og tiltakskategori K3, med lav risiko for områdeskred. Bygget er oppført med brannskillevegger EI 30 mot nærliggende bygg og har godkjent bruksendring til selskapslokale.

Produkter og materialer

Fasade Brannskillevegg i murstein

🧱 Murstein, brannskille EI30

Antall: 2

Vegg mot grisehus og garasje utføres som brannskille EI30, åpninger i EI30

Brannskillevegger mot nærliggende bygg for å hindre brannspredning

Tak Påbygg med hevet tak

🧱 EI30 brannklasse tak

Antall: 1

Tak i klasse EI30, hevet tak i seksjon 6,0 m fra gavl

Påbygg med hevet tak i brannklasse EI30 for hobbyrom

Avløp Avløpsløsning

Antall: 1

Avklaring av avløpsløsning nødvendig, tilknytning til kommunalt vann

Avløpssystem for selskapslokale under avklaring

VVS Varmepumpe og ventilasjon

Antall: 1

Montert ventilasjon og varmepumpe for oppvarming og kjøling

Teknisk installasjon for inneklima og energistyring

Dører Rømningsdører

Antall: 3

Tre rømningsveier med dører direkte ut, nødlys med batteridrift

Dører for sikker rømningsvei med nødlys

Brannvern Røykvarslere og slokkeutstyr

🧱 6 kg ABC-pulverapparat

Antall: 1

Minst én røykvarsler, 6 kg ABC-pulverapparat lett tilgjengelig

Brannvernutstyr for tidlig varsling og slokking

Vinduer Brannklassifiserte vinduer

Antall: 2

Vinduer i brannklasse EI30 i vegg mot garasje

Små brannklassifiserte vinduer i brannskillevegg

Grunnarbeid Fundamentering og gulv

Antall: 1

Eksisterende gulv og fundamenter tåler vekten for ny bruk

Grunnarbeid og fundamentering for påbygg og bruksendring

Fasader

Enebolig

Nordøst
Materiale
Tre
Taktype
Saltak
Høyde
2.9 m
Mønehøyde
4.3 m
Vinduer
3
Dører
1
Synlige etasjer
1
Sørvest
Materiale
Tre
Taktype
Saltak
Høyde
2.9 m
Mønehøyde
4.3 m
Vinduer
5
Dører
1
Synlige etasjer
1
Sørøst
Materiale
Tre
Taktype
Saltak
Høyde
2.9 m
Mønehøyde
4.3 m
Vinduer
2
Dører
1
Synlige etasjer
1
Nordvest
Materiale
Tre
Taktype
Flatt tak
Vinduer
1
Dører
0
Synlige etasjer
1

Hendelser

16.04.2026 24/00477-5 Avvik oppfølging bruksenhet
13.04.2026 24/00477-24 Supplering av søknad fra Jan Bård Dirdal om dispensasjon fra kommuneplanen, godkjenning av oppført tilbygg og bruksendring av driftsbygning til selskapslokale, gnr. 78 bnr. 17, Samslåttvegen 46, Dirdal
04.02.2026 24/00477-4 Avvik oppfølging bruksenhet
02.09.2025 24/00477-23 Svar på brev av 31.03.25 - spørsmål om avløpsanlegg/-ordning - selskapslokale, gnr. 78, bnr. 17, Samslåttvegen 46, Dirdal
21.08.2025 24/00477-22 Oppfølging - søknad om godkjenning av oppført tilbygg og bruksendring av driftsbygning til selskapslokale, gnr. 78, bnr. 17, Samslåttvegen 46, Dirdal
31.03.2025 24/00477-21 Videre avklaringer, avløpsanlegg - selskapslokale, gnr. 78, bnr. 17, Samslåttvegen 46, Dirdal
26.03.2025 24/00477-20 Behov for avklaringer - søknad om godkjenning av oppført tilbygg og bruksendring av driftsbygning til selskapslokale, gnr. 78, bnr. 17, Samslåttvegen 46, Dirdal
04.03.2025 24/00477-17 GODKJENT - søknad fra Jan Bård Dirdal om dispensasjon fra kommuneplanen for bruksendring av driftsbygning til selskapslokale, gnr. 78 bnr. 17, Samslåttvegen 46, Dirdal
17.02.2025 24/00477-16 Oversendelse av rapporter , vurdering av risiko, flom og leire, gnr. 78, bnr. 17, Samslåttveien 46, Dirdal
17.02.2025 24/00477-15 Brannvurdering vedr bruksendring, gnr. 78, bnr. 17, Samslåttveien 46, Dirdal
12.09.2024 24/00477-14 E-post, informasjon om faresoner, gnr. 78, bnr. 17, Dirdal
12.09.2024 24/00477-13 Veiledning på e-post, veien videre, dispensasjon fra kommuneplanen, gnr. 78, bnr. 17, Dirdal
06.06.2024 24/00477-3 Resultat etter brannforebyggende tiltak
15.02.2024 24/00477-2 Avvik oppfølging bruksenhet
15.01.2024 24/00477-1 Resultat etter brannforebyggende tiltak