VerticalExtension Igangsettingstillatelse Naeringsbygg

Påbygg og tilbygg fryselager og kontor, Hanekleiva 76

πŸ“ Stokkestua 1 , 3070 SANDE I VESTFOLD

NΓΈkkelinfo

Sakstype
Påbygg
Bygningstype
Naeringsbygg
Bruksareal
1,966 mΒ²
Kommune
Holmestrand
Fylke
Vestfold
Gnr / Bnr
312 / 1
Saksnummer
2025/1294
Fase
Igangsettingstillatelse

Om byggesaken

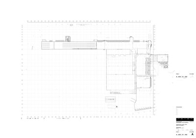
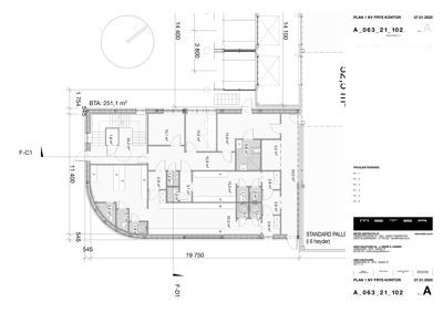
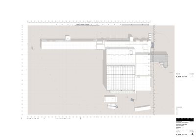
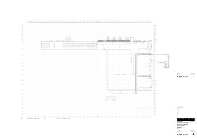
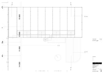
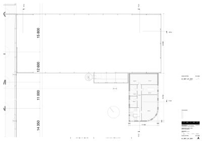
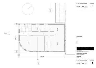
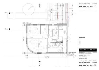
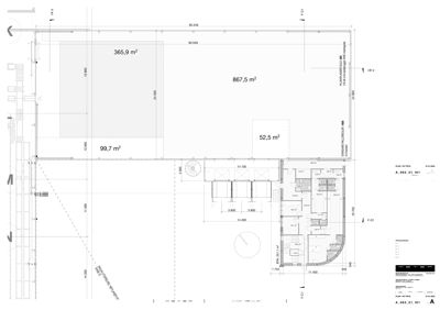
Prosjektet omfatter påbygg og tilbygg til eksisterende næringsbygg på Hanekleiva 76, bestående av et nytt fryselager og kontorarealer. Tilbygget har et bebygd areal på ca. 1871 m² og et samlet bruksareal på 1966 m², med flere etasjer inkludert tekniske rom. Bygget er planlagt med tilsvarende materialbruk og farger som eksisterende bygg, og inkluderer tekniske installasjoner som varme, kulde, ventilasjon, sanitær, brannalarmanlegg og slukkeinstallasjoner. Det er også planlagt montering av solcelleanlegg på taket. Prosjektet har omfattende ansvarlige prosjekterende, utførende og kontrollerende aktører, og er i tiltaksklasse 3. Bygget inneholder fryselager, kontorer, møterom, garderober og tekniske rom, med tilhørende grunnarbeider, betongkonstruksjoner og stålbygg.

Produkter og materialer

Elektro Brannalarmanlegg og ledesystemer

Brannalarmanlegg og ledesystemer installert i bygget.

Brannalarmanlegg og ledesystemer.

Dører Innvendige og utvendige dører

Antall: 100

Dører til kontorer, møterom, korridorer, tekniske rom og fryselager, inkludert HCWC og sluser.

Innvendige og utvendige dører for alle rom og funksjoner.

Maling Innvendig maling

Innvendig maling av kontor- og lagerarealer.

Innvendige malingsarbeider.

Solceller Takmontert solcelleanlegg

🧱 Monokrystallinske solcellepaneler, monteringssystem i Magnelis

Antall: 320

320 solcellepaneler med effekt 650 Wp, montert på flatt tak med PanelClaw Wave monteringssystem, invertere fra Kaco New Energy.

Solcelleanlegg på tak for energiproduksjon.

Vinduer Fasadevindu

Antall: 5

Vinduer i kontor og møterom, antall ca. 5 vinduer i 1. etasje.

Fasadevindu til kontor og møterom.

Grunnarbeid Grunn, utomhus, riving, VA og betong fundamenter

Omfatter grunnarbeider, utomhus, riving, vann og avløp, samt betongfundamenter for påbygg og tilbygg.

Grunnarbeid og fundamentering for nytt påbygg og tilbygg.

VVS Sanitærinstallasjoner

Sanitærinstallasjoner for kontor og lager, inkludert HCWC og toaletter.

Sanitærinstallasjoner for bygget.

Fasade Fasade og kledning

🧱 Materialer som kopierer eksisterende bygg

Fasade og materialbruk videreføres som eksisterende bygg i henhold til reguleringsplan.

Fasade og kledning for påbygg og tilbygg.

Stål Montering av bærende metallkonstruksjoner

🧱 Stål

Montering av bærende metall- eller betongkonstruksjoner, inkludert fasadekasser og taktekking.

Stålkonstruksjoner for påbygg og tilbygg.

Elektro Elektriske installasjoner

Elektriske installasjoner inkludert tavlerom og tekniske rom.

Elektriske installasjoner for bygget.

Ventilasjon Ventilasjon og klimainstallasjoner

Ventilasjon og klimainstallasjoner for fryselager og kontor.

Ventilasjon og klimainstallasjoner.

Betong Plasstøpte betongkonstruksjoner

🧱 Betong

Plasstøpte betongkonstruksjoner for fundamenter og bærende konstruksjoner.

Betongkonstruksjoner for påbygg og tilbygg.

Gulv Gulvbelegg og fliser

Gulvbelegg i kontor og tekniske rom, fliser i våtrom.

Gulvbelegg og fliser.

VVS Varme- og kuldeinstallasjoner

Varme- og kuldeinstallasjoner for fryselager og kontor, inkludert kuldeinstallasjoner.

Varme- og kuldeinstallasjoner for bygget.

Trapper Innvendige trapper

Antall: 4

Flere trapper i bygget, inkludert trapp i kontorbygg og fryselager.

Innvendige trapper for etasjetilgang.

Hendelser

16.04.2026 Gbnr 312/1/2 - Hanekleiva 76 - utvidelse av fryselager - søknad om endring av gitt tillatelse eller godkjenning
10.11.2025 Gbnr 312/1/2 - Hanekleiva 76 - frys og kontor - søknad om igangsettingstillatelse - tilleggsinformasjon
07.11.2025 Gbnr 312/1/2 - Hanekleiva 76 - tilbygg - fryselager og kontor - igangsettingstillatelse nr. 2 for hele tiltaket
03.11.2025 Gbnr 312/1 - Hanekleiva 76 - påbygg - fryselager og kontor - søknad om igangsettingstillatelse
23.05.2025 Gbnr 312/1/2 - Hanekleiva 76 - fryselager - igangsettingstillatelse nr. 1
23.05.2025 Gbnr 312/1/2 - Hanekleiva 76 - fryselager - søknad om igangsettingstillatelse nr. 1
22.05.2025 Gbnr 312/1 - Hanekleiva 76 - påbygg - fryselager og kontor - søknad om igangsettingstillatelse
16.05.2025 Gbnr 312/1/2 - Hanekleiva 76 - ASKO - utstikking - frys - batteri - PIR BT2
15.03.2025 Gbnr 312/1/2 - Hanekleiva 76 - tilbygg - fryselager og kontor - rammetillatelse
04.03.2025 Gbnr 312/1/2 - Hanekleiva 76 - reviderte tegninger
26.02.2025 Gbnr 312/1/2 - Hanekleiva 76 - opplysninger om BRA for tilbygg fryselager og kontor
31.01.2025 Gbnr 312/1 - Hanekleiva 76 - påbygg - fryselager og kontor - søknad om rammetillatelse