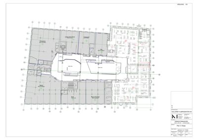
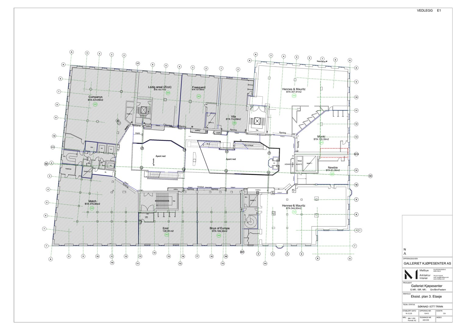
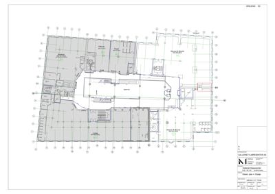
FloorPlan
Etasjeplan (3. etasje) for Galleriet kjøpesenter, som viser romfordeling, arealer og arkitektoniske detaljer.
1 / 5
Rehabilitation
Rammetillatelse
Naeringsbygg
Endring av bærevegg i næringsbygg på Torgallmenningen 4, Bergen
📍 Torgallmenningen 4 , 5014 BERGEN
Nøkkelinfo
- Sakstype
- Rehabilitering
- Bygningstype
- Naeringsbygg
- Bruksareal
- 0 m²
- Kommune
- Bergen
- Fylke
- Vestland
- Gnr / Bnr
- 166 / 623
- Saksnummer
- BYGG-2025/18556
- Fase
- Rammetillatelse
Om byggesaken
Endring av bærevegg i eksisterende næringsbygg i Galleriet Kjøpesenter på Torgallmenningen 4 i Bergen. Tiltaket omfatter utsparing i bærevegger i plan 3 og 4 i H&M sine lokaler for å slå sammen salgsarealer. Bygget er et kjøpesenter med flere etasjer og ulike butikklokaler, hvor endringen er innvendig og ikke berører bevaringsverdige deler. Prosjektet inkluderer riving av deler av bærevegger, montering av nye bærende metall- eller betongkonstruksjoner, og miljøsanering av avfall. Arealet som berøres er del av et større kjøpesenter med totalt over 7500 m², og tiltaket er planlagt med ansvarlige prosjekterende og utførende.
Produkter og materialer
Mur
Bærevegg utsparing og ombygging
🧱 Betong og metallkonstruksjoner
Utsparing i bærevegg i plan 3 og 4, montering av bærende metall- eller betongkonstruksjoner
Fjerning og ombygging av bærevegger for å slå sammen butikklokaler i H&M sine arealer
Grunnarbeid
Miljøsanering
Prosjektering og utførelse av miljøsanering i forbindelse med riving
Miljøsanering av avfall fra riving
Riving
Riving av deler av bærevegg
Riving som genererer mer enn ti tonn avfall, inkludert miljøsanering
Riving av eksisterende bærevegg for utsparing
Tømrer
Innvendige konstruksjoner
Innvendig ombygging i bærevegger i plan 3 og 4
Ombygging av innvendige bærevegger i kjøpesenteret
Plantegning
Kjøpesenter 3,646.8 m²
Etasje 3 3,646.8 m²
| Rom | Areal | Vinduer | Dører |
|---|---|---|---|
| Match 101 | 380.0 m² | 1 | 1 |
| Emil 102 | 138.1 m² | 1 | 1 |
| Boys of Europe 103 | 169.3 m² | 1 | 1 |
| Companies 104 | 324.7 m² | 1 | 1 |
| Ledig areal (Zizzi) 105 | 130.8 m² | 1 | 1 |
| Frequent 106 | 127.2 m² | 1 | 1 |
| Vila 107 | 114.7 m² | 1 | 1 |
| Hennes & Mauritz 108 | 357.9 m² | 1 | 1 |
| Monki 109 | 129.4 m² | 1 | 1 |
| Newbie 110 | 81.1 m² | 1 | 1 |
| Hennes & Mauritz 111 | 344.8 m² | 1 | 1 |
| Apert ned 112 | 0.0 m² | 0 | 0 |
Galleriet Kjøpesenter 7,561.5 m²
Etasje 4 3,311.5 m²
| Rom | Areal | Vinduer | Dører |
|---|---|---|---|
| Panduro 401 | 331.5 m² | 4 | 2 |
| TilBords 402 | 116.8 m² | 2 | 1 |
| Degui 403 | 143.8 m² | 2 | 1 |
| Hennes & Mauritz 404 | 600.9 m² | 3 | 1 |
| Index 405 | 594.3 m² | 4 | 2 |
| Hennes & Mauritz 406 | 431.4 m² | 3 | 1 |
| Åpent ned 407 | 1,500.0 m² | 0 | 0 |
| Toalett 408 | 0.0 m² | 0 | 0 |
| Kjøkken 409 | 0.0 m² | 0 | 0 |
| Vaskerom 410 | 0.0 m² | 0 | 0 |
| Teknisk rom 411 | 0.0 m² | 0 | 0 |
| Lift 412 | 0.0 m² | 0 | 0 |
Etasje 3 4,250.0 m²
| Rom | Areal | Vinduer | Dører |
|---|---|---|---|
| Match 301 | 379.9 m² | 4 | 1 |
| Emil 302 | 136.1 m² | 2 | 1 |
| Boys of Europe 303 | 169.3 m² | 3 | 1 |
| Ledig areal (Zizzi) 304 | 130.8 m² | 2 | 1 |
| Frequent 305 | 127.1 m² | 2 | 1 |
| Vila 306 | 114.7 m² | 2 | 1 |
| Company's 307 | 324.7 m² | 3 | 1 |
| Apent ned 308 | 0.0 m² | 0 | 0 |
| Apent ned 309 | 0.0 m² | 0 | 0 |
| Gang 310 | 0.0 m² | 0 | 0 |
Hendelser
12.01.2026
Ubw ordre 20685433
12.01.2026
Gebyr
09.01.2026
Tillatelse til tiltak med ansvarsrett. Torgallmenningen 4. 166/623
29.12.2025
Torgallmenningen Søknad om tillatelse i ett trinn 166/623
—