Rehabilitation Igangsettingstillatelse Naeringsbygg

Ombygging og påbygg av Kunnskapsverkstedet, Uniongata 18, Skien

๐Ÿ“ Uniongata 18 , 3732 SKIEN

Nรธkkelinfo

Sakstype
Rehabilitering
Bygningstype
Naeringsbygg
Bruksareal
7,462 mยฒ
Kommune
Skien
Fylke
Telemark
Gnr / Bnr
300 / 5280
Saksnummer
2024/25512
Fase
Igangsettingstillatelse

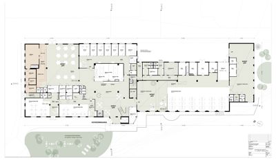
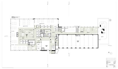
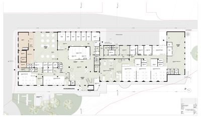
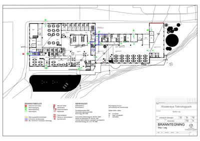
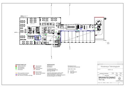
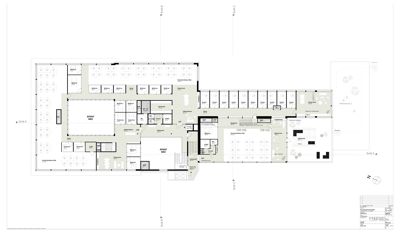
Om byggesaken

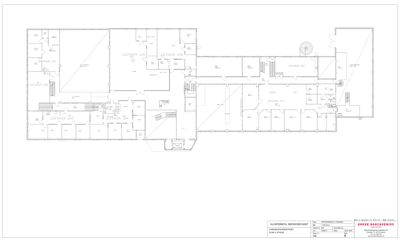
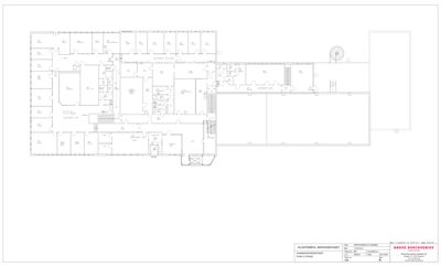
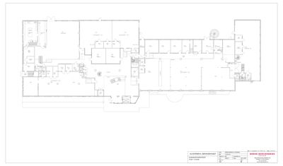
Kunnskapsverkstedet er et eksisterende kontorbygg på ca. 7462 m² BRA, opprinnelig verksted- og administrasjonsbygg fra 1950-60-tallet, som nå gjennomgår omfattende ombygging og påbygg. Bygget består av tre hovedetasjer med betongkonstruksjoner i 1. og 2. etasje, og et nyere påbygg over deler av sørfløyen. Det eksisterende 3. etasje rives og erstattes med to nye etasjer, og det etableres et teknisk rom på taket. Fasaden i 1. og 2. etasje etterisoleres og pusses, mens påbygget får en lettere konstruksjon med langsgående vindusbånd i lakkert metall. Interiøret oppgraderes med nye planløsninger, universell utforming, nye tekniske anlegg, og forbedret lysforhold. Utomhus oppgraderes adkomst, sykkelparkering og parkeringsplasser, med fokus på universell utforming. Prosjektet inkluderer omfattende branntekniske tiltak, uavhengig kontroll, og dispensasjoner fra reguleringsplan og TEK17.

Produkter og materialer

Heis Heis og løfteplattform

Antall: 1

Eksisterende heis oppgraderes eller erstattes for å nå alle etasjer, løfteplattform planlagt mellom 3. og 4. etasje.

Heis og løfteplattform installeres for universell utforming og tilgjengelighet.

Ventilasjon Ventilasjonsanlegg med røykventilasjon

Ventilasjonsanlegg prosjekteres med røykdetektorer, røykventilasjon i glassgård og trapperom, mekanisk og termisk ventilasjon.

Ventilasjonssystem oppgraderes med brannsikringstiltak og røykventilasjon i rømningsveier.

Rekkverk Eksisterende rekkverk i stål og glass

๐Ÿงฑ Stål og glass

Eksisterende rekkverk på gangbro og trapper oppgraderes med belysning, kontrastmarkering og vedlikehold, unntak fra krav om klatrehemming.

Eksisterende rekkverk bevares med kompenserende tiltak for sikkerhet.

Trapper Innvendige trapper i betong og stål

๐Ÿงฑ Betong, støpt terrazzo, lakkert stål

Antall: 7

Eksisterende trapper bevares med oppgradering av håndløpere, trappeneser, belysning, fare- og oppmerksomhetsfelt. Ny ståltrapp bygges mellom 3. og 4. etasje.

Eksisterende trapper med kulturhistorisk verdi oppgraderes med kompenserende tiltak, ny hovedtrapp etableres i adkomsthallen.

Dører Ytterdør og innvendige dører

๐Ÿงฑ Aluminium og tre, varierende bredde

Antall: 20

Dører oppgraderes med dørautomatikk der nødvendig, enkelte dører har avvik i bredde og terskelhøyde med kompenserende tiltak.

Dører til WC, tekniske rom og kontorer oppgraderes, med unntak av enkelte eksisterende dører med avvik som kompenseres.

Vinduer Fasadevindu

๐Ÿงฑ Lakkert metallramme, 3-lags energiglass

Antall: 82

Vinduer i 1. og 2. etasje byttes ut med bedre U-verdi og økt dagslysinnslipp. Påbygg får langsgående vindusbånd i glassfasade-system med slanke sprosser.

Alle vinduer i bygget byttes, inkludert store industrielle vinduer i verkstedhallene, for bedre isolasjon og lysforhold.

Glass Glassfasade heisoppbygg

๐Ÿงฑ To-lags glass, aluminium rammer

Eksisterende glassfasade i heisoppbygg beholdes med kontrastmerking og vedlikehold, unntak fra krav om sikkerhetsglass.

Glassfasade i heisoppbygg opprettholdes med kompenserende tiltak for sikkerhet.

Grunnarbeid Oppgradering av uteområder

Antall: 10

Opparbeidelse av 10 parkeringsplasser inkl. HC-parkering, oppgradering av sykkelparkering og ledelinjer ved hovedinngang.

Utomhus oppgraderes med parkeringsplasser, sykkelparkering og universell utforming.

Maling Luminanskontrast og oppussing

Oppussing av trapperom og overflater med farger som tilfredsstiller krav til luminanskontrast.

Innvendige overflater males og oppgraderes for bedre synlighet og estetikk.

Fasade Pusset betong og lakkert metall

๐Ÿงฑ Siporex isolert og pusset betong i 1. og 2. etasje, lakkert metallplater i påbygg

Eksisterende fasade etterisoleres og pusses, påbygg får ensartet fasade i lakkert metall med horisontale og vertikale profiler.

Fasadeoppgradering med etterisolering og ny puss i basen, og moderne industrielt uttrykk i påbygget.

Tak Flatt tak med teknisk rom og takterrasse

๐Ÿงฑ Teknisk rom i lakkert metall, takterrasse med glassoverbygg

Nytt teknisk rom på tak med ca 230 m², takterrasse på 3. og 3,5. etasje, med dispensasjon for takoppbygg over 5% av takflaten.

Tak oppgraderes med teknisk rom og takterrasser, inkl. overlys med flatt tak.

VVS Sanitær-, varme- og slukkeinstallasjoner

Nye tekniske anlegg med føringer, aggregater og sjakter, tilknyttet fjernvarme.

Fullstendig oppgradering av tekniske anlegg for varme, sanitær og sprinkler.

Isolasjon Ubrennbar isolasjon

๐Ÿงฑ A2-s1,d0 klassifisert isolasjon

Isolasjon i yttervegger og tak skal være ubrennbar eller dokumentert system for fasadeisolasjon.

Isolasjon oppgraderes for å forbedre energiytelse og brannsikkerhet.

Elektro Brannalarmanlegg, nødlys og ledesystem

Heldekkende automatisk brannalarmanlegg kategori 2, nødlys med 60 min driftstid, adresserbart system.

Brannalarmanlegg og nødlys installeres i henhold til NS 3960 og NS-EN 54-serien.

Fasader

Hovedbygg

Nord
Materiale
Betong
Vinduer
22
Dรธrer
1
Synlige etasjer
3
Sør
Materiale
Betong
Vinduer
18
Dรธrer
1
Synlige etasjer
3

Kunnskapsverkstedet

Vest
Materiale
Betong
Taktype
Flatt tak
Vinduer
42
Dรธrer
3
Synlige etasjer
3

Hendelser

16.04.2026 Søknad om unntak fra TEK 03 - Gbnr. 300/ 5280 - Kunnskapsverkstedet
10.04.2026 Søknad om unntak fra TEK 02 - gbnr 300/5280 - Uniongata 18 - ombygging/påbygg
07.04.2026 Supplerende info eksisterende trapp C - Gbnr 300/5280 - Uniongata 18 - ombygging/påbygg
19.11.2025 Fakturagrunnlag - Gbnr 300/5280 - Uniongata 18 - ombygging/påbygg
11.11.2025 Unntak fra TEK17 - Gbnr 300/5280 - Uniongata 18 - ombygging/påbygg
21.10.2025 Søknad om unntak fra TEK - Gbnr 300/5280 - Uniongata 18 - ombygging/påbygg
07.05.2025 Igangsettingstillatelse del 3 og dispensasjon fra regulerte byggehøyder - Gbnr 300/5280 - Uniongata 18 - ombygging/påbygg
07.05.2025 Fakturagrunnlag IG3 - Gbnr 300/5280 - Uniongata 18 - ombygging/påbygg
07.04.2025 Søknad om igangsettingstillatelse - Gbnr 300/5280 - Uniongata 18 - ombygging/påbygg
12.03.2025 Igangsettingstillatelse del 2 - Gbnr 300/5280 - Uniongata 18 - ombygging/påbygg
12.03.2025 Fakturagrunnlag IG2 - Gbnr 300/5280 - Uniongata 18 - ombygging/påbygg
07.03.2025 Søknad om igangsettingstillatelse - del 2 - Gbnr 300/5280 - Uniongata 18 - ombygging/påbygg
05.02.2025 Innvilger søknaden om samtykke - gbnr 300/5280 - Uniongata 18 - ombygging/påbygg
19.12.2024 Fakturagrunnlag IG1 - Gbnr 300/5280 - Uniongata 18 - ombygging/påbygg
19.12.2024 Fakturagrunnlag - Gbnr 300/5280 - Uniongata 18 - ombygging/påbygg
19.12.2024 Igangsettingstillatelse del 1 - Gbnr 300/5280 - Uniongata 18 - ombygging/påbygg
17.12.2024 Søknad om igangsettingstillatelse - Gbnr 300/5280 - Uniongata 18 - ombygging/påbygg
13.12.2024 Rammetillatelse - Gbnr 300/5280 - Uniongata 18 - ombygging/påbygg
05.12.2024 Uttalelse fra Grenland brann og redning IKS - Gbnr 300/5280 - Uniongata 18 - ombygging/påbygg
28.11.2024 Brannkonsept til uttalelse - Gbnr 300/5280 - Uniongata 18 - ombygging/påbygg
07.10.2024 Søknad om rammetillatelse - Gbnr 300/5280 - Uniongata 18 - forhåndskonferanse - ombygging/påbygg
30.09.2024 Referat forhåndskonferanse - Gbnr.300/5280 - Uniongata 18 - Ombygging/påbygg
11.09.2024 Fakturagrunnlag - Gbnr 300/5280 - Uniongata 18 - Forhåndskonferanse
12.08.2024 Anmodning om forhåndskonferanse - Gbnr 300/5280 - Uniongata 18
09.08.2024 Anmodning - Gbnr 300/5280 - Uniongata 18 - forhåndskonferanse