Extension Soeknad Naeringsbygg

Ombygging tekniske installasjoner i Bankgata 26 ungdomsskole

📍 Bankgata 26 , 8005 BODØ

Nøkkelinfo

Sakstype
Tilbygg
Bygningstype
Naeringsbygg
Bruksareal
4,000 m²
Kommune
Bodø
Fylke
Nordland - Nordlánnda
Gnr / Bnr
138 / 1424
Saksnummer
2026/15939
Fase
Søknad

Om byggesaken

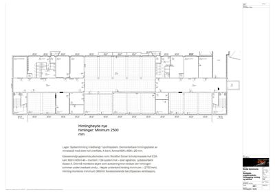
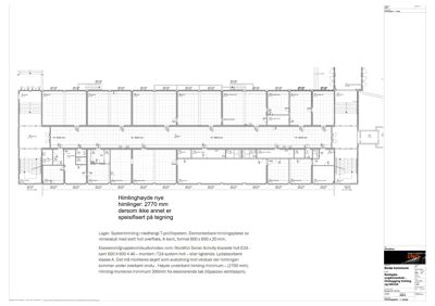
Ombygging av tekniske installasjoner i Bankgata ungdomsskole, et næringsbygg på 4000 m². Prosjektet omfatter nedlekting og montering av nye systemhimlinger i klasserom, korridorer og birom, utskifting av gulvstående ventilasjonsenheter med himlingsmonterte VAV-ventiler, samt ny belysning i tilknytning til himlingsarbeidene. Tiltaket inkluderer også mindre ombygginger av brannalarmanlegg og miljøsanering. Byggets klimaskall og lydskiller berøres ikke, og det gjøres ingen utvendige endringer. Arbeidet foregår i eksisterende skolebygg med flere etasjer og mange klasserom.

Produkter og materialer

Miljøsanering Miljøsanering

Miljøsanering i forbindelse med ombygging

Miljøsaneringstiltak i skolebygg

Tømrer Himlingsarbeid

🧱 Nedlekting, himlingsplater

Nedlekting for nye himlinger i flere etasjer

Tømrerarbeid knyttet til montering av nye himlinger

Ventilasjon Himlingsmonterte VAV-ventiler

Utskifting av gulvstående ventilasjonsenheter med himlingsmonterte VAV-ventiler

Oppgradering av ventilasjonsanlegg med nye VAV-ventiler i himling

Grunnarbeid Ingen nye grunnarbeider

Ingen endringer i grunn eller klimaskall

Ingen grunnarbeider nødvendig

Brannvern Brannalarmanlegg

Mindre ombygginger av brannalarmanlegg i eksisterende brannceller

Oppgradering og ombygging av brannalarmanlegg

Tak Systemhimling

🧱 Nedlekting for systemhimling

Nye systemhimlinger i klasserom, korridorer og birom, himlingshøyde ca. 2500-2800 mm

Nedlekting og montering av nye systemhimlinger i flere etasjer

Fasade Ingen utvendige endringer

Ingen endringer på byggets klimaskall

Ingen utvendige bygningsmessige endringer

Elektro Belysning

Ny belysning monteres i forbindelse med ny himling

Oppgradering av belysningsanlegg i skolebygg

Hendelser

09.04.2026 Bekreftelse på mottatt søknad - Bankgata 26
09.04.2026 Ett-trinns søknad - Bankgata 26
09.04.2026 Vi innvilger søknaden om samtykke etter automatisk saksbehandling