Extension UnderBehandling Naeringsbygg

Ombygging og tilbygg til McDonald's restaurant i Bøgata 79, Bø

📍 Bøgata 79 , 3800 BØ I TELEMARK

Nøkkelinfo

Sakstype
Tilbygg
Bygningstype
Naeringsbygg
Bruksareal
63 m²
Kommune
Midt-Telemark
Fylke
Telemark
Gnr / Bnr
53 / 30
Saksnummer
25/10812
Fase
Under behandling

Om byggesaken

Eksisterende bensinstasjonsbygg i Bøgata 79 ombygges til en McDonald's restaurant med ca. 60 sitteplasser og en drive-thru bane som går rundt bygget på vest-, sør- og østfasade. Bygget får to tilbygg på til sammen 63 m², og eksisterende pumpetak og drivstoffpumper videreføres. Det etableres 13 ordinære parkeringsplasser, 2 HC-plasser og ca. 7 sykkelparkeringsplasser. Drive-thru banen har egen innkjøring på vestsiden og utkjøring på østsiden. Fasaden får ny kledning med liggende trepanel, grønn og mørk grå farge, samt flere fasadeskilt inkludert McDonald's ikoniske gule M og McCafé. Terrenget heves noe i forbindelse med drive-thru, med kompensert oppfylling med lette masser (glasopor). Trafikkanalyse viser en trafikkøkning på ca. 40 % på eiendommen, men marginal økning i vegnettet. Tiltaket inkluderer også tiltak for universell utforming, overvannshåndtering og geoteknisk vurdering av grunnforhold. Det er søkt dispensasjon fra områdereguleringens plankrav, byggegrenser, utnyttelsesgrad og parkeringsbestemmelser.

Produkter og materialer

Gulv Isolasjon under betonggulv

🧱 50-100 mm isolasjon under betonggulv

Eksisterende gulv med isolasjon og jordvarme, U-verdi ca. 0,50 W/m2K, fravik fra TEK17 krav

Gulvisolasjon med fravik fra energikrav for eksisterende gulv

VVS Fettutskiller

Fettutskiller for spillvann fra matproduksjon, dokumentasjon og plassering skal fremgå

Fettutskiller for avløpshåndtering

Elektro Belysning fasade og skilt

Fasadebelysning og lys i skilt som lyser kun bokstaver, for synlighet på kveldstid

Belysning for fasade og skilt

Grunnarbeid Oppfylling med lette masser

🧱 Glasopor

Kompensert oppfylling med glasopor for drive-thru bane, ca. 1 m høyde

Oppfylling for terrengheving ved drive-thru for å unngå setninger og stabilitetsproblemer

Terrasse Uteservering

🧱 Betongheller eller storgatestein

Areal for mulig uteservering utenfor vestfasade, belegningsstein eller betongheller

Uteareal for servering

Fasade Fasadeskilt

Antall: 4

Virksomhetsskilt per fasade, ikonisk gul M, McCafé skilt, masteskilt for McDonald's og oppdatert masteskilt for Esso

Skilt på fasader og masteskilt for profilering og veiledning

VVS Ventilasjon

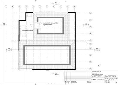
Ventilasjonsanlegg plassert på tak til nytt tilbygg, driftstilgang via loftstige

Ventilasjonsløsning for bygget

Tak Flatt tak og saltak

🧱 Betong tak på sør og øst, saltak med tegl på nord og vest

Flatt tak på sør og østfasade, saltak med tegl på nord og vestfasade

Taktype og materialvalg for bygget

Betong Fundamentering

🧱 Hel stiv bunnplate på avrettet bærelag

Direktefundamentering på hel stiv konstruktiv bunnplate, 15 cm bærelag

Fundamentering for tilbygg og ombygging

Fasade Fasadekledning

🧱 Liggende trepanel, grønn og mørk grå

Ny fasadekledning i McDonald's nordiske designkonsept, med naturlig grånet trepanel og fargeinnslag

Fasadeuttrykk med trepanel og farger som matcher McDonald's profil

Vinduer Fasadevindu

🧱 Glass

Antall: 16

6 vinduer nord, 4 vinduer vest, 5 vinduer øst, 1 vindu sør

Fasadevindu i glass fordelt på alle fasader

Dører Ytterdører

Antall: 4

Dører på nord, vest, øst fasade

Ytterdører til bygget

Parkering Bil- og sykkelparkering

13 ordinære parkeringsplasser, 2 HC-plasser, 7 sykkelparkeringsplasser, oppmerking av plasser

Parkering for biler og sykler tilknyttet restauranten

Annet Drive-thru skilt og elementer

Gateway, pre-sell skilt, bestillingspunkt canopy, menytavle, innkjøring forbudt skilt

Skilt og elementer for drive-thru bane for å sikre god trafikkflyt

Plantegning

Enebolig 378.4 m²

Etasje 1 378.4 m²

Rom Areal Vinduer Dører
Teknisk rom 101 6.4 m² 0 1
Oppvask 102 8.8 m² 0 1
Kjølerom 103 10.8 m² 0 1
Fryserom 104 15.1 m² 0 1
Gang/lager 105 37.8 m² 0 2
HCWC/dusj H 106 6.0 m² 0 1
HCWC/dusj D 107 5.7 m² 0 1
Garderobe H 108 4.8 m² 0 1
Garderobe D 109 4.8 m² 0 1
Avfallsrom 110 10.8 m² 0 1
Pauserom 111 9.8 m² 0 1
WC 112 1.3 m² 0 1
Forrom 113 3.3 m² 0 1
BK 114 1.4 m² 0 1
Kasse 115 9.0 m² 0 1
Drikkecelle 116 11.1 m² 0 1
McCafe 117 7.1 m² 0 1
McDeliver 118 7.1 m² 0 1
Kjøkken 119 73.4 m² 0 1
Lobby 120 113.8 m² 0 1

Etasje 2 0.0 m²

Rom Areal Vinduer Dører
Tak 0 0.0 m² 0 0

Fasader

McDonald's

Sør
Materiale
Betong
Taktype
Flatt tak
Høyde
3.1 m
Mønehøyde
7.4 m
Vinduer
1
Dører
0
Synlige etasjer
1
Øst
Materiale
Betong
Taktype
Flatt tak
Høyde
3.1 m
Mønehøyde
7.4 m
Vinduer
5
Dører
1
Synlige etasjer
1
Nord
Materiale
Glass
Taktype
Saltak
Takmat.
Tegl
Høyde
6.5 m
Mønehøyde
7.4 m
Vinduer
6
Dører
1
Synlige etasjer
1
Vest
Materiale
Glass
Taktype
Saltak
Takmat.
Tegl
Høyde
6.5 m
Mønehøyde
7.4 m
Vinduer
4
Dører
1
Synlige etasjer
1

Tiger Butikk

Nord
Materiale
Glass
Taktype
Flatt tak
Vinduer
6
Dører
1
Synlige etasjer
1

Hendelser

22.04.2026 Angående søknad om bruksendring - gnr./bnr. 53/30 - Bøgata 79
25.02.2026 Orientering om uttale frå Fylkeskommunen om trafikktryggleik
24.02.2026 Fv. 359, Stasjonsvegen - Bøgata 79 - gbnr. 53/30 - Midt-Telemark kommune - Uttale til revidert plan
23.02.2026 Informasjon om administrasjonen sin innstilling til dispensasjonssøknaden
19.02.2026 Uttale til reviderte planar - riksveg 36 - gnr. 53 bnr. 30 - Bøgata 79 i Midt-Telemark kommune
22.01.2026 Supplering av søknad 53/30 Bøgata 79
16.12.2025 Fortsatt mangler ved søknaden - gbnr. 53/30 - Bøgata 79 - Rive deler av bygg, bruksendring fra bensinstasjon til McDonalds restaurant, ombygging og tilbygg
09.12.2025 Uttale - Fv. 359, Stasjonsvegen - Bøgata 79 - gbnr. 53/30 - Midt-Telemark kommune
27.11.2025 Uttale - riksveg 36 - gnr. 53 bnr. 30 - Bøgata 79 i Midt-Telemark kommune
11.11.2025 Oversender søknad til uttalelse - gbnr. 53/30 - Bøgata 79 - Rive deler av bygg, bruksendring fra bensinstasjon til McDonalds restaurant, ombygging og tilbygg
07.11.2025 Supplering av søknad 53/30 Bøgata 79
04.11.2025 Foreløpig svar på søknad - gbnr 53/30 - Bøgata 79