Extension UnderBehandling Naeringsbygg

Utvidelse av næringsbygg med lager og verksted i Brennaveien 4A

📍 Brennaveien 4A , 1481 HAGAN

Nøkkelinfo

Sakstype
Tilbygg
Bygningstype
Naeringsbygg
Bruksareal
2,275 m²
Kommune
Nittedal
Fylke
Akershus
Gnr / Bnr
3 / 701
Saksnummer
24/00391
Fase
Under behandling

Om byggesaken

Prosjektet omfatter oppføring og endring av flere næringsbygg i Brennaveien 4A, inkludert lager, verksted, kontorer og tilhørende personalfasiliteter. Byggene har flate betongfasader med sandwichpaneler i fargene RAL 6013 og RAL 7016, og inneholder funksjoner som lakkeringskabin, blanderom, treningssenter, kontorer, garderober, dusj, kantine og tekniske rom. Totalt areal for byggene er ca. 2275 m² fordelt på flere etasjer, inkludert underetasje med verksted og lager. Bygget er utstyrt med heis, trapper, sjakter og tekniske installasjoner som ventilasjon, vann- og avløpsanlegg, energibrønner og brannalarm. Det er også etablert utomhusplan med forstøtningsmurer og tilrettelegging for avkjørsel. Arbeidstilsynet har gitt samtykke til tiltaket, men har påpekt mangler i dokumentasjon for arbeidsmiljø, som personalrom, ventilasjon og forurensningskontroll, som må utbedres før brukstillatelse kan gis.

Produkter og materialer

Tak Flatt tak

🧱 Betong og takmembran

Flate tak på alle bygg med betongkonstruksjon.

Flate tak med nødvendig membran og isolasjon for industribygg.

Fasade Sandwichpaneler

🧱 RAL 6013 (Reed Green) hovedfarge, RAL 7016 (Antracite Grey) øverste bordlinje

Sandwichpaneler som hovedmateriale på fasader, med kontrastfarge øverst. Vinduer, dører og porter i RAL 7016.

Fasadeelementer i sandwichpanel for moderne industribygg med god holdbarhet og estetikk.

Tømrer Innvendige vegger og dører

Innvendige vegger, dører og sjakter i kontor- og personalområder.

Innvendige konstruksjoner for rominndeling og funksjonalitet.

VVS Sanitærinstallasjoner

Dusj, WC, HC-WC, garderober med tilhørende sanitærutstyr.

Sanitærfasiliteter for personalrom og arbeidsplasser.

Dører Ytterdører og garasjeporter

🧱 RAL 7016 farge, materiale ikke spesifisert

Antall: 14

Ytterdører og garasjeporter i samme farge som øverste sandwichrekke for helhetlig uttrykk.

Dører for adkomst og garasjeporter for kjøretøy i næringsbygg.

Grunnarbeid Fundamenter og grunnmurer

🧱 Plasstøpt betong

Fundamenter og grunnmurer for bygg C-D-E-F, plasstøpt betong forankret til fjell.

Grunnarbeid for stabil og sikker fundamentering av bygg.

Ventilasjon Mekanisk ventilasjon og prosesstilpasset avsug

Ventilasjonssystem for å sikre tilfredsstillende inneklima og fjerne forurensning fra arbeidsatmosfære.

Ventilasjon og avsug tilpasset verksted og lakkeringsprosess.

Trapper Innvendige trapper

Antall: 2

To trapper i byggene for etasjeadkomst.

Innvendige trapper for vertikal kommunikasjon.

Heis Personheis

Antall: 1

Heis med areal ca. 4.9 m² i flere bygg for tilgjengelighet.

Heis for persontransport mellom etasjer.

Annet Utomhusplan og avkjørsel

Utomhusplan med forstøtningsmurer, anleggsvei og avkjørsel.

Terrengtilpasning og adkomst til byggene.

Betong Støttemurer

🧱 Plasstøpt betong

Støttemurer for terrengtilpasning og avkjørsel.

Betongmurer for terrengstøtte og uteareal.

Vinduer Fasadevindu

🧱 Aluminiumsramme i RAL 7016

Antall: 56

Vinduer i fasader, hovedsakelig med aluminiumsramme i farge RAL 7016.

Fasadevinduer for naturlig lys og ventilasjon i lager og kontorbygg.

Solceller Energibrønner

Boring av energibrønner for varme- og kjøleløsninger.

Energibrønner for bærekraftig energiforsyning.

Elektro Brannalarmanlegg og ledelys

Brannalarmanlegg og ledelys installert i byggene.

Sikkerhetsinstallasjoner for brannvarsling og evakuering.

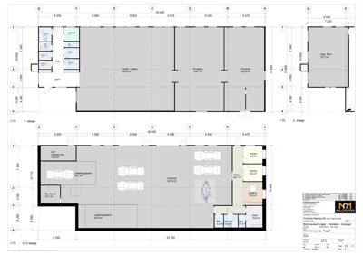
Plantegning

Lager - Verksted - Garasjer 2,274.9 m²

Etasje 4 363.0 m²

Rom Areal Vinduer Dører
Møterom 401 36.3 m² 0 1
Kontor 402 11.8 m² 0 1
WC 403 3.0 m² 0 1
BK 404 3.0 m² 0 1
Sjakt 405 7.4 m² 0 0
Heis 406 4.9 m² 0 0
Trapp 407 16.6 m² 0 0
Gang 408 26.3 m² 0 2
Spise / Pause / Møte 409 46.4 m² 1 1
HC-WC 410 6.1 m² 0 1
Terrasse 411 191.7 m² 0 1

Etasje 3 684.8 m²

Rom Areal Vinduer Dører
Kontorer 301 189.7 m² 1 1
Kontorer 302 208.4 m² 1 1
Kontorer 303 250.5 m² 1 1
Gang 304 18.9 m² 0 3
Trapp 305 15.5 m² 0 0
Heis 306 4.9 m² 0 0
Sjakt 307 7.2 m² 0 0
Gard. / Dusj 308 10.5 m² 1 1
WC 309 2.9 m² 0 1
BK 310 3.3 m² 0 0
HC-WC 311 5.6 m² 0 1

Etasje 1 630.0 m²

Rom Areal Vinduer Dører
P-P 1 P-P 1 0.0 m² 0 0
P-P 2 P-P 2 0.0 m² 0 0
P-P 3 P-P 3 0.0 m² 0 0
P-P 4 P-P 4 0.0 m² 0 0
P-P 5 P-P 5 0.0 m² 0 0
P-P 6 P-P 6 0.0 m² 0 0
P-P 7 P-P 7 0.0 m² 0 0
P-P 8 P-P 8 0.0 m² 0 0
Garasje Garasje 283.8 m² 0 0
Gang Gang 15.5 m² 0 1
Renhold / BK Renhold / BK 24.1 m² 0 1
Trapp Trapp 17.5 m² 0 0
Gang Gang 19.3 m² 0 1
Pauserom Pauserom 23.4 m² 0 1
WC WC 2.2 m² 0 1
Dusj Dusj 4.3 m² 0 1
HC-WC HC-WC 5.9 m² 0 1
Gang Gang 9.1 m² 0 1
Gard. H Gard. H 9.5 m² 0 1
Gard. D Gard. D 8.2 m² 0 1
Teknisk rom Teknisk rom 28.2 m² 0 1
P-P 9 P-P 9 0.0 m² 0 0
P-P 10 P-P 10 0.0 m² 0 0
Sjakt Sjakt 1.1 m² 0 0
Heis Heis 4.9 m² 0 0
Disponibelt areal Disponibelt areal 210.2 m² 0 0
Inngang 101 21.8 m² 0 1
Omkld. 1 102 3.5 m² 0 1
Omkld. 2 103 3.3 m² 0 1
WC 104 3.0 m² 0 1
WC 105 3.5 m² 0 1
Dusj 1 106 4.7 m² 0 1
Dusj 2 107 4.7 m² 0 1
Fellesareal 108 6.2 m² 0 1
Cardio / Vekter 109 243.6 m² 0 1
Frivekter 110 124.7 m² 0 1
Frivekter 111 102.9 m² 0 1
Disponible areal Disponible areal 210.2 m² 0 0
Frivekter 112 124.7 m² 0 1
Frivekter 113 102.9 m² 0 1
Inngang Inngang 21.8 m² 0 1
Omkld. 1 Omkld. 1 3.5 m² 0 1
Omkld. 2 Omkld. 2 3.3 m² 0 1
HC WC HC WC 5.5 m² 0 1
Dusj 1 Dusj 1 4.7 m² 0 1
Dusj 2 Dusj 2 4.7 m² 0 1
Fellesareal Fellesareal 6.2 m² 0 1
BK BK 2.6 m² 0 1
Cardio / Vekter Cardio / Vekter 243.6 m² 0 0
Frivekter Frivekter 124.7 m² 0 0
Disp. Rom Disp. Rom 72.7 m² 0 0

Etasje 0 524.4 m²

Rom Areal Vinduer Dører
Teknisk rom U01 19.0 m² 0 1
Lager U02 133.9 m² 0 1
Lager U03 92.8 m² 0 1
Lager U04 92.5 m² 0 1
Lager U05 92.8 m² 0 1
Lager U06 91.4 m² 0 1
Blanderom Blanderom 10.7 m² 0 1
Lakkeringskabin Lakkeringskabin 39.7 m² 0 1
Verksted Verksted 327.8 m² 0 0
Gang Gang 26.7 m² 0 2
Kontor Kontor 9.9 m² 0 1
Kantine Kantine 13.8 m² 0 1
Gard. Gard. 10.9 m² 0 1
BK BK 3.4 m² 0 1
HC WC HC WC 5.8 m² 0 1
Dusj Dusj 2.7 m² 0 1
Lager U07 91.8 m² 0 1
Lager U08 45.5 m² 0 1
Teknisk rom 18.5 m² 0 1
Teknisk rom 18.5 m² 0 1
Verksted 001 327.8 m² 0 0

Etasje 2 72.7 m²

Rom Areal Vinduer Dører
Disp. Rom 201 72.7 m² 0 1
Boder 202 277.6 m² 0 0
Trapp 203 17.5 m² 0 1
Trapp 204 15.5 m² 0 1
Heis 205 4.9 m² 0 0
Sjakt 206 7.2 m² 0 0
Loft Plat 207 2.2 m² 0 0

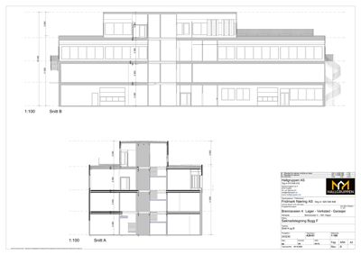
Fasader

Lager - Verksted - Garasjer

Sør
Materiale
Betong
Taktype
Flatt tak
Høyde
12.0 m
Vinduer
28
Dører
7
Synlige etasjer
1
Nord
Materiale
Betong
Taktype
Flatt tak
Høyde
12.0 m
Vinduer
28
Dører
7
Synlige etasjer
1
Øst
Materiale
Betong
Taktype
Flatt tak
Høyde
12.0 m
Vinduer
0
Dører
0
Synlige etasjer
1
Vest
Materiale
Betong
Taktype
Flatt tak
Høyde
12.0 m
Vinduer
0
Dører
0
Synlige etasjer
1

Hendelser

10.04.2026 24/00391-61 Kopi - Etterkontroll - vi har ikke mottatt svar - 3/701 - Brennaveien 4 - Bygg E
09.03.2026 24/00391-59 Endringstillatelse - 3/701 - Brennaveien 4A - Bygg E
02.03.2026 24/00391-58 Arbeidstilsynet - Foretatt etterkontroll av planene for tiltaket
03.02.2026 24/00391-57 Supplerende dokumentasjon til søknad om endring i bygg E - Brennaveien 4 - Plan- og fasadetegninger
23.01.2026 24/00391-56 3/701 - Adressetildeling og omadressering av 3/391 - Brennaveien 2-4
19.01.2026 24/00391-54 Kopi - Arbeidstilsynet innvilger søknaden om samtykke etter automatisk saksbehandling - 3/701 - Brennaveien
19.01.2026 24/00391-55 Søknad om endring av gitt tillatelse for bygg E - 3/701 - Brennaveien
03.12.2025 24/00391-49 Endrings- og igangsettingstillatelse del nr. 5 - 3/701 - Brennaveien
01.12.2025 24/00391-52 Vi innvilger søknaden om samtykke etter automatisk saksbehandling - Kopi av brev
26.11.2025 24/00391-51 Supplering av dokumentasjon til igangsettingstillatlse 5 - 3/701 - Brennaveien