Extension Igangsettingstillatelse Naeringsbygg

Rivning, ombygging og tilbygg av dagligvarebutikk på Brokelandsheia 6

📍 Brokelandsheia 6 , 4993 SUNDEBRU

Nøkkelinfo

Sakstype
Tilbygg
Bygningstype
Naeringsbygg
Bruksareal
1,638 m²
Kommune
Gjerstad
Fylke
Agder
Gnr / Bnr
3 / 318
Saksnummer
2025/338
Fase
Igangsettingstillatelse

Om byggesaken

Prosjektet omfatter rivning av deler av eksisterende bygg, ombygging og tilbygg til en ny dagligvarebutikk på Brokelandsheia 6 i Gjerstad kommune. Nybygget får et samlet bruksareal på ca. 1638 m² fordelt på to plan, med et tilbygg på ca. 942 m². Bygget inkluderer salgsareal, tekniske rom, kontorer, lager, og tilhørende fasiliteter som ventilasjonsrom og møterom. Fasaden består av glass og tre med saltak på deler av bygget. Det er planlagt omfattende grunnarbeid, fundamentering, vann- og avløpsarbeider, samt tilpasning til eksisterende infrastruktur og parkeringsløsninger. Bygget skal tilpasses universell utforming og har fokus på estetikk og funksjonalitet i tråd med reguleringsplan og tekniske krav.

Produkter og materialer

VVS Rør- og sanitærinstallasjoner

Rørleggerarbeid, omlegging av vann- og avløpsledninger

VVS-installasjoner for bygg og uteområder

Vinduer Fasadevindu i glass

🧱 Glass

Antall: 30

Glassvinduer i fasade, fordelt på øst, vest og sør fasade

Vinduer for dagslys og utsyn i butikk og kontorområder

Maling Innvendig og utvendig maling

Overflatebehandling av fasade og innvendige flater

Maling og overflatebehandling

Betong Fundamenter og bunnledninger

🧱 Plasstøpt betong

Fundamentering og bunnledninger i henhold til konstruksjonssikkerhet

Betongfundamenter for nybygg og tilbygg

Ventilasjon Ventilasjonsanlegg

Ventilasjonsrom og tekniske løsninger for inneklima

Ventilasjons- og kjøleanlegg for dagligvarebutikk

Dører Ytterdører og dører til tekniske rom

Antall: 30

Dører i fasade og til tekniske rom, inkludert hovedinngang og varelevering

Dører for adkomst og funksjonelle rom

Utendørs Parkeringsplass og utomhusarbeid

Parkeringsplass for biler og elbil-ladestasjoner, utomhusarbeid

Opparbeidelse av parkeringsareal og adkomstveier

Grunnarbeid Fylling og terrengarbeid

Fylling i skråning mot sør, terrengjustering for parkering og adkomst

Grunnarbeid inkludert fylling, terrengjustering og fundamentering

Stål Stålkonstruksjoner

🧱 Stål søyler, fagverk og bjelker

Stålkonstruksjoner for bærekonstruksjon og overordnet statikk

Stålkonstruksjoner for nybygg og tilbygg

Tak Saltak og flatt tak

Saltak på deler av bygget, flatt tak på andre deler

Taktekking for nybygg og tilbygg

Fasade Glassfasade og trepanel

🧱 Glass og stående spilekledning i tre

Glassfasade med saltak, trepanel som utenpåliggende kledning

Fasadeelementer for nybygg og tilbygg

Isolasjon Varmeisolasjon og lufttetthet

Isolasjon i henhold til TEK17 for energiytelse og fuktsikring

Isolasjon for vegger, tak og gulv

Riving Riving av eksisterende bygg

Riving av nordfløy og deler av eksisterende Heimat-bygg

Riving av eksisterende bygningsmasse som del av ombygging

Elektro El-installasjoner og brannalarmanlegg

Installasjon av elektriske anlegg og brannalarmanlegg

Elektroarbeid for butikk og tekniske rom

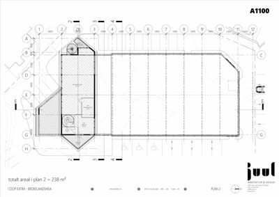
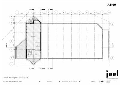
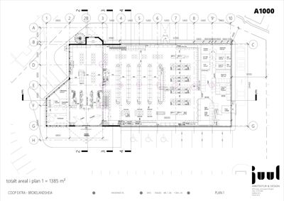
Plantegning

Salgsareal 1,385.0 m²

Etasje 1 1,385.0 m²

Rom Areal Vinduer Dører
Salgsareal salgsareal 1,252.0 m² 0 0
Disponible disponibelt 71.0 m² 0 0
Disp. disp 8.0 m² 0 0

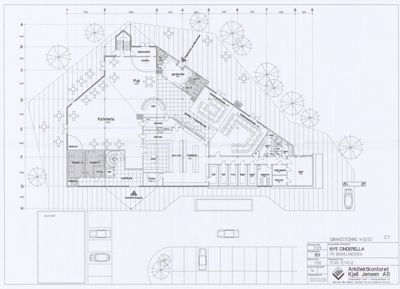
Nye Cinderella 1,000.0 m²

Etasje 1 1,000.0 m²

Rom Areal Vinduer Dører
Kafeteria 101 200.0 m² 0 1
Pub 102 100.0 m² 0 1
Selskapslokale 103 400.0 m² 0 1
Kjøkken 104 65.0 m² 0 1
Teknisk rom 105 0.0 m² 0 1
Lager 106 30.0 m² 0 1
Spiserom 107 0.0 m² 0 1
Garderobe 108 22.0 m² 0 1
WC 109 0.0 m² 0 1
Toalett 110 0.0 m² 0 1
Kontor 111 10.0 m² 0 1
Vestibyle 112 0.0 m² 0 1
Bakscene 113 0.0 m² 0 1
Scene 114 0.0 m² 0 1
Pause / Vandreareal 115 0.0 m² 0 1
Lager 116 0.0 m² 0 1
Lager 117 0.0 m² 0 1
Frys 118 0.0 m² 0 1
Kjøl 119 0.0 m² 0 1
Kjøl 120 0.0 m² 0 1
Kjølt søppel 121 0.0 m² 0 1
Gard.d 122 0.0 m² 0 1
Gard.h 123 0.0 m² 0 1
WC.h 124 0.0 m² 0 1
WC.d 125 0.0 m² 0 1
hc-wc 126 0.0 m² 0 1
hc 127 0.0 m² 0 1
b.k. 128 0.0 m² 0 1
b.k. 129 0.0 m² 0 1
hels 130 0.0 m² 0 1
ellerom 131 0.0 m² 0 1
lekekrok 132 0.0 m² 0 1
stillerom 133 0.0 m² 0 1
toalett d 134 0.0 m² 0 1
toalett h 135 0.0 m² 0 1
oppvask 136 0.0 m² 0 1
kald mat 137 0.0 m² 0 1
varm mat 138 0.0 m² 0 1
salat 139 0.0 m² 0 1
bar 140 0.0 m² 0 1
duj 141 0.0 m² 0 1
duj 142 0.0 m² 0 1
wc 143 0.0 m² 0 1
el 144 0.0 m² 0 1
disponibelt 145 0.0 m² 0 1
Hovedsal 1 1,227.0 m² 0 0
Kontor 2 9.3 m² 0 0
Spiserom 3 14.6 m² 0 0
HC WC 4 5.5 m² 0 0
B.K 5 5.0 m² 0 0
WC 6 3.1 m² 0 0
Gard.1 7 5.6 m² 0 0
WC 8 3.1 m² 0 0
Gard.2 9 5.6 m² 0 0
WC 10 3.1 m² 0 0
Kjøllager 11 16.1 m² 0 0
Frys 12 13.8 m² 0 0
Kjøllager 13 34.4 m² 0 0
Vare-mottak 14 0.0 m² 0 0
Pant 15 11.9 m² 0 0
KundeWC 16 5.5 m² 0 0
Kaffekrok 17 0.0 m² 0 0
Telle/skrive 18 13.3 m² 0 0
disp 19 8.0 m² 0 0

Etasje 2 0.0 m²

Rom Areal Vinduer Dører
Plenumsal 201 115.0 m² 0 0
Lager 202 12.0 m² 0 0
Anretning 203 8.0 m² 0 0
Ventilasjonsrom 204 2.0 m² 0 0
Metrom 205 16.0 m² 0 0
Metrom 206 16.0 m² 0 0
Metrom 207 20.0 m² 0 0
Pauseareal 208 0.0 m² 0 0
Balkong 209 0.0 m² 0 0
Ventilasjonsrom 205A 21.0 m² 0 1
Ventilasjonsrom 205B 25.0 m² 0 1

Fasader

COOP EXTRA

Nord
Materiale
Glass
Taktype
Flatt tak
Høyde
2.7 m
Mønehøyde
10.4 m
Vinduer
0
Dører
0
Synlige etasjer
2
Sør
Materiale
Tre
Taktype
Flatt tak
Høyde
2.7 m
Mønehøyde
10.4 m
Vinduer
0
Dører
0
Synlige etasjer
2
Øst
Materiale
Glass
Taktype
Saltak
Høyde
10.2 m
Mønehøyde
12.9 m
Vinduer
10
Dører
1
Synlige etasjer
2
Vest
Materiale
Glass
Taktype
Saltak
Høyde
10.2 m
Mønehøyde
12.9 m
Vinduer
10
Dører
1
Synlige etasjer
2
Syd
Materiale
Glass
Taktype
Saltak
Høyde
10.2 m
Mønehøyde
12.9 m
Vinduer
10
Dører
1
Synlige etasjer
2

Hendelser

20.01.2026 Brokelandsheia 6, Vedtak igangsettelsestillatelse på deler av tiltaket
18.12.2025 Brokelandsheia 6, 8 Søknad om igangsettingstillatelse 3/318
07.08.2025 Faktura grunnlag - riving, ombygging og tilbygg ny butikk - Brokelandsheia 6
07.08.2025 Brokelandsheia 6, 8, rammetillatelse for endring av bygg - rivning og tilbygg
19.06.2025 Brokelandsheia 6, 8 Supplering av søknad 3/318
22.04.2025 Brokelandsheia 6, 8 Søknad om rammetillatelse 3/318