Extension Soeknad Naeringsbygg

Ballastert solcelleanlegg på tak, Gamle Kirkeplass 7, Drammen

📍 Gamle Kirkeplass 7 , 3019 DRAMMEN

Nøkkelinfo

Sakstype
Tilbygg
Bygningstype
Naeringsbygg
Kommune
Drammen
Fylke
Buskerud
Gnr / Bnr
114 / 389
Saksnummer
26/10626
Fase
Søknad

Om byggesaken

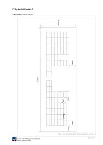
Ballastert solcelleanlegg med en installert effekt på ca. 151,6 kWp monteres på det flate taket av et næringsbygg i Gamle Kirkeplass 7, Drammen. Anlegget benytter et prefabrikert ballastsystem som ikke krever gjennomføringer i takkonstruksjonen, noe som ivaretar fuktsikkerheten og takets integritet. Systemet er dimensjonert for å tåle lokale vind- og snølaster i henhold til norske standarder. Solcellepanelene plasseres i stativsystemer på takflatene, og anlegget skal produsere fornybar energi til eget forbruk i bygget, med mål om å redusere energikostnader og klimaavtrykk.

Produkter og materialer

Solceller Solcellepaneler

Installert effekt ca. 151,6 kWp, paneler montert i ballastert stativsystem uten gjennomføringer i taket

Solcellepaneler for montering på flatt tak i ballastert stativsystem for produksjon av fornybar energi

Grunnarbeid Takforberedelse

Forberedelse av takflate for montering av ballastert solcelleanlegg

Arbeid på takflate for å sikre korrekt plassering og forankring av ballastsystemet

Elektro Installasjon solcelleanlegg

Installasjon av solcelleanlegg med kabling og tilkobling til byggets energisystem

Elektroinstallasjon for solcelleanlegget inkludert kabling og tilkobling

Tak Ballastert stativsystem

🧱 Prefabrikert ballastsystem

System dimensjonert for vind- og snølaster, uten gjennomføringer i takkonstruksjonen

Prefabrikert ballastsystem for montering av solcellepaneler på flatt tak uten takgjennomføringer

Tømrer Montering av solcelleanlegg

Montering av ballastert solcelleanlegg på taket

Fagmessig montering av solcellepaneler og stativsystem på taket

Plantegning

Hovedbygg 0.0 m²

Etasje 1 0.0 m²

Rom Areal Vinduer Dører

Hendelser

15.04.2026 Gamle Kirkeplass 7 Søknad om tillatelse i ett trinn 114/389