Extension Ferdigattest Naeringsbygg

Tilbygg til verkstedbygning på Hadelandsveien 654, Nittedal

📍 Hadelandsveien 654 , 1482 NITTEDAL

Nøkkelinfo

Sakstype
Tilbygg
Bygningstype
Naeringsbygg
Bruksareal
36 m²
Kommune
Nittedal
Fylke
Akershus
Gnr / Bnr
13 / 182
Saksnummer
25/01564
Fase
Ferdigattest

Om byggesaken

Ny tilbygg på 36 m² til eksisterende verkstedbygning (Mekonomen) på Hadelandsveien 654 i Nittedal. Tilbygget er plassert på østsiden av hovedbygget og skal inneholde kundemottak, toalett, spiserom, garderobe, bad og kjøkken. Bygget er oppført i bindingsverk med fasadepanel tilpasset eksisterende betongelementer og teglfasade. Tilbyggets gesimshøyde er 2,5 m og mønehøyde 3,8 m. Det er én trapp i tilbygget. Tiltaket har dispensasjon fra plankrav og byggegrense mot riksvei 4, og er vurdert til sikkerhetsklasse F1 i forhold til flomfare. Arbeidstilsynet har gitt samtykke til tiltaket. Bygget har 3 vinduer og flere dører i kundemottak og tilhørende rom.

Produkter og materialer

Fasade Fasadepanel i bindingsverk

🧱 Trepanel med horisontal struktur under vinduer

Panel tilpasses farger på eksisterende betongelementer og teglfasade

Fasadepanel for tilbyggets yttervegger i bindingsverk

Tømrer Bindingsverk og innvendige konstruksjoner

Oppføring av tilbyggets konstruksjon i bindingsverk

Tømrerarbeid for tilbygget

VVS Sanitærinstallasjoner

Toalett, bad og kjøkken med nødvendige VVS-installasjoner

Sanitærinstallasjoner i tilbygget

Trapper Innvendig trapp

Antall: 1

Trapp i tilbygget

Vinduer Fasadevindu

Antall: 3

Vinduer i kundemottak og spiserom

Grunnarbeid Fundamentering og drenering

Takvann og dreneringsvann skal infiltreres på egen eiendom

Grunnarbeid for tilbygget inkl. drenering

Tak Saltak

Saltak med tilpasset høyde (gesims 2,5 m, møne 3,8 m)

Tak for tilbygget

Dører Ytterdør med sidefelt

Antall: 1

Inngangsdør med sidefelt mot øst

Hovedinngang til tilbygget

Dører Innvendige dører

Antall: 5

Dører til toalett, bad, garderobe, kjøkken og spiserom

Elektro Belysning og strøm

Belysning og strømforsyning til alle rom

Elektroinstallasjoner i tilbygget

Maling Utvendig og innvendig maling

Maling av fasadepanel og innvendige overflater

Overflatebehandling av tilbygget

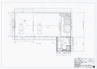
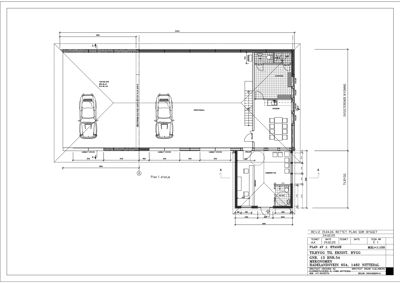
Plantegning

Tilbygg 105.0 m²

Etasje 1 105.0 m²

Rom Areal Vinduer Dører
Verkstedhall 101 65.1 m² 0 0
Kundehottak 102 24.0 m² 1 1
Spiserom 103 15.9 m² 1 1
Garderobe 104 4.0 m² 0 1
Toalett 105 3.0 m² 0 1
Bad 106 4.0 m² 0 1
Kjøkken 107 3.0 m² 0 1

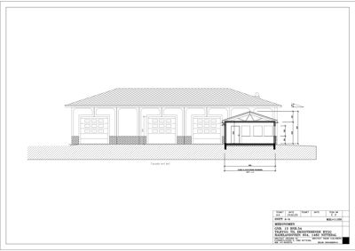
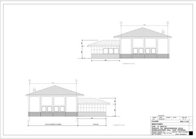
Fasader

Eksisterende Bygg

Nord
Materiale
Mur
Taktype
Saltak
Høyde
3.6 m
Mønehøyde
6.0 m
Vinduer
4
Dører
0
Synlige etasjer
1
Sør
Materiale
Tre
Taktype
Saltak
Høyde
2.5 m
Mønehøyde
4.2 m
Vinduer
4
Dører
1
Synlige etasjer
1

Garasje

Øst
Materiale
Tre
Taktype
Saltak
Høyde
3.6 m
Mønehøyde
4.7 m
Vinduer
0
Dører
1
Synlige etasjer
1

Mekonomen

Øst
Materiale
Mur
Taktype
Saltak
Høyde
3.2 m
Mønehøyde
4.8 m
Vinduer
3
Dører
1
Synlige etasjer
1

Hendelser

17.04.2026 25/01564-7 Søknad om ferdigattest - 13/182 - Hadelandsveien 654
22.08.2025 25/01564-3 Tillatelse - 13/182 - Hadelandsveien 654 - Tilbygg til verkstedbygning med dispensasjon fra kommuneplanen
28.07.2025 25/01564-5 Supplerende dokumentasjon - 13/182 - Hadelandsveien 654
21.04.2025 25/01564-2 Innvilger søknaden om samtykke etter automatisk saksbehandling - 13/182 - Hadelandsveien 654
21.04.2025 25/01564-1 Søknad om tillatelse i ett trinn - 13/182 - Hadelandsveien 654 - Oppføring av tilbygg til eksisterende verkstedbygning - Mekonomen