Extension UnderBehandling Naeringsbygg

Tilbygg og gjenoppbygging av industribygg i Hestehagen 1, Drøbak

📍 Hestehagen 1 , 1448 DRØBAK

Nøkkelinfo

Sakstype
Tilbygg
Bygningstype
Naeringsbygg
Bruksareal
1,246 m²
Kommune
Frogn
Fylke
Akershus
Gnr / Bnr
16 / 131
Saksnummer
26/10507
Fase
Under behandling

Om byggesaken

Ny gjenoppbygging av hoveddelen av et tidligere brannskadet industribygg på Hestehagen 1, Drøbak, med et tilbygg på 92 m² og en ny rømningstrapp på 7 m². Bygget er et to-etasjes næringsbygg med flatt tak, bærekonstruksjoner i stål og betong, og fasader i sandwichelementer med mørk grå vinduer og porter. Planløsningen inkluderer produksjonslokaler, kontorer, garderober, lager, teknisk rom, spiserom og universell tilgjengelig heis/løfteplattform. Bygget har god tilgang på dagslys med mange vinduer og er tilpasset universell utforming og moderne ventilasjons- og sanitæranlegg. Totalt bruksareal blir ca. 1246 m², med et samlet fotavtrykk (BYA) på ca. 957 m². Tiltaket inkluderer også omlegging av VA-ledninger og tilpasning til grunnforhold med ras- og skredfare.

Produkter og materialer

Rekkverk Rømningstrapp rekkverk

Rekkverk på ny rømningstrapp i henhold til brann- og sikkerhetskrav

Sikkerhetsrekkverk for rømningstrapp

Trapper Innvendig trapp og heis/løfteplattform

Antall: 1

Heis/løfteplattform for universell tilgjengelighet til 2. etasje

Innvendig trapp og heis for tilgjengelighet

VVS Sanitæranlegg og ventilasjon

Nye sanitæranlegg med garderober, dusjer, HC-toalett, ventilasjonsanlegg dimensjonert etter forskrift

VVS-installasjoner for nytt bygg og tilbygg

Fasade Sandwichelementer fasade

🧱 Sandwichelementer med overflate i sølvgrå og mørk grå paneler

Fasader med sandwichelementer, mørk grå vinduer og porter, murbrystning i mørk grå

Fasadeelementer for nytt bygg og tilbygg

Betong Fundamenter og bærekonstruksjoner

🧱 Betong og stål

Bærekonstruksjoner i stål med gitterdragere og søyler, betongfundamenter

Bærekonstruksjoner for nytt bygg og tilbygg

Elektro Belysning og elektriske installasjoner

Belysning og elektriske anlegg tilpasset næringsbygg og arbeidsplasser

Elektroinstallasjoner for nytt bygg og tilbygg

Maling Innvendig maling

Innvendige overflater males for å oppnå god arbeidsmiljøstandard

Innvendig maling og overflatebehandling

Grunnarbeid VA-ledninger og grunnarbeid

Omlegging av kommunale VA-ledninger, grunnarbeid tilpasset ras- og skredfare, geoteknisk rapportering

Grunnarbeid og VA-installasjoner for nytt bygg og tilbygg

Tømrer Innvendige vegger og himlinger

Innvendige vegger og himlinger tilpasset vaskeri og kontorfunksjoner

Tømrerarbeid i nytt bygg og tilbygg

Dører Ytterdører og leddporter

🧱 Mørk grå

Antall: 18

Ytterdører og leddporter i fasader, inkludert nødutganger og rømningstrappdører

Dører for adkomst, nødutganger og varelevering

Vinduer Fasadevindu

🧱 Mørk grå rammer

Antall: 58

Mange vinduer i fasader, totalt ca. 58 vinduer fordelt på øst, vest, nord og sør fasader

Vinduer for dagslys og ventilasjon i nytt bygg og tilbygg

Tak Flatt tak

Delvis flatt tak på nybygg og tilbygg

Taktekking for nytt og tilbygg

Ventilasjon Ventilasjonsanlegg

Ventilasjonsanlegg dimensjonert for arbeidsmiljø og forskriftskrav

Ventilasjon for nytt bygg og tilbygg

Annet Heis/løfteplattform

Antall: 1

Heis/løfteplattform for universell tilgjengelighet til 2. etasje

Teknisk installasjon for tilgjengelighet

Gulv Industrielt gulv og fliser

Gulv i produksjonslokaler, kontorer og garderober tilpasset vaskeri og næringsformål

Gulvbelegg og overflater i nytt bygg

Trapper Rømningstrapp

Antall: 1

Ny rømningstrapp på 7 m² mot sydvest

Rømningstrapp for sikker evakuering

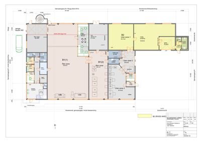
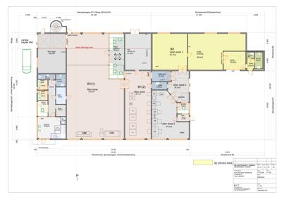
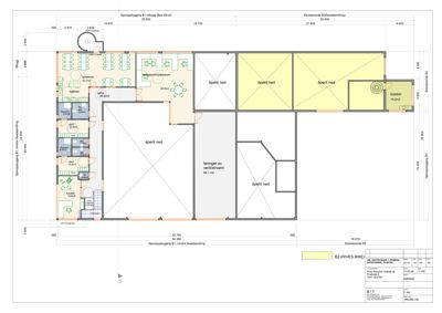
Plantegning

Enebolig 1,023.2 m²

Etasje 1 666.6 m²

Rom Areal Vinduer Dører
Inngang 101 19.8 m² 0 1
Lager 102 5.7 m² 0 1
Kontor 103 7.6 m² 0 1
Damegard 104 4.8 m² 0 1
Herregard 105 4.8 m² 0 1
WC 106 4.7 m² 0 1
Hc/dusj 107 6.1 m² 0 1
Sluse 108 8.3 m² 0 1
Bk 109 1.7 m² 0 1
Ren sone 110 265.8 m² 0 0
Kontor 111 32.4 m² 0 1
Nytt teknisk rom 112 47.3 m² 0 1
Tavlerom 113 0.0 m² 0 1
B1(2) Ren sone 114 88.1 m² 0 0
Trallevask 115 9.7 m² 0 1
Sluse 116 5.6 m² 0 1
Uren sone 2 117 28.2 m² 0 1
Kontor 118 6.2 m² 0 1
Luk 119 4.1 m² 0 1
Uren sone 3 120 67.0 m² 0 0
B2 Uren sone 1 121 62.7 m² 0 1
Matte-avdeling 122 82.6 m² 0 1
Gang 123 20.9 m² 0 1
Gang 124 3.6 m² 0 1
Hc wc 125 6.6 m² 0 1
Bk 126 2.1 m² 0 1
Ren lager 127 55.3 m² 0 1
Gang 100 10.0 m² 0 2
Gang 153 20.8 m² 0 1
Matteavdeling 154 84.2 m² 0 0
Uren Sone 155 63.3 m² 0 0
Kjølerom 156 1.0 m² 0 1
Uren Sone 157 1.0 m² 0 0
Gang 158 2.2 m² 0 1
WC 159 6.6 m² 0 1

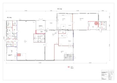
Etasje 2 356.6 m²

Rom Areal Vinduer Dører
Spiserom 201 62.1 m² 0 1
Kjøkken 202 0.0 m² 0 1
Gang 203 39.4 m² 0 2
Arbeidsrom/pakkerom 204 65.5 m² 0 1
Dusjrom 205 4.2 m² 0 1
Dusjrom 206 4.6 m² 0 1
Gard 207 10.8 m² 0 1
Gard 208 10.4 m² 0 1
Kontor 209 19.6 m² 0 1
Kontor 210 15.2 m² 0 1
Åpent ned 211 0.0 m² 0 0
Åpent ned 212 0.0 m² 0 0
Åpent ned 213 0.0 m² 0 0
Åpent ned 214 0.0 m² 0 0
Føringer av vent/el/vann 215 88.1 m² 0 0

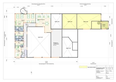
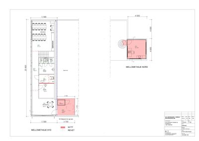
Mellometasje 120.5 m²

Etasje 0 120.5 m²

Rom Areal Vinduer Dører
Kjøkken/Salerom 200 31.1 m² 0 1
Gang 201 14.8 m² 0 1
WC 202 1.0 m² 0 1
Dusj 203 1.0 m² 0 1
WC 204 1.4 m² 0 1
Garderobe 205 7.1 m² 0 1
Vaskerom 206 5.8 m² 0 1
Garderobe 207 9.9 m² 0 1
Spise-/grupperom 208 18.8 m² 0 1
Mesanin 209 12.8 m² 0 1
Teknisk rom 251 15.2 m² 0 1

Fasader

Enebolig

Øst
Materiale
Platemontasje
Taktype
Flatt tak
Vinduer
12
Dører
2
Synlige etasjer
2
Nord
Materiale
Platemontasje
Taktype
Flatt tak
Vinduer
3
Dører
2
Synlige etasjer
2
Vest
Materiale
Tre
Taktype
Flatt tak
Vinduer
11
Dører
2
Synlige etasjer
2
Sør
Materiale
Tre
Taktype
Saltak
Vinduer
10
Dører
1
Synlige etasjer
2

Hendelser

20.04.2026 26/10507-7 Mangelbrev - 16/131/0/0 - Hestehagen 1 - Dispensasjon - Nytt bygg - Næringsformål
10.04.2026 26/10507-3 Ber om uttalelse - 16/131/0/0 - Hestehagen 1 - Dispensasjon - Nytt bygg - Næringsformål
09.04.2026 26/10507-2 Samtykke fra Arbeidstilsynet
08.04.2026 26/10507-1 Søknad om rammetillatelse - 16/131/0/0 - Hestehagen 1 - Riving av deler av bygg - Industribygning