Extension Rammetillatelse Naeringsbygg

Tilbygg og reparasjon av driftsbygning på Kjølbo, Lammenes 4

📍 Kjølbo, Lammenes 4 , 1680 SKJÆRHALDEN

Nøkkelinfo

Sakstype
Tilbygg
Bygningstype
Naeringsbygg
Bruksareal
120 m²
Boenheter
1
Kommune
Hvaler
Fylke
Østfold
Gnr / Bnr
3 / 6
Saksnummer
2023/1838
Fase
Rammetillatelse

Om byggesaken

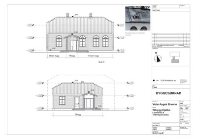
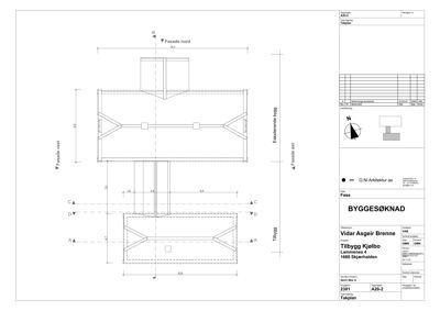
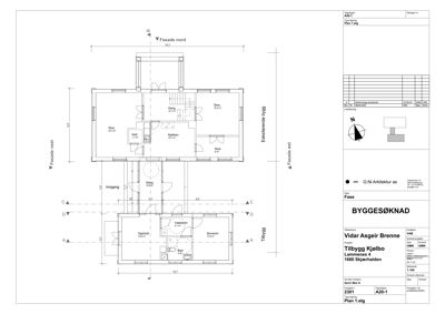
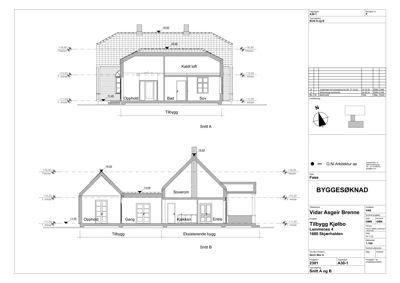
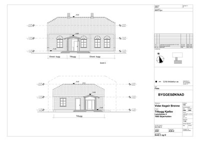
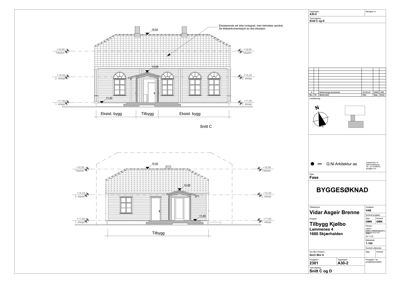
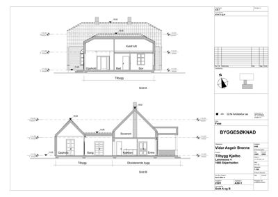
Nytt tilbygg på ca. 50 m² til det verneverdige våningshuset fra 1814 på Kjølbo, Lammenes 4, med funksjoner som bad, vaskerom, soverom og oppholdsrom på ett plan. Tilbygget er plassert på sørsiden bak hovedhuset, underordnet hovedvolumet, og koblet til eksisterende bygg via en smal gang for å minimere inngrep i den opprinnelige tømmerkassen. Eksisterende bygningskropp og interiør med høy kulturhistorisk verdi bevares i stor grad. I tillegg omfattes reparasjon og forlengelse av et letak på driftsbygning fra 1923, som skal gi overdekket plass til 6 hestebokser. Tiltaket inkluderer restaurering av tak, vinduer og grunnmur på våningshuset, samt oppgradering av isolasjon med naturmaterialer. Eiendommen ligger i et område med stor kulturminneverdi og er underlagt midlertidig fredning, med pågående fredningssak for kulturmiljøet.

Produkter og materialer

Vinduer 4-luftsvinduer med blindlunetter

🧱 Tre, med munnblåste glass og håndsmidde beslag på originale vinduer

Vinduer i eksisterende bygg bevares, tilbygg med vinduer i tilsvarende format og utforming

Vedlikehold og restaurering av eksisterende vinduer, nye vinduer tilpasset eksisterende stil på tilbygget

VVS Bad og vaskerom installasjon

Nytt bad og vaskerom i tilbygget med nødvendig sanitærutstyr og rørføringer

Sanitærinstallasjoner for bad og vaskerom i tilbygget

Grunnarbeid Fundamentering for tilbygg

Fundamentering og grunnarbeid for nytt tilbygg og forlengelse av letak på driftsbygning

Grunnarbeid for nye konstruksjoner

Isolasjon Naturmaterialer, trefiber

🧱 Trefiberisolasjon

Isolasjon i tak og gulv, samt mellom karmer og laftekasse, med naturmaterialer for antikvarisk hensyn

Isolasjon for bedre energieffektivitet uten å skade kulturminneverdier

Annet Hestebokser under letak

Antall: 6

Utebokser for hester, 3x3 m hver, under forlenget letak på driftsbygning

Overdekket stallplass for 6 hester

Tak Pulttak på letak driftsbygning

Reparasjon og forlengelse av pulttak på driftsbygning for overdekning av hestebokser

Takarbeid på driftsbygningens letak

Tømrer Laft og trekonstruksjoner

🧱 Massivt laftetømmer i eksisterende bygg, ny trekonstruksjon i tilbygget

Minimale inngrep i eksisterende laft, nytt tilbygg med trekonstruksjon tilpasset eksisterende bygg

Tømrerarbeid for restaurering og nytt tilbygg

Tak Saltak med teglstein

🧱 Dobbeltkrummet betongtakstein, opprinnelig enkeltkrummet takstein vurderes tilbakeført

Tak på våningshus skal restaureres, tilbygg med tilsvarende takform og takvinkel

Restaurering av eksisterende tak og nytt saltak på tilbygget med tilsvarende takvinkel og takutstikk

Dører Ytterdør og dobbeltdør i tre

🧱 Tre med glassfelt og håndsmidde beslag

Bevaring av eksisterende ytterdør, ny inngangsdør til tilbygget med glassflater for transparens

Dører tilpasset eksisterende stil, med glassflater for lys og estetikk i tilbygget

Fasade Trepanel

🧱 Tre, liggende og stående panel med klassisk profil

Bevaring av eksisterende kledning, ny kledning på tilbygget i tilsvarende stil

Fasade med trepanel som skal bevares og suppleres på tilbygget for å harmonere med eksisterende bygg

Gulv Håndhøvlede gulvbord

🧱 Tre

Bevaring av eksisterende gulv i våningshuset, oppgradering med naturmaterialer i tilbygget

Restaurering av originale gulv, supplert med nye gulv i tilbygget tilpasset eksisterende stil

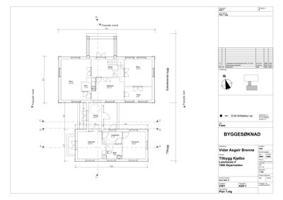
Plantegning

Enebolig 120.5 m²

Etasje 1 120.5 m²

Rom Areal Vinduer Dører
Stue 101 24.3 m² 3 1
Stue 102 16.3 m² 2 1
Stue 103 8.0 m² 1 1
Gang 104 12.7 m² 0 2
Kjøkken 105 15.7 m² 0 1
Kott 106 1.7 m² 0 1
Inngang 107 0.0 m² 0 1
Gang 108 10.6 m² 0 1
Opphold 109 15.6 m² 1 1
Vaskerom 110 5.1 m² 0 1
Bad 111 5.0 m² 0 1
Soverom 112 13.8 m² 1 1
Stue Stue (vest) 24.3 m² 2 1
Gang Gang (øst) 12.7 m² 0 3
Stue Stue (øst) 16.3 m² 2 1
Kjøkken Kjøkken 15.7 m² 0 1
Kott Kott 1.7 m² 0 1
Stue Stue (sør) 8.0 m² 2 0
Gang Gang (tilbygg) 8.3 m² 0 2
Opphold Opphold 15.6 m² 1 1
Vaskerom Vaskerom 5.1 m² 0 2
Soverom Soverom 13.8 m² 1 1
Bad Bad 5.0 m² 0 1

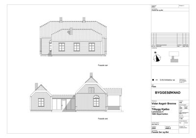
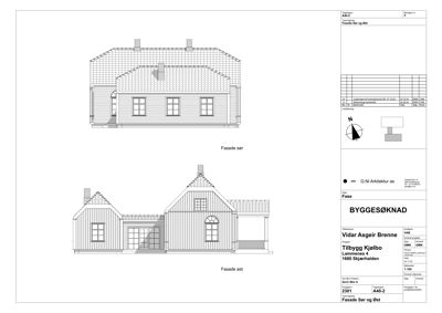
Fasader

Enebolig

Nord
Materiale
Tre
Taktype
Saltak
Takmat.
Tegl
Vinduer
3
Dører
1
Synlige etasjer
1
Vest
Materiale
Tre
Taktype
Saltak
Takmat.
Tegl
Vinduer
3
Dører
2
Balkonger
1
Synlige etasjer
1
Sør
Materiale
Tre
Taktype
Saltak
Takmat.
Tegl
Vinduer
3
Dører
1
Synlige etasjer
1
Øst
Materiale
Tre
Taktype
Saltak
Takmat.
Tegl
Vinduer
3
Dører
1
Balkonger
1
Synlige etasjer
1

Hendelser

18.03.2026 Melding om oppstart av fredningssak for Kjølbo - tilbygg / endring av driftsbygning - 3/6 - Lammenes 4, 6
24.10.2025 Vurdering av oppstart av fredningssak - tilbygg / endring av driftsbygning - 3/6 - Lammenes 4, 6
24.01.2025 Vedtak om midlertidig fredning - tilbygg / endring av driftsbygning - 3/6 - Lammenes 4, 6
16.01.2025 Klage på gebyr - tilbygg / endring av driftsbygning - 3/6 - Lammenes 4, 6
13.01.2025 Beslutning om utsatt iverksetting av vedtak - tilbygg / endring av driftsbygning - 3/6 - Lammenes 4, 6
13.01.2025 Etterlysning av dokument i byggesak - tilbygg / endring av driftsbygning - 3/6 - Lammenes 4, 6
02.01.2025 Byggetillatelse - tilbygg / endring av driftsbygning - 3/6 - Lammenes 4, 6
27.11.2024 Søknad om tilbygg - status - tilbygg / endring av driftsbygning - 3/6 - Lammenes 4, 6
15.10.2024 Viser til brev - 01.10.2024 - forespørsel om noe omprosjektering av tilbygg - tilbygg / endring av driftsbygning - 3/6 - Lammenes 4, 6
01.10.2024 Forespørsel om noe omprosjektering av tilbygg - tilbygg / endring av driftsbygning - 3/6 - Lammenes 4, 6
26.09.2024 Forespørsel om noe omprosjektering av tilbygg - tilbygg / endring av driftsbygning - 3/6 - Lammenes 4, 6
28.08.2024 Kjølbo - avklaring om behov for dispensasjon - tilbygg / endring av driftsbygning - 3/6 - Lammenes 4, 6
08.08.2024 Dialog om tiltak på våningshus på Kjølbo - tilbygg / endring av driftsbygning - 3/6 - Lammenes 4, 6
07.08.2024 Kommentarer til Østfold Fylkeskommunes uttalelse - tilbygg / endring av driftsbygning - 3/6 - Lammenes 4, 6
19.07.2024 Kommentarer til Østfold Fylkeskommunes uttalelse - tilbygg / endring av driftsbygning - 3/6 - Lammenes 4, 6
02.07.2024 Kopi av uttalelse fra Østfold Fylkeskommune - tilbygg / endring av driftsbygning - 3/6 - Lammenes 4, 6
02.07.2024 Uttalelse - dispensasjon - tilbygg / endring av driftsbygning - 3/6 - Lammenes 4, 6
18.06.2024 Supplering av søknad om tiltak - tilbygg / endring av driftsbygning - 3/6 - Lammenes 4, 6
18.06.2024 Supplerende dokumentasjon - tilbygg / endring av driftsbygning - 3/6 - Lammenes 4, 6
05.06.2024 Bekreftelse på tidspunkt for befaring - tilbygg / endring av driftsbygning - 3/6 - Lammenes 4, 6
05.06.2024 Utsatt frist - tilbygg / endring av driftsbygning - 3/6 - Lammenes 4, 6
03.06.2024 Svar på spørsmål om utsatt frist - ferieavvikling - tilbygg / endring av driftsbygning - 3/6 - Lammenes 4, 6
24.10.2023 Referat forhåndskonferanse - tilbygg / endring av driftsbygning - 3/6 - Lammenes 4, 6
09.10.2023 Svar på bestilling forhåndskonferanse - tilbygg / endring av driftsbygning - 3/6 - Lammenes 4, 6
26.09.2023 Forhåndskonferanse - bestilling - tilbygg / endring av driftsbygning - 3/6 - Lammenes 4, 6