Extension UnderBehandling Naeringsbygg

Ny landbase med lagerbygg og kaifront i Koløyhamn

📍 Koløyvegen 170 , 5419 FITJAR

Nøkkelinfo

Sakstype
Tilbygg
Bygningstype
Naeringsbygg
Bruksareal
326 m²
Kommune
Fitjar
Fylke
Vestland
Gnr / Bnr
49 / 233
Saksnummer
2025/1564
Fase
Under behandling

Om byggesaken

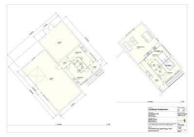
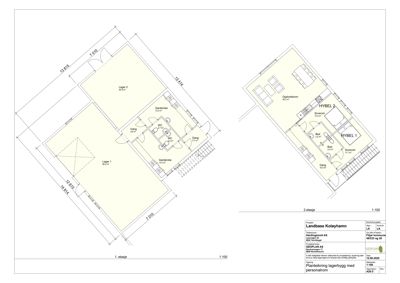
Ny landbase for Hardingsmolt AS i Koløyhamn med et lagerbygg på ca. 368,9 m² fordelt på to etasjer, inkludert lager, garderober, personalrom og hybler. Bygget har saltak med tradisjonell sjøhusarkitektur og er plassert i et område regulert for fritids- og boligformål, men med dispensasjon for næringsbruk. Tiltaket inkluderer også ny kaifront med utfylling i sjø på ca. 380 m², snuplass for lastebil med kranmulighet, skjermvegger, utelager, justert vegtrase og nytt fortau/gangveg. Kaifronten skal være offentlig tilgjengelig når det ikke pågår kraning. Tiltaket innebærer opprydding og modernisering av et tidligere nedslitt næringsområde, med fokus på trafikksikkerhet og skjerming mot omkringliggende fritidsbebyggelse. Det stilles krav til teknisk VA-plan, tiltaksplan for forurensede masser, godkjenning etter forurensningsloven, geoteknisk prosjektering og risikovurdering for overnatting/personalrom før brukstillatelse.

Produkter og materialer

Utendørs Snuplass for lastebil med kranmulighet

🧱 Asfalt/betong

Antall: 1

Snuplass på kaiområdet for lastebil med mulighet for direkte kraning til arbeidsbåt.

Snuplass for effektiv og sikker logistikk.

VVS Risikovurdering for overnatting/personalrom

Risikovurdering for materielle skader og sikkerhet for personell i bygg med overnatting før brukstillatelse.

Sikkerhetsvurdering for personalrom og hybler.

VVS VA/OV teknisk plan

Krav om godkjent teknisk plan for vann- og avløpsløsninger før igangsetting.

VA/OV plan for landbasen.

VVS Geoteknisk prosjektering

Krav om dokumenterte grunnundersøkelser og geoteknisk prosjektering før igangsetting.

Geoteknisk vurdering for fylling og bygg.

VVS Godkjenning etter forurensningsloven §11

Krav om godkjenning etter forurensningsloven §11 for utfylling i sjø.

Miljøgodkjenning for utfylling.

Fasade Skjermvegger med store porter

🧱 Ikke spesifisert

Skjermvegger skal avgrense kaiområdet mot vei for sikkerhet og visuell skjerming mot fritidsbebyggelse.

Skjermvegger for å skjerme næringsaktivitet fra omkringliggende bebyggelse.

Fasade Ny kaifront

🧱 Betong

Antall: 1

Kaifront med høyde +1,7 moh, ca. 4 meter lengre ut i sjø enn regulert formålsgrense.

Ny kaifront for større båter og arbeidsbåter, offentlig tilgjengelig når ikke i bruk til kraning.

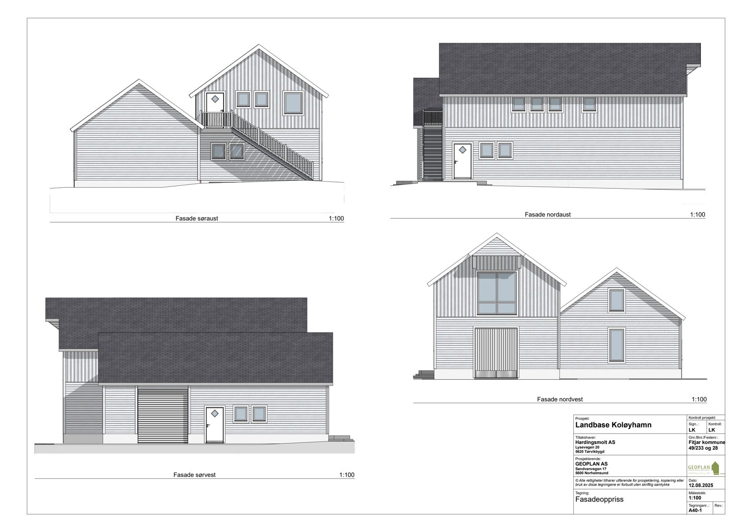
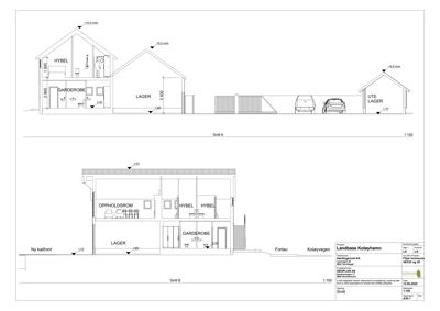
Bygningskomponenter Lagerbygg med personalrom og hybler

🧱 Tre, saltak med takvinkel 36 grader

Antall: 1

Bygget er på ca. 368,9 m² fordelt på to etasjer, med lager, garderober, WC, oppholdsrom, hybler med soverom og bad. Maks mønehøyde kote +10 m, golvhøyde 1.8 moh.

Nytt lagerbygg med personalrom og hybler for ansatte, utformet som tradisjonelle sjøhus/rorbuer.

Utendørs Utelager

🧱 Ikke spesifisert

Antall: 1

Overbygd, åpent utelager for avfallshåndtering og lagring av reservedeler.

Utelager på kaiområdet.

Utendørs Fortau/gangveg

🧱 Ikke spesifisert

Antall: 1

Nytt fortau/gangveg langs vei, flyttet ca. 20 meter mot nordøst for å gi plass til lagerbygg.

Oppgradering og justering av fortau/gangveg for trygg ferdsel.

Tak Saltak

🧱 Ikke spesifisert

Antall: 1

Takvinkel 36 grader, tradisjonell saltak som harmonerer med sjøhusarkitektur.

Saltak på lagerbygget.

VVS Tiltaksplan for forurensede masser

Krav om tiltaksplan for fjerning eller sikring av forurensede masser før igangsetting.

Tiltaksplan for håndtering av forurenset grunn.

Grunnarbeid Utfylling i sjø

🧱 Massar for utfylling

Antall: 380

Utfylling i sjø på ca. 380 m², volum ca. 1500-2000 m³, med krav til tiltaksplan for forurensede masser og geoteknisk prosjektering.

Utfylling for ny kaifront og snuplass for lastebil med kranmulighet.

Utendørs Vegjustering

🧱 Asfalt/betong

Antall: 1

Justering av trase for offentlig veg Koløyvegen i samsvar med reguleringsplan.

Vegjustering for bedre trafikkflyt og sikkerhet.

Fasader

Enebolig

Sørøst
Materiale
Tre
Taktype
Saltak
Vinduer
5
Dører
1
Balkonger
1
Synlige etasjer
2
Nordøst
Materiale
Tre
Taktype
Saltak
Vinduer
6
Dører
1
Synlige etasjer
2
Sørvest
Materiale
Tre
Taktype
Saltak
Vinduer
3
Dører
1
Synlige etasjer
2
Nordvest
Materiale
Tre
Taktype
Saltak
Vinduer
3
Dører
1
Synlige etasjer
2
Søraust
Materiale
Tre
Taktype
Saltak
Vinduer
5
Dører
1
Balkonger
1
Synlige etasjer
2
Nordaust
Materiale
Tre
Taktype
Saltak
Vinduer
6
Dører
1
Synlige etasjer
2

Hendelser

16.04.2026 Klage på dispensasjonsvedtak – Koløyhamn (gnr/bnr 49/233 og 49/28)
15.04.2026 Kommentar til klage på vedtak om dispensasjon
10.04.2026 49/233 - 49/28 Klage på vedtak PS 9/26- ber om eventuelle merknader
08.04.2026 49/233 - 49/28 Koløyo Melding om vedtak- dispensasjon for ulike tiltak
08.04.2026 Klage på vedtak 49/233 - 49/28 - Vedtak- søknad om dispensasjon - smoltanlegg i Koløyo - ny handsaming
18.03.2026 49/233 - 49/28 - Melding om synfaring
03.02.2026 Ønsker å delta på synfaring den 24.03.26
27.01.2026 49/228-43/233 Melding om vedtak- dispensasjon for etablering av smoltanlegg
05.12.2025 Uttale - dispensasjon - Fitjar 49/233 og 49/28 - Koløyhamn - utfylling i sjø - kaifront - lagerbygg m.m.
06.11.2025 49/233 - 49/28 Søknad om dispensasjon ifrå fleire formål for utfylling i sjø, kaifront, lagerbygg med personaldel mm.
27.10.2025 49/233 og 49/28 Rammesøknad - Utfylling i sjø, kaifront, lagerbygg med personaldel
20.10.2025 2025/1564 Innspel til handsaming av dispensasjonssøknad
14.10.2025 Uttalelse til søknad om dispensasjon på gnr/bnr 49/233 og 49/28 - Koløyholmen
01.10.2025 Innsigelse på nabovarsel Dispensasjonssøknad og søknad om løyve til tiltak på gnr/bnr 49/233 og 49/28 i Koløyhamn, Fitjar kommune
26.09.2025 Innsigelse til nabovarsel fra Hardingsmolt, G.nr 49 bnr, 28 og 233