Extension UnderBehandling Naeringsbygg

Tilbygg og ombygging av driftsbygning i Hallrøstveien 24, Vingelen

📍 Londalsveien 320 , 2542 VINGELEN

Nøkkelinfo

Sakstype
Tilbygg
Bygningstype
Naeringsbygg
Bruksareal
1,024 m²
Kommune
Tolga
Fylke
Innlandet
Gnr / Bnr
7 / 1
Saksnummer
2026/1761
Fase
Under behandling

Om byggesaken

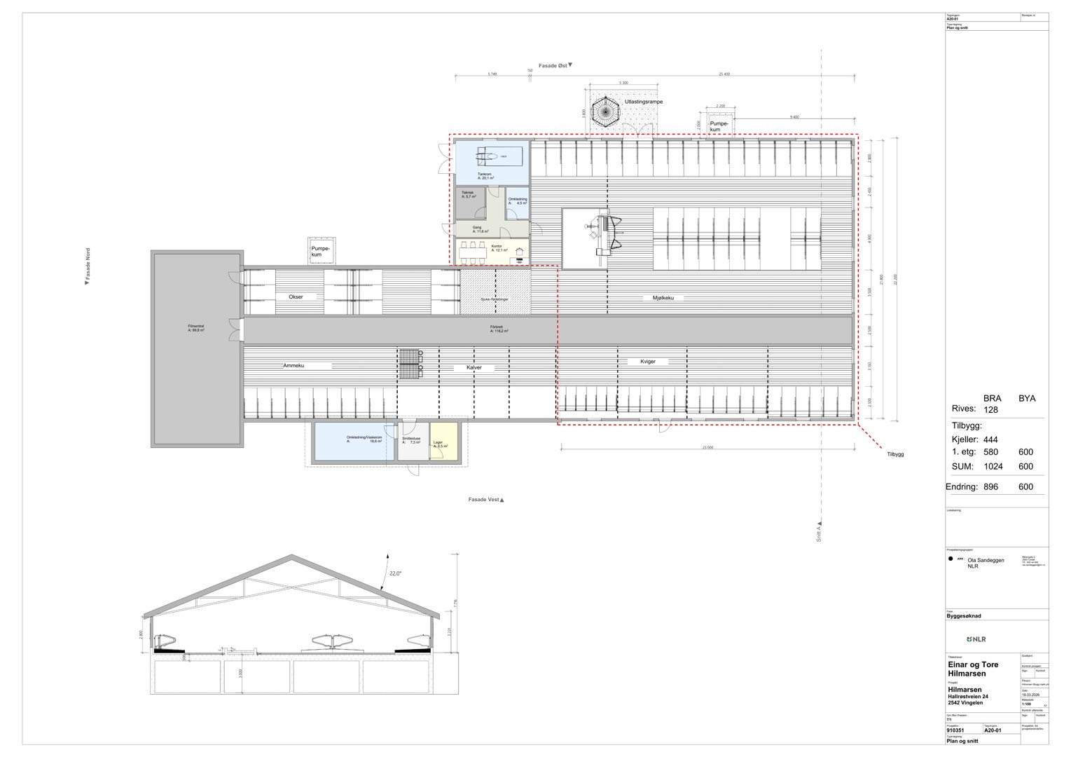
Ny tilbygg på 1024 m² og ombygging av eksisterende driftsbygning i landbruket på Hallrøstveien 24 i Vingelen. Tiltaket inkluderer riving av 128 m² av eksisterende bygg og ombygging fra båsfjøs til løsdrift for storfe, med tilpasning til dagens regelverk som krever større areal. Bygget inneholder funksjoner som ammeku, kalver, kviger, mjølkeku, tekniske rom, kontor, lager og smittesluse. Tilbygget har kjeller og første etasje med flere rom for drift og administrasjon. Bygget er tilpasset kulturlandskapet med svart matt trapesplatetak og fasade som harmonerer med eksisterende bygg. Prosjektet omfatter også tekniske installasjoner som rør, elektro og brannalarm.

Produkter og materialer

Tømrer Tilbygg og ombygging av driftsbygning

🧱 Tre og isolasjon i henhold til gjeldende forskrifter

Ombygging fra båsfjøs til løsdrift, tilbygg på 1024 m², riving av 128 m² eksisterende bygg

Tømrerarbeid for nybygg og ombygging

Grunnarbeid Terrengarbeid og grunnarbeid

Grunn- og terrengarbeider utføres av TRANGVIK MASKIN AS

Grunnarbeid for tilbygg og ombygging

Elektro Brannalarmanlegg og elektroinstallasjoner

Brannalarmanlegg og elektroarbeid utføres av ELTRON AS

Elektriske installasjoner og brannalarm

Mur Kjeller og grunnmur

Kjeller skal gjenbrukes som del av tilbygget

Grunnmur og kjellerarbeid for tilbygget

Fasade Taktekking med trapesplater

🧱 Matt svart trapesplate

Taket skal tekkes med svarte trapesplater i matt materiale for å begrense solrefleksjon og tilpasse kulturlandskapet

Taktekking for nytt tilbygg og ombygging

Innvendig Rom for landbruksdrift og administrasjon

Rom som ammeku, kalver, kviger, mjølkeku, teknisk rom, kontor, lager, smittesluse, omkledning og vaskerom

Innvendige rom og funksjoner i driftsbygningen

Betong Plasstøpte konstruksjoner

Plasstøpte konstruksjoner utføres av INNLANDET BYGGETEKNIKK AS

Betongarbeid for fundament og konstruksjoner

VVS Rørarbeid

Rørarbeid utføres av Rørleggermester Olav Tellebon AS

VVS-installasjoner i nytt og ombygget bygg

Plantegning

Enebolig 1,024.0 m²

Etasje 0 444.0 m²

Rom Areal Vinduer Dører
Førstehus 001 59.8 m² 0 1
Ammekua 002 0.0 m² 0 0
Kalver 003 0.0 m² 0 0
Kviger 004 0.0 m² 0 0
Mjølkekua 005 0.0 m² 0 0
Gang 006 11.8 m² 0 1
Teknikk 007 5.7 m² 0 0
Omkledning 008 4.5 m² 0 0
Tørkerom 009 20.1 m² 0 0
Kontor 010 12.1 m² 0 0
Omkledning/Vaskerom 011 18.0 m² 0 0
Gang 012 7.3 m² 0 0
Lager 013 6.5 m² 0 0
Førstet 014 110.2 m² 0 0
Okser 015 0.0 m² 0 0
Pumpekum 016 0.0 m² 0 0
Pumpekum 017 0.0 m² 0 0

Etasje 1 580.0 m²

Rom Areal Vinduer Dører
Stue 101 35.2 m² 3 2
Kjøkken 102 22.5 m² 1 1
Spisestue 103 18.3 m² 2 1
Gang 104 12.1 m² 0 2
Bad 105 8.5 m² 1 1
Toalett 106 3.2 m² 0 1
Vaskerom 107 6.8 m² 1 1
Soverom 1 108 14.5 m² 2 1
Soverom 2 109 13.2 m² 2 1
Soverom 3 110 12.8 m² 2 1
Soverom 4 111 11.5 m² 1 1
Soverom 5 112 10.2 m² 1 1
Soverom 6 113 9.8 m² 1 1
Soverom 7 114 9.5 m² 1 1
Soverom 8 115 9.2 m² 1 1
Soverom 9 116 8.9 m² 1 1
Soverom 10 117 8.5 m² 1 1
Soverom 11 118 8.2 m² 1 1
Soverom 12 119 7.9 m² 1 1
Soverom 13 120 7.5 m² 1 1
Soverom 14 121 7.2 m² 1 1
Soverom 15 122 6.9 m² 1 1
Soverom 16 123 6.5 m² 1 1
Soverom 17 124 6.2 m² 1 1
Soverom 18 125 5.9 m² 1 1
Soverom 19 126 5.5 m² 1 1
Soverom 20 127 5.2 m² 1 1
Soverom 21 128 4.9 m² 1 1
Soverom 22 129 4.5 m² 1 1
Soverom 23 130 4.2 m² 1 1
Soverom 24 131 3.9 m² 1 1
Soverom 25 132 3.5 m² 1 1
Soverom 26 133 3.2 m² 1 1
Soverom 27 134 2.9 m² 1 1
Soverom 28 135 2.5 m² 1 1
Soverom 29 136 2.2 m² 1 1
Soverom 30 137 1.9 m² 1 1
Soverom 31 138 1.5 m² 1 1
Soverom 32 139 1.2 m² 1 1
Soverom 33 140 0.9 m² 1 1
Soverom 34 141 0.5 m² 1 1
Soverom 35 142 0.2 m² 1 1

Hendelser

21.04.2026 Uttalelse kulturminneforvalter
20.04.2026 Uttalelse vedrørende søknad om tilbygg til landbruksbygg Vingelen - Gbnr. 7/1 - Tolga kommune
14.04.2026 Høringsuttalelse Landbruksbyg Vingelen, Tolga-GBNR 7/1
20.03.2026 Innvilgelse av søknad om samtykke
20.03.2026 Hallrøstveien 24 Søknad om tillatelse i ett trinn 7/1