Extension Rammetillatelse Naeringsbygg

Tilbygg til lagerhall i Lundekroken 21, Porsgrunn

📍 Lundekroken 21 , 3940 PORSGRUNN

Nøkkelinfo

Sakstype
Tilbygg
Bygningstype
Naeringsbygg
Kommune
Porsgrunn
Fylke
Telemark
Gnr / Bnr
67 / 386
Saksnummer
2026/4054
Fase
Rammetillatelse

Om byggesaken

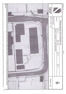
Nybygg av tilbygg til eksisterende lagerhall på eiendommen Lundekroken 21 i Porsgrunn. Tilbygget skal benyttes som lager og garasje, med flatt tak og én etasje. Bygget er en industribyggkategori med enkel konstruksjon, og tilpasset eksisterende lagerhall. Prosjektet inkluderer montering av elementer og takverk i tre, samt lett taktekking med plater og papp. Området er regulert til næringsvirksomhet, og tiltaket er i samsvar med gjeldende plan- og bygningslovgivning.

Produkter og materialer

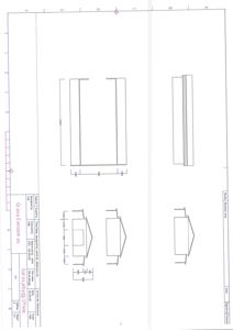
Fasade Fasade for tilbygg lagerhall

Flatt tak, ingen vinduer eller dører på fasadene ifølge tegninger

Fasadeelementer for tilbygg med flatt tak, uten vinduer eller dører

Grunnarbeid Fundamentering og grunnarbeid for tilbygg

Grunnarbeid og fundamentering for nytt tilbygg til lagerhall

Tømrer Montering av elementer og takverk

🧱 Tre

Montering av element og takverk av tre

Tømrerarbeid for montering av elementer og takverk i tilbygg

Tak Flatt tak med lett taktekking

🧱 Plater og papp

Lett taktekking av plate og papp, montering av takverk i tre

Taktekking for nytt tilbygg med flatt tak, inkludert takverk i tre og taktekking med plater og papp

Elektro Elektrisk installasjon for lagerbygg

Elektriske installasjoner for nytt tilbygg lagerhall, antatt nødvendig for funksjonelt bygg

VVS VVS-installasjoner

Bygningen skal ikke ha innlagt vann, men VVS kan være nødvendig for drenering og avløp

VVS-installasjoner for drenering og eventuelt avløp i tilbygg

Fasader

Garasje

Vest
Taktype
Flatt tak
Vinduer
0
Dører
0
Synlige etasjer
1
Sør
Taktype
Flatt tak
Vinduer
0
Dører
0
Synlige etasjer
1
Øst
Taktype
Flatt tak
Vinduer
0
Dører
0
Synlige etasjer
1
Nord
Taktype
Flatt tak
Vinduer
0
Dører
0
Synlige etasjer
1
Ukjent
Taktype
Saltak
Vinduer
0
Dører
0
Synlige etasjer
1

Hendelser

16.04.2026 Tillatelse - Gbnr. 67/386, Lundekroken 21 - Tilbygg til eksisterende lagerhall
08.04.2026 Søknad om tillatelse i ett trinn - Gbnr. 67/386, Lundekroken 21