Extension UnderBehandling Naeringsbygg

Tilbygg og bruksendring til legesenter i Nedre Tverrgate 17

📍 Møllergata 8 , 3050 MJØNDALEN

Nøkkelinfo

Sakstype
Tilbygg
Bygningstype
Naeringsbygg
Bruksareal
329 m²
Kommune
Drammen
Fylke
Buskerud
Gnr / Bnr
215 / 86
Saksnummer
26/09687
Fase
Under behandling

Om byggesaken

Prosjektet omfatter tilbygg og bruksendring av deler av 1. etasje i et eksisterende næringsbygg i Nedre Tverrgate 17, Mjøndalen, til et legekontor/legesenter. Bygget har et totalt areal på ca. 329 m² i 1. etasje, med rom som venterom, resepsjon, legekontorer, laboratorier, teknisk rom, pauserom, garderober, HC-toaletter, dusj og skiftestue. Fasaden er i tre med flatt tak. Prosjektet inkluderer bygningsmessige arbeider, brannvern, parkering, og omfattende tekniske installasjoner som sanitær, sprinkleranlegg, ventilasjon, brannalarmanlegg og ledesystem. Det er én trapp i bygget, og fasaden har mange vinduer og dører. Arbeidstilsynet har gitt samtykke til tiltaket, og det er etablert ansvarlige prosjekterende og utførende for alle fagområder.

Produkter og materialer

VVS Sanitærinstallasjoner

Sanitærinstallasjoner for HCwc, dusj, garderober og øvrige rom

Installasjon av sanitærutstyr og rør for vann og avløp

Bygningskomponenter Vinduer

Antall: 48

Vinduer i fasade nord og vest, totalt 48 stk

Vinduer i fasade for dagslys og utsyn

Elektro Brannalarmanlegg

Brannalarmanlegg og ledesystem

Installasjon av brannalarmanlegg og ledesystem for rømningsveier

Fasade Trefasade med flatt tak

🧱 Tre

Fasade nord og vest med 24 vinduer og 2 dører per fasade, flatt tak

Fasade i tre med mange vinduer og dører, flatt tak

VVS Sprinkleranlegg

Sprinkleranlegg for brannsikring

Installasjon av sprinkleranlegg i bygget

Ventilasjon Ventilasjonsanlegg

Ventilasjonsanlegg for inneklima og luftkvalitet

Prosjektering og installasjon av ventilasjonsanlegg

Gulv Gulvbelegg

Gulvbelegg i legekontorer, venterom, laboratorier og andre rom

Tømrer Bygningsmessige arbeider

Bygningsmessige arbeider for tilbygg og innvendige tilpasninger

Utførelse av bygningsmessige arbeider i tilbygg og bruksendring

Bygningskomponenter Dører

Antall: 22

Dører i ulike rom som venterom, resepsjon, legekontorer, lager, HCwc, dusj, garderobe, teknisk rom

Innvendige og utvendige dører for rom i tilbygg og bruksendring

Maling Innvendig maling

Innvendig maling av vegger og tak i tilbygg og bruksendring

Grunnarbeid Fundamentering og grunnarbeider

Grunnarbeider for tilbygg og eventuelle fundamenter

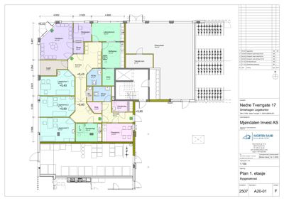
Plantegning

Smiehagen Legekontor 328.9 m²

Etasje 1 328.9 m²

Rom Areal Vinduer Dører
Venterom Venterom 22.7 m² 1 1
Resepsjon Resepsjon 7.1 m² 0 1
Sluse Sluse 2.5 m² 0 1
Lager Lager 7.6 m² 0 1
Korridor Korridor 33.0 m² 0 4
Legekontor 1 Legekontor 1 16.4 m² 0 1
Legekontor 2 Legekontor 2 15.1 m² 0 1
Legekontor 3 Legekontor 3 17.9 m² 0 1
HCwc HCwc 5.1 m² 0 1
B.k. B.k. 1.8 m² 0 1
HCwc HCwc 5.8 m² 0 1
EKG EKG 4.4 m² 0 1
Skiftestue Skiftestue 12.4 m² 0 1
Dusj Dusj 2.8 m² 0 1
Gynekologi Gynekologi 10.2 m² 0 1
Garderobe Garderobe 5.0 m² 0 1
Korridor Korridor 8.8 m² 0 2
Laboratorium Laboratorium 13.0 m² 0 1
Teknisk rom Teknisk rom 8.0 m² 0 1
Disponibelt Disponibelt 79.4 m² 0 1
Pauserom Pauserom 12.2 m² 0 1

Fasader

Smiehagen Legekontor

Nord
Materiale
Tre
Taktype
Flatt tak
Høyde
5.3 m
Vinduer
24
Dører
2
Synlige etasjer
4
Vest
Materiale
Tre
Taktype
Flatt tak
Høyde
5.4 m
Vinduer
24
Dører
2
Synlige etasjer
4

Hendelser

10.04.2026 Nedre Tverrgate 17 Supplering av søknad 215/86
30.03.2026 Nedre Tverrgate 17, kopi: Vi innvilger søknaden om samtykke etter automatisk saksbehandling
30.03.2026 Nedre Tverrgate 17 Søknad om tillatelse i ett trinn 215/86