Extension Ferdigattest Naeringsbygg

Tilbygg med treningsavdeling og sekundær boenhet, Nedre Dyrhusbakken 11

📍 Nedre Dyrhusbakken 11 , 1390 VOLLEN

Nøkkelinfo

Sakstype
Tilbygg
Bygningstype
Naeringsbygg
Bruksareal
279 m²
Boenheter
2
Kommune
Asker
Fylke
Akershus
Gnr / Bnr
63 / 72
Saksnummer
20/5386
Fase
Ferdigattest

Om byggesaken

Ny tilbygg på 57 m² BYA med treningsavdeling og integrert drivhus på 15,4 m² knyttet til en eldre enebolig med sekundær boenhet på 78,5 m². Tilbygget er oppført i tre med saltak tekket med teglstein, og har gesims- og mønehøyder på henholdsvis ca. 3,8 m og 6,2 m. Bygget inneholder blant annet spaavdeling, havestue og baderom, samt direkte adkomst til drivhus fra boligen. Eiendommen har totalt ca. 278,8 m² BRA boligareal, inkludert generasjonsdel, og samlet bebygd areal (BYA) etter tiltaket er ca. 417,3 m², innenfor tillatt utnyttelse. Tiltaket er ferdigstilt med råbygg i 2023 og fullført i 2026, og det planlegges søkt om ferdigattest.

Produkter og materialer

Tak Saltak med teglstein

🧱 Teglstein

Saltak med teglstein som taktekking

Taktekking for tilbygget og eksisterende bolig

Maling Utvendig og innvendig maling

Maling av fasade og innvendige overflater

Overflatebehandling for beskyttelse og estetikk

Ventilasjon Ventilasjonssystem

Ventilasjon for treningsavdeling, spa og bolig

Ventilasjon for godt inneklima

Dører Ytterdører og innerdører

🧱 Tre/Glass

Antall: 18

Dører mellom rom og ut til drivhus, inkludert dør mellom hoveddel og generasjonsdel

Ytter- og innerdører for adkomst og romdeling

Vinduer Drivhusvinduer

🧱 Glass

Antall: 2

Vinduer i drivhus på 15,4 m²

Vinduer for drivhus med god lysinnslipp

Elektro Elektriske installasjoner

Elektriske anlegg for belysning og strøm i tilbygg og bolig

El-installasjoner iht. gjeldende forskrifter

Vinduer Fasadevindu

🧱 Tre/Aluminium

Antall: 8

Vinduer i fasade sør og øst, tilpasset eksisterende stil

Fasadevinduer for naturlig lys i treningsavdeling og bolig

Fasade Trepanel

🧱 Tre

Tilbygg i tre med saltak tekket med teglstein

Yttervegger i tre som matcher eksisterende bolig, med saltak og teglstein som takmateriale

VVS Sanitærinstallasjoner

Sanitærarbeid utført av Instant VVS A/S, inkludert bad og spa

VVS-installasjoner for bad, spa og sanitærrom

Tømrer Bygging av tilbygg og generasjonsdel

🧱 Tre

Tømrerarbeid for oppføring av tilbygg og integrert sekundær boenhet

Tømrerarbeid for konstruksjon og innvendige arbeider

Gulv Spa og treningsavdeling gulv

Spa-avdeling på 29,2 m² med egnet gulvbelegg

Gulv for spa og treningsavdeling med fuktbestandig materiale

Grunnarbeid Fundamentering og drenering

Grunnarbeid for tilbygg og drivhus, inkludert drenering

Fundamentering og drenering for nytt tilbygg og drivhus

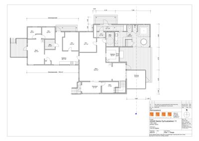
Plantegning

Enebolig 278.8 m²

Etasje 1 278.8 m²

Rom Areal Vinduer Dører
Stue 101 19.7 m² 1 2
Sov 102 5.5 m² 1 1
Sov 103 6.5 m² 1 1
Bad 104 4.3 m² 0 2
Sov 105 12.4 m² 1 1
Sov 106 14.1 m² 1 1
Kjøkken 107 22.7 m² 1 2
Stue 108 54.5 m² 1 2
Kjøkken 109 8.2 m² 1 2
V.F. 110 2.7 m² 0 1
V.F. 111 12.1 m² 1 1
Bad 112 5.0 m² 0 2
Spa 113 29.2 m² 1 2
Drivhus 114 15.4 m² 2 1
Havestue 115 9.1 m² 1 1
Bod 116 7.1 m² 0 1

Fasader

Enebolig

Sør
Materiale
Tre
Taktype
Saltak
Takmat.
Tegl
Høyde
3.8 m
Mønehøyde
6.2 m
Vinduer
8
Dører
2
Synlige etasjer
1
Øst
Materiale
Tre
Taktype
Saltak
Takmat.
Tegl
Høyde
6.2 m
Mønehøyde
6.2 m
Vinduer
4
Dører
2
Balkonger
2
Synlige etasjer
1

Hendelser

13.04.2026 63/72 Nedre Dyrhusbakken 11 - Svar på mangelbrev - Status ifm. ferdigattest
06.04.2021 63/72 Erklæring om ansvarsrett - Bygge ny treningsavdeling
23.11.2020 63/72 Godkjent dispensasjon og tillatelse til tiltak i ett trinn - Tilbygg/treningsavdeling
07.10.2020 63/72 Svar på mangelbrev og ettersendt dokumentasjon - Bygge ny treningsavdeling
30.09.2020 63/72 Ufullstendig søknad om tillatelse til tiltak i ett trinn - Tilbygg/treningsavdeling/ettergodkjenning av sekundær boenhet
19.08.2020 63/72 Kvitteringsbrev - Bygge ny treningsavdeling
14.08.2020 63/72 Søknad om å bygge ny treningsavdeling