Extension Soeknad Naeringsbygg

Tilbygg, påbygg og bruksendring til bolig i Nesttunvegen 81, Bergen

📍 Nesttunvegen 81 , 5221 NESTTUN

Nøkkelinfo

Sakstype
Tilbygg
Bygningstype
Naeringsbygg
Bruksareal
381 m²
Boenheter
2
Kommune
Bergen
Fylke
Vestland
Gnr / Bnr
42 / 285
Saksnummer
BYGG-2026/12453
Fase
Søknad

Om byggesaken

Tiltaket omfatter ombygging og bruksendring av eksisterende næringsbygg i Nesttunvegen 81 til boligformål, inkludert etablering av én ny boenhet i 1. etasje på ca. 95,6 m² med 3 soverom, stue, kjøkken, bad og entré. Det bygges på med et påbygg i 2. etasje mot nord på ca. 3,4 x 1,68 m, samt et takløft på loftet med ca. 80 cm høyde og endring av takform fra valmet tak til saltak med to nye ark. I kjelleren etableres to sportsboder på ca. 5,7 m² hver. Totalt øker bruksarealet fra ca. 333,7 m² til ca. 381,3 m². Bygget får nye vinduer, blant annet lydisolerende vinduer mot øst og vest, og det monteres en ny HEB-bjelke i 2. etasje. Fasaden er i tre med saltak. Uteoppholdsareal dekkes gjennom nærliggende offentlige områder på grunn av støy- og lysforhold på egen tomt. Støyforhold, flom- og grunnforhold er vurdert og tilfredsstillende dokumentert.

Produkter og materialer

Vinduer Lydisolerende fasadevindu

🧱 3-lags energiglass med lydreduksjon Rw + Ctr ≥ 32 dB

Antall: 14

Vinduer mot øst og vest med lydisolerende egenskaper for å tilfredsstille innendørs støynivåkrav, inkludert VELUX takvinduer med lydkrav

Nye lydisolerende vinduer i fasaden og takvinduer på loft for å sikre tilfredsstillende lydnivå innendørs

Fasade Tre kledning

🧱 Tre

Fasade i tre med saltak, tilpasset eksisterende bebyggelse

Oppgradering og tilpasning av fasade i tre som del av påbygg og takløft

Betong HEB-bjelke

🧱 Stål HEB-bjelke

Antall: 1

Ny HEB-bjelke i 2. etasje for bærekonstruksjon ved påbygg

Bærekonstruksjon for nytt påbygg i 2. etasje

Dører Ytterdør med lydreduksjon

Antall: 4

Ytterdør i 1. etasje med lydreduksjon Rw + Ctr ≥ 34 dB

Dører med lydisolasjon for å oppfylle krav til innendørs støynivå

Bad Våtromsinnredning

Antall: 2

Bad i ny og eksisterende boenhet oppgraderes iht. våtromsnorm

Isolasjon Veggisolasjon og lydisolasjon

🧱 Rockwool eller tilsvarende mineralull, 200 mm + 48 mm påforing

Isolasjon i yttervegger og tak for termisk og lydmessig isolasjon iht. TEK17 og lydkrav

Isolasjon for å sikre lyd- og varmeisolasjon i vegger og tak

Tømrer Innvendige vegger og tak

Innvendige konstruksjoner for ombygging og påbygg

Gulv Innvendige gulv i bolig

Gulv i nye og oppgraderte boligrom

Ventilasjon Balansert ventilasjon

Antall: 1

Balansert ventilasjon med luftinntak og avkast på stille side for å oppfylle lydkrav

Ventilasjonsanlegg for å sikre god luftkvalitet og lydforhold innendørs

Tak Saltak med takløft og ark

🧱 Tre, taktekking iht. TEK17

Antall: 1

Takløft på ca. 80 cm, endring fra valmet tak til saltak mot nord, med to nye ark

Ny takstruktur med økt mønehøyde og ark for økt areal og bedre romfunksjon på loft

Grunnarbeid Ingen vesentlige terrenginngrep

Ingen endring i terreng eller grunnforhold, ingen masseforflytning

Grunnarbeid begrenset til tilpasning i kjeller for sportsboder

Mur Sportsboder i kjeller

Antall: 2

To sportsboder à ca. 5,7 m² i kjeller

Etablering av sportsboder for lagringsareal i kjeller

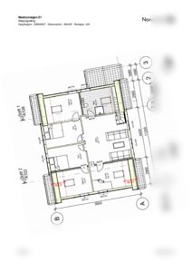
Plantegning

Byggeselskap 0.0 m²

Etasje 1 0.0 m²

Rom Areal Vinduer Dører
Stue 1 0.0 m² 0 0
Kjøkken 2 0.0 m² 0 0
Gang 3 0.0 m² 0 0
Bad 4 0.0 m² 0 0
Toalett 5 0.0 m² 0 0
Vaskerom 6 0.0 m² 0 0
Kontorer 7 0.0 m² 0 0
Teknisk rom 8 0.0 m² 0 0
Butikk 9 0.0 m² 0 0

Kjeller 108.5 m²

Etasje 0 108.5 m²

Rom Areal Vinduer Dører
Kjeller Kjeller 85.0 m² 0 1
Bod Bod 12.0 m² 0 1
Bod Bod 11.5 m² 0 1
Bod Bod 11.0 m² 0 1
Bod Bod 10.5 m² 0 1
Bod Bod 10.0 m² 0 1
Bod Bod 9.5 m² 0 1
Bod Bod 9.0 m² 0 1

Enebolig 314.6 m²

Etasje 1 105.8 m²

Rom Areal Vinduer Dører
Stue 101 18.0 m² 2 1
Sov 102 9.1 m² 1 1
Sov 103 12.1 m² 1 1
Sov 104 11.2 m² 1 1
Kjøkken 105 15.6 m² 1 1
Entré 106 7.6 m² 0 1
Bad 107 4.5 m² 0 1
Kontor 108 10.0 m² 1 1
VVF-trapp 109 4.5 m² 0 0

Etasje 2 100.0 m²

Rom Areal Vinduer Dører
Stue 201 34.8 m² 3 1
Kjøkken 202 18.7 m² 1 1
Sov 203 12.2 m² 1 1
Sov 204 12.1 m² 1 1
Bad 205 6.6 m² 0 1
Gang 206 8.1 m² 0 1

Etasje 3 108.8 m²

Rom Areal Vinduer Dører
Stue 301 23.7 m² 3 1
Sov 302 9.9 m² 1 1
Walk-in 303 8.6 m² 1 1
Bed 304 8.6 m² 1 1
Kontor 305 9.6 m² 1 1
Walk-in 306 7.8 m² 1 1

Fasader

Enebolig

Øst
Materiale
Tre
Taktype
Saltak
Høyde
6.9 m
Mønehøyde
26.9 m
Vinduer
14
Dører
2
Balkonger
1
Synlige etasjer
3
Nord
Materiale
Tre
Taktype
Saltak
Høyde
6.7 m
Mønehøyde
8.4 m
Vinduer
2
Dører
0
Synlige etasjer
2
Sør
Materiale
Tre
Taktype
Saltak
Høyde
6.7 m
Mønehøyde
8.4 m
Vinduer
4
Dører
1
Synlige etasjer
2
Vest
Materiale
Tre
Taktype
Saltak
Høyde
6.5 m
Mønehøyde
8.2 m
Vinduer
7
Dører
2
Balkonger
1
Synlige etasjer
3

Hendelser

13.04.2026 Nesttunvegen 81 Søknad om rammetillatelse 42/285