Extension Soeknad Naeringsbygg

To tilbygg på næringsbygg, Ramstadløkka 1, Mysen

📍 Ramstadløkka 1 , 1850 MYSEN

Nøkkelinfo

Sakstype
Tilbygg
Bygningstype
Naeringsbygg
Bruksareal
536 m²
Kommune
Indre Østfold
Fylke
Østfold
Gnr / Bnr
282 / 75
Saksnummer
2026/2533
Fase
Søknad

Om byggesaken

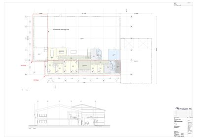
To nye tilbygg på til sammen 535,8 m² oppføres på eksisterende næringsbygg på Ramstadløkka 1 i Mysen. Tilbyggene er i to etasjer med flatt og saltak, og bygges i trekledning. Bygget inneholder produksjonslokaler, kontorer, møterom, lager, tekniske rom, WC, HC-WC, dusj og spiserom. Det planlegges også løfteplattform. Fasader har mange vinduer og flere dører, og det etableres parkeringsplasser mot vest. Bygget har gesimshøyde opptil 9 meter og mønehøyde opptil 14,25 meter. Tiltaket inkluderer dispensasjon fra byggegrense mot vei med inntil 1,4 meter.

Produkter og materialer

Grunnarbeid Fundamentering og grunnarbeid

Grunnarbeid for nye tilbygg og parkeringsplasser

Grunnarbeid og fundamentering for tilbygg og utearealer

Betong Betongarbeider

Betongarbeider for fundamenter og bærende konstruksjoner

Betongarbeider i forbindelse med tilbygg

Tak Flatt tak og saltak

Flatt tak på fasade nord og sør, saltak på fasade øst og vest

Taktekking for to tilbygg med både flatt tak og saltak

Annet Løfteplattform

Antall: 1

Planlagt løfteplattform i tilbygget

Løfteplattform for tilgjengelighet

Terrasse Parkeringsareal

Etablering av parkeringsplasser langs eiendomsgrense mot vest

Utendørs parkeringsplasser

VVS Sanitærinstallasjoner

Sanitærinstallasjoner for WC, HC-WC, dusj og tekniske rom

VVS-installasjoner i tilbygg

Elektro El-installasjoner

Elektriske installasjoner i tilbygg

Dører Ytterdører

Antall: 4

Flere ytterdører på fasader, inkludert hovedinngang og dører til kontorer og produksjonslokaler

Ytterdører til to tilbygg

Ventilasjon Ventilasjons- og klimainstallasjoner

Prosjektering og installasjon av ventilasjon og klima

Ventilasjons- og klimainstallasjoner i tilbygg

Stål Bærende metallarbeider

Montering av bærende metallarbeider

Stålkonstruksjoner i tilbygget

Tømrer Tømrerarbeid

Tømrerarbeid for oppføring av tilbygg i trekonstruksjon

Tømrerarbeid i tilbygg

Maling Innvendig og utvendig maling

Maling av fasader og innvendige flater

Vinduer Fasadevindu

Antall: 54

Totalt 54 vinduer fordelt på fasader nord, øst, sør og vest

Fasadevinduer til to tilbygg

Fasade Trekledning

🧱 Tre

Fasader i tre med flatt og saltak, gesimshøyde opptil 9 m, mønehøyde opptil 14,25 m

Yttervegger med trekledning til to nye tilbygg

Garasjeport Garasjeport

Antall: 1

Garasjeport på fasade sør

Garasjeport i tilbygget

Trapper Innvendig trapp

Antall: 1

Innvendig trapp i tilbygget

Trapp mellom etasjer i tilbygget

Rekkverk Innvendig rekkverk

Rekkverk ved trapper og eventuelle ramper

Plantegning

Enebolig 310.2 m²

Etasje 1 310.2 m²

Rom Areal Vinduer Dører
Stue 101 35.2 m² 3 2
Kjøkken 102 18.5 m² 1 1
Spisestue 103 12.0 m² 1 1
Gang 104 8.5 m² 0 4
Bad 105 6.5 m² 1 1
Toalett 106 2.5 m² 0 1
Vaskerom 107 4.5 m² 1 1
Soverom 1 108 12.0 m² 2 1
Soverom 2 109 10.5 m² 1 1
Soverom 3 110 11.0 m² 1 1
Soverom 4 111 10.0 m² 1 1
Soverom 5 112 9.5 m² 1 1
Soverom 6 113 9.0 m² 1 1
Soverom 7 114 8.5 m² 1 1
Soverom 8 115 8.0 m² 1 1
Soverom 9 116 7.5 m² 1 1
Soverom 10 117 7.0 m² 1 1
Soverom 11 118 6.5 m² 1 1
Soverom 12 119 6.0 m² 1 1
Soverom 13 120 5.5 m² 1 1
Soverom 14 121 5.0 m² 1 1
Soverom 15 122 4.5 m² 1 1
Soverom 16 123 4.0 m² 1 1
Soverom 17 124 3.5 m² 1 1
Soverom 18 125 3.0 m² 1 1
Soverom 19 126 2.5 m² 1 1
Soverom 20 127 2.0 m² 1 1
Soverom 21 128 1.5 m² 1 1
Soverom 22 129 1.0 m² 1 1
Soverom 23 130 0.5 m² 1 1

Tilbygg 535.8 m²

Etasje 2 535.8 m²

Rom Areal Vinduer Dører
WC WC 3.2 m² 0 1
Dusj Dusj 2.5 m² 0 1
HC-WC HC-WC 8.9 m² 0 1
Kontor Kontor 14.3 m² 1 1
Kontor Kontor 13.1 m² 1 1
Spiserom Spiserom 51.1 m² 1 1
Komidor Komidor 26.1 m² 0 0

Fasader

Tilbygg

Nord
Materiale
Tre
Taktype
Flatt tak
Høyde
9.0 m
Vinduer
14
Dører
1
Synlige etasjer
2
Vest
Materiale
Tre
Taktype
Saltak
Høyde
9.0 m
Mønehøyde
14.2 m
Vinduer
8
Dører
0
Synlige etasjer
2
Sør
Materiale
Tre
Taktype
Flatt tak
Høyde
6.6 m
Vinduer
18
Dører
1
Synlige etasjer
1
Øst
Materiale
Tre
Taktype
Saltak
Høyde
6.6 m
Mønehøyde
14.2 m
Vinduer
14
Dører
1
Synlige etasjer
2

Hendelser

17.04.2026 Gbnr 282/75 - Ramstadløkka 1 - Oppføring av to tilbygg - Anmodning om uttalelse
17.04.2026 Gbnr 282/75 - Ramstadløkka 1 - Oppføring av to tilbygg - Bekreftelse på mottatt søknad
14.04.2026 Gbnr 282/75 - Ramstadløkka 1 - Rammesøknad - Oppføring av to tilbygg
31.03.2026 Gbnr 282/75 - Ramstadløkka 1 - Oppføring av to tilbygg - Merknader til nabovarsel