Extension Soeknad Naeringsbygg

Tilbygg og renovering av våningshus med gjestehus på Ripnes

📍 Ripnes

Nøkkelinfo

Sakstype
Tilbygg
Bygningstype
Naeringsbygg
Bruksareal
162 m²
Boenheter
1
Kommune
Bodø
Fylke
Nordland - Nordlánnda
Saksnummer
2026/9129
Fase
Søknad

Om byggesaken

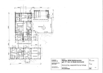
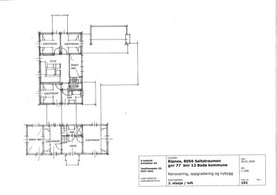
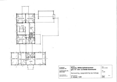
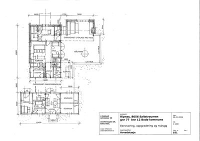
Prosjektet omfatter renovering og oppgradering av et eksisterende våningshus på eiendommen Ripnes, inkludert utbedring av fundament og justering av mønehøyde med ca. 30 cm for å oppnå tilfredsstillende innvendig takhøyde. Det bygges et tilbygg større enn 50 m² som inkluderer en overbygget uteplass med bålpanne. I tillegg oppføres et nytt mindre uthus/gjestehus som erstatning for tidligere fjøs, plassert inntrukket i terrenget med gavlen mot Straumen, tilpasset våningshusets karakter. Området får skrådrenering for å lede avrenning til en åpen bekk, og det planlegges tilrettelegging for honningproduksjon og stier for allmennheten. Adkomst skjer via kommunal vei med godkjent avkjørsel. Tiltaket inkluderer også innvendig våtromsarbeid i eksisterende bygg.

Produkter og materialer

Gulv Innvendige gulv

Oppgradering av gulv i våningshus og nytt bygg, detaljer ikke spesifisert

Innvendige gulv i tilbygg og eksisterende bygg

Terrasse Overbygget uteplass

🧱 Tre

Antall: 1

Overbygget uteplass mot nord med bålpanne, ca. 36 m²

Overbygget uteplass for uteaktiviteter og grilling

Fasade Trepanel kledning

🧱 Tre

Fasader mot sør, nord, øst og vest med trepanel, saltak

Trepanel kledning til fasader på tilbygg og ny bygning, tilpasset eksisterende våningshus

Elektro Elektriske installasjoner

Elektriske installasjoner i tilbygg og eksisterende bygg ikke detaljert spesifisert

Elektriske installasjoner for nytt og eksisterende bygg

Tak Saltak

🧱 Taktekking ikke spesifisert

Saltak på eksisterende og nye bygg

Saltak på tilbygg og nytt uthus/gjestehus, tilpasset eksisterende bygg

Grunnarbeid Fundament og drenering

Utbedring/etablering av nytt fundament, skrådrenering til åpen bekk

Fundamentering for våningshus og tilbygg, samt skrådrenering for avrenning

VVS Våtromsinstallasjoner

Innvendig våtromsarbeid i eksisterende bygg, installasjon av vannklosett

Oppgradering og renovering av våtrom med nye VVS-installasjoner

Isolasjon Isolasjon for nybygg og tilbygg

Isolasjon iht. TEK17 for nybygg og oppgradering av eksisterende bygg

Isolasjon for å oppnå krav til bokvalitet og energibruk

Maling Innvendig og utvendig maling

Maling av fasader og innvendige flater, ikke detaljert spesifisert

Maling for fasader og innvendige overflater

Vinduer Fasadevindu i tre

🧱 Tre

Antall: 14

Vinduer i fasader, antall 14 fordelt på ulike rom og etasjer

Nye og eksisterende fasadevinduer i tre til våningshus og tilbygg

Dører Ytterdører og terrassedører

🧱 Tre

Antall: 13

Ytterdører og dører til uteplass, totalt 13 dører i ulike bygg og etasjer

Ytterdører og dører til uteplass og mellom bygg, i tre

Tømrer Bygging av tilbygg og nytt uthus/gjestehus

🧱 Tre

Oppføring av tilbygg større enn 50 m² og nytt gjestehus/uthus

Tømrerarbeid for tilbygg og nytt bygg til erstatning for tidligere fjøs

Fasader

Eksisterende hovedhus

Nord
Materiale
Tre
Taktype
Saltak
Vinduer
4
Dører
0
Synlige etasjer
2
Sør
Materiale
Tre
Taktype
Saltak
Høyde
2.1 m
Vinduer
1
Dører
0
Synlige etasjer
2
Øst
Materiale
Tre
Taktype
Saltak
Vinduer
1
Dører
0
Synlige etasjer
1
Vest
Materiale
Tre
Taktype
Saltak
Høyde
4.2 m
Mønehøyde
6.2 m
Vinduer
4
Dører
1
Synlige etasjer
1

Hendelser

22.04.2026 Supplering av søknad - Ripnes
15.04.2026 Utsatt frist for levering av tilleggsdokumentasjon
25.03.2026 Foreløpig svar - behov for tilleggsdokumentasjon
24.03.2026 Anmodning om behandling etter jordloven
04.02.2026 Søknad om rammetillatelse - Ripnes
04.02.2026 Bekreftelse på mottatt søknad - Ripnes