Extension UnderBehandling Naeringsbygg

Riving og tilbygg av trelastlager på Semsveien 155, Asker

📍 Semsveien 155 , 1384 ASKER

Nøkkelinfo

Sakstype
Tilbygg
Bygningstype
Naeringsbygg
Bruksareal
1,600 m²
Kommune
Asker
Fylke
Akershus
Gnr / Bnr
20 / 10
Saksnummer
25/178
Fase
Under behandling

Om byggesaken

Prosjektet omfatter riving av fire eksisterende lagerbygg på til sammen ca. 1160 m² BYA og oppføring av et nytt trelastlager på ca. 1600 m² BYA med tilhørende lagerfunksjoner og kjelleretasje. Det nye bygget får flatt tak som en forlengelse av hovedbygningens tak og tilpasses eksisterende bygningsuttrykk med tilsvarende takvinkel og materialbruk. Kontordelen i øst beholdes uendret. Prosjektet inkluderer også midlertidig riggområde og lagringsplass på tilgrensende eiendom (Gnr/Bnr 20/30) for byggeperioden, med fiberduk og stabilisering av underlaget. Tiltaket er plassert innenfor Semsvannet landskapsvernområde og krever dispensasjon fra LNF-formålet for midlertidig lagring og rigg. Trafikkbelastningen forventes å forbli uendret, og tiltaket er i tråd med tidligere godkjent disposisjonsplan for Sem Bruk. Det er planlagt 98 parkeringsplasser, inkludert 5 HC-plasser. Brannsikkerhet ivaretas med sprinkleranlegg i det nye lageret. Prosjektet er i fase under behandling med supplerende dokumentasjon etter mangelbrev, og det foreligger tillatelse fra Statsforvalteren for tiltaket.

Produkter og materialer

Elektro El-rom og trafo

Antall: 2

El-rom og trafo i nytt bygg

Elektriske installasjoner

Fasade Tre kledning

🧱 tre

Materialbruk i samsvar med eksisterende bygg

Fasadematerialer for nytt tilbygg

VVS Sprinkleranlegg

Sprinkleranlegg i nytt lagerbygg for brannsikring

Brannsikkerhetssystem

Utendørs Parkeringsplasser

Antall: 98

Totalt 98 parkeringsplasser, inkludert 5 HC-plasser

Parkering for ansatte og besøkende

Tømrer Riving av bygg

Antall: 4

Riving av fire eksisterende lagerbygg på til sammen ca. 1160 m² BYA

Riving av eksisterende bygg

Bygningskomponenter Dører

🧱 tre/metall

Antall: 1

Dør til nytt tilbygg

Ytterdør til nytt tilbygg

Betong Kjelleretasje

🧱 betong

Kjelleretasje under nytt tilbygg

Betongkonstruksjon for kjeller

Bygningskomponenter Vinduer

🧱 tre/aluminium

Antall: 4

Nye vinduer med samme mål og stil som eksisterende vinduer

Vinduer til nytt tilbygg i trelastlageret

Trapper Innvendig trapp

Antall: 1

Trapperom i nytt bygg

Innvendig trapp for etasjeadkomst

Tak Flatt tak

🧱 ukjent

Antall: 1

Nytt flatt tak som forlengelse av eksisterende tak

Tak til nytt lagerbygg

Grunnarbeid Fiberduk og stabilisering

🧱 fiberduk, kult, pukk, subbus

Underlag for midlertidig rigg og lagringsplass på tilgrensende eiendom

Grunnarbeid for midlertidig rigg og lagring

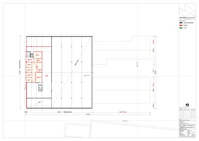
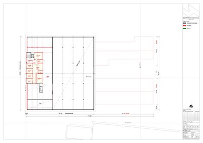
Plantegning

Søknad 170.8 m²

Etasje 1 0.0 m²

Rom Areal Vinduer Dører
Trapperom 101 0.0 m² 0 1
WC 102 0.0 m² 0 1
Gang 103 0.0 m² 0 1
Bod 104 0.0 m² 0 1
Vaskerom 105 0.0 m² 0 1
Lager 106 0.0 m² 0 1
Lager 107 0.0 m² 0 1
El-rom 108 0.0 m² 0 1
Trafo 109 0.0 m² 0 1
Vent.rom 110 0.0 m² 0 1

Etasje 0 170.8 m²

Rom Areal Vinduer Dører
trapperom 001 14.0 m² 0 2
hels 002 0.0 m² 0 1
garderobe 003 9.8 m² 0 1
torkerom 004 17.6 m² 0 1
dusj 005 7.0 m² 0 1
Hvile 006 22.8 m² 0 1
sprinklersentral 007 3.0 m² 0 1
Garderobe 008 45.5 m² 0 1
trening 009 46.2 m² 0 1
lager 010 2.9 m² 0 1
bk 011 7.0 m² 0 1

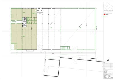
Uthus 179.8 m²

Etasje 0 179.8 m²

Rom Areal Vinduer Dører
Lager 001 179.8 m² 0 0

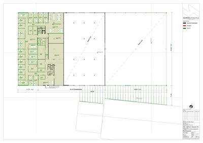
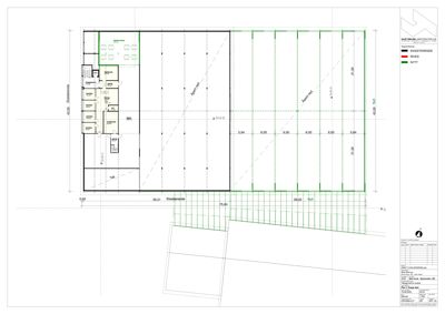
Sømsveien 155 1,292.5 m²

Etasje 2 1,044.0 m²

Rom Areal Vinduer Dører
Møterom 201 16.0 m² 0 1
Kontor 202 16.0 m² 1 1
Kontor 203 16.0 m² 1 1
Kontor 204 16.0 m² 1 1
Kontor 205 16.0 m² 1 1
Gang 206 30.0 m² 0 2
Sosial sone 207 38.0 m² 1 1
Print 208 15.0 m² 0 1
Gard 209 13.0 m² 0 1
Skap 210 7.0 m² 0 1
Hels 211 4.0 m² 0 1
Åpne kontorplasser 212 67.0 m² 2 1
Sosial sone 213 36.0 m² 1 1
Lager/arkiv 214 50.0 m² 1 1
Møterom 215 16.0 m² 0 1
Møterom 216 16.0 m² 0 1
Møterom 217 16.0 m² 0 1
Lager 218 35.0 m² 0 1
WC 219 5.0 m² 0 1
HC 220 6.0 m² 0 1
Kjøkken 221 12.0 m² 1 1
Trapperom 222 12.0 m² 0 1
HCWC 223 4.0 m² 0 1
Lager 224 21.0 m² 0 1
Gang 225 27.0 m² 0 2
Gang 226 16.0 m² 0 1
Lager 227 21.0 m² 0 1
Gang 228 16.0 m² 0 1
Arkiv 229 23.0 m² 0 1
Kontor 230 11.0 m² 1 1
Kontor 231 11.0 m² 1 1
Kontor 232 11.0 m² 1 1
Kontor 233 11.0 m² 1 1
Kontor 234 11.0 m² 1 1
Kontor 235 11.0 m² 1 1
Kontor 236 11.0 m² 1 1
Kontor 237 11.0 m² 1 1
Kontor 238 11.0 m² 1 1
Kontor 239 11.0 m² 1 1
Kontor 240 11.0 m² 1 1
Kontor 241 11.0 m² 1 1
Kontor 242 11.0 m² 1 1
Sosial sone 243 43.0 m² 1 1
Print 244 9.0 m² 0 1
Showroom 245 194.0 m² 2 1

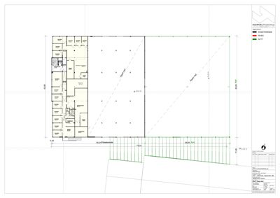
Etasje 3 248.5 m²

Rom Areal Vinduer Dører
Kontor 301 14.8 m² 1 1
Kontor 302 14.8 m² 1 1
Kontor 303 14.8 m² 1 1
Kontor 304 14.8 m² 1 1
Kontor 305 14.8 m² 1 1
Kontor 306 14.8 m² 1 1
Kontor 307 14.8 m² 1 1
Kontor 308 14.8 m² 1 1
Gang 309 5.9 m² 0 2
Print 310 6.7 m² 0 1
Arkiv 311 6.4 m² 0 1
Møterom 312 31.8 m² 1 1
Sosial sone 313 19.4 m² 1 1
Sosial sone 314 73.0 m² 1 1
Kjøkken 315 42.8 m² 1 1
Bevertning 316 107.7 m² 1 1
WC 317 5.6 m² 0 1
WC 318 6.0 m² 0 1
WC 319 6.1 m² 0 1
WC 320 5.9 m² 0 1
Garderobe 321 8.9 m² 0 1
Gang 322 5.8 m² 0 1
Lager 323 27.3 m² 0 1
Trapperom 324 13.3 m² 0 1
Heis 325 8.0 m² 0 1
Tak 326 0.0 m² 0 0
Takterrasse 327 94.3 m² 0 0

Fasader

Eksisterende

Vest
Materiale
Tre
Taktype
Saltak
Vinduer
12
Dører
1
Synlige etasjer
3
Øst
Materiale
Tre
Taktype
Saltak
Vinduer
6
Dører
1
Synlige etasjer
1
Sør
Materiale
Tre
Taktype
Flatt tak
Vinduer
10
Dører
1
Synlige etasjer
1
Nord
Materiale
Tre
Taktype
Flatt tak
Vinduer
12
Dører
2
Synlige etasjer
1

Hovedbygg

Ukjent
Taktype
Saltak
Høyde
6.9 m
Mønehøyde
8.6 m
Vinduer
4
Dører
2
Synlige etasjer
3

Tilbygg hall for trelast

Ukjent
Materiale
Tre
Taktype
Flatt tak
Høyde
3.4 m
Vinduer
0
Dører
1
Synlige etasjer
1

Hendelser

13.04.2026 20/10 Semsveien 155 - Ber om utsettelse av frist for oppdatering av dokumentasjon til søknad
09.04.2026 20/10 Semsveien 155 - Tilbakemelding på mottatt brev av 20.02.2026 fra ansv. søker og tilbakemelding etter internt møte den 16.02.2026.
20.02.2026 20/10 Semsveien 155 - Svar mangelbrev
17.02.2026 20/10 Semsveien 155 - Mangelbrev - Riving av bygg, tilbygg på eksisterende bygg og midlertidig lagring av varer
12.02.2026 20/10 Semsveien 155 - Foreløpig svar , info om status i saken
04.02.2026 20/10 Semsveien 155 - Info om status i saken - Riving av bygg, tilbygg på eksisterende bygg og midlertidig lagring av varer
04.02.2026 20/10 Semsveien 155 - Ansvarlig søker oversender brev fra Statsforvalteren vedrørende landskapsvernområdet - Riving av bygg, tilbygg på eksisterende bygg og midlertidig lagring av varer
09.01.2026 20/10 Semsveien 155 - (Kopi) E-postkorrespondanse vedrørende planspørsmål
07.01.2026 20/10 Semsveien 155 - Tilbakemelding på kommunens brev av 020126 med anmodning om informasjon
07.01.2026 20/10 Semsveien 155 - Ber om å sette videre behandling av saken i bero
07.01.2026 20/10 Semsveien 155 - Supplering av søknad
07.01.2026 20/10 Semsveien 155 - Etterspør rettelse av inngående jp. 39
06.01.2026 20/10 Semsveien 155 - Søknad om endring av gitt tillatelse
05.01.2026 20/10 Semsveien 155 - Riving av bygg, tilbygg på eksisterende bygg og midlertidig lagring av varer - Ber om informasjon om revidert prosjekt
02.01.2026 20/10 Semsveien 155 - (Kopi) Henvendelse til reguleringsplan vedr utvidet periode for disposisjonsplan
20.11.2025 20/10 Semsveien 155 - Svar på henvendelse om Arbeidstilsynets samtykke (kopi)
13.11.2025 20/10 Semsveien 155 - Oversender fra Statsforvalteren - Tillatelse til riving av bygg, tilbygg på eksisterende bygg og midlertidig lagring av varer - Semsvannet landskapsvernområde
15.09.2025 20/10 Semsveien 155 - Statsforvalterens nye uttalelse til søknad om dispensasjon
15.09.2025 20/10 Semsveien 155 - Oversender kopi av Statsforvalterens brev dat. 12.09.2025
11.09.2025 20/10 Semsveien 155 - Rammesøknad bes satt i bero
10.09.2025 20/10 Semsveien 155 - Saken settes i bero
09.09.2025 20/10 Semsveien 155 - Informasjon vedr. saksgang - Riving av bygg, tilbygg på eksisterende bygg og midlertidig lagring av varer
05.09.2025 20/10 Semsveien 155 - Statsforvalteren gir avslag på søknad om tilbygg på eksisterende bygg og midlertidig lagring av varer
27.08.2025 20/10 Semsveien 155 - (Kopi) Foreløpig svar fra Statsforvalteren
27.08.2025 20/10 Semsveien 155 - Avklaringer om fremdrift i saken
27.08.2025 20/10 Semsveien 155 - (Kopi) Ansvarlig søker purrer Statsforvalteren
19.08.2025 20/10 Semsveien 155 - Uttalelse til svarbrev om riving, tilbygg og midlertidig lager
11.07.2025 20/10 Semsveien 155 - Riving av bygg, tilbygg på eksisterende bygg mm - Svar på spørsmål tilknyttet saksbehandlingen
04.07.2025 20/10 Semsveien 155 - Kopi av brev sendt Akershus fylkeskommune og Statsforvalteren vedrørende søknad om riving av bygg, tilbygg på eksisterende bygg og midlertidig lagring av varer
04.07.2025 20/10 Semsveien 155 - Oversendelse av dokumentasjon til Statsforvalteren tilknyttet behandling etter landskapsvernforskriften
30.06.2025 20/10 Semsveien 155 - Spørsmål tilknyttet saksbehandlingen
30.06.2025 20/10 Semsveien 155 - Statsforvalterens foreløpige uttalelse
19.06.2025 20/10 Semsveien 155 - Riving av bygg, tilbygg på eksisterende bygg og midlertidig lagring av varer - Etterspør tilbakemelding fra Statsforvalteren og oppfølging fra ansvarlig søker
03.06.2025 20/10 Semsveien 155 - Arbeidstilsynet innvilger søknaden om samtykke (kopi)
03.06.2025 20/10 Semsveien 155 - Fylkeskommunens uttalelse til søknad om dispensasjon - Riving av bygg, tilbygg på eksisterende bygg og midlertidig lagring av varer
03.06.2025 20/10 Semsveien 155 - Statsforvalterens uttalelse til søknad om dispensasjon for midlertidig riggområde og lagring av varer
16.05.2025 20/10 Semsveien 155 - Tilleggsdokumenter til oversendt anmodning om behandling og uttalelse - Riving av bygg, tilbygg på eksisterende bygg og midlertidig lagring av varer
13.05.2025 20/10 Semsveien 155 - Supplering av søknad
09.05.2025 20/10 Semsveien 155 - Anmodning om behandling og uttalelse - Riving av bygg, tilbygg på eksisterende bygg og midlertidig lagring av varer
09.05.2025 20/10 Semsveien 155 - Spørsmål til anmodning om uttalelse fra Statsforvalteren når det allerede foreligger
09.05.2025 20/10 Semsveien 155 - Tilleggsdokumentasjon oversendes Statsforvalteren og fylkeskommunen
08.05.2025 20/10 Semsveien 155 - Spørsmål om behov for oversendelse til Statsforvalter
07.05.2025 20/10 Semsveien 155 - Ber om tilbakemelding
07.05.2025 20/10 Semsveien 155 - Purring på tildeling av saksbehandler
02.05.2025 20/10 - Semsveien 155 - Ber om tildeling av saksbehandler
25.04.2025 20/10 - Semsveien 155 - Ber om status i saken
19.03.2025 20/10 - Semsveien 155 - Ber om status i saken
21.01.2025 20/10 - Semsveien 155 - Søknad om riving av bygg, tilbygg på eksisterende bygg og midlertidig lagring av varer