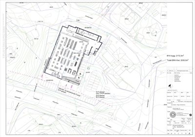
Facade
Bildet viser fasadetegninger for en bygning sett fra fire sider (Sør, Øst, Nord, Vest).
1 / 38
Extension
Rammetillatelse
Naeringsbygg
Tilbygg og fasadeendring på Kiwi-butikk i Smedsvingen 4
📍 Smedsvingen 4 , 1395 HVALSTAD
Nøkkelinfo
- Sakstype
- Tilbygg
- Bygningstype
- Naeringsbygg
- Bruksareal
- 2,035 m²
- Kommune
- Asker
- Fylke
- Akershus
- Gnr / Bnr
- 28 / 298
- Saksnummer
- 25/202
- Fase
- Rammetillatelse
Om byggesaken
Utvidelse av eksisterende Kiwi-forretning med 978,9 m² BRA, som vil øke det totale arealet til 2035 m². Tiltaket inkluderer riving av en eksisterende bensinstasjon og tilhørende kiosk for å gi plass til utvidelsen. Det planlegges også forbedringer av parkeringsarealet, med totalt 55 parkeringsplasser, inkludert tilpassede plasser for HC. Fasader vil bli oppdatert for å reflektere den nye utformingen av butikken.
Produkter og materialer
Grunnarbeid
Riving
Antall: 1
Riving av eksisterende bensinstasjon
Riving av bensinstasjon for å gi plass til utvidelse
Parkering
Parkeringsplasser
Antall: 55
Inkluderer 2 HC-plasser
Oppgradering av parkeringsareal
VVS
Sanitærinstallasjoner
Antall: 1
Installasjon av sanitærutstyr i ny utvidelse
Fasade
Fasader ny
Antall: 1
Fasader oppdatert i henhold til nye tegninger
Oppdatering av fasader for utvidet butikk
Tak
Flatt tak
Antall: 1
Flatt tak for ny utvidelse
Installasjon av nytt flatt tak over utvidelsen
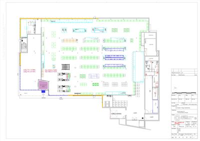
Plantegning
Smedsvingen 2-4 1,000.0 m²
Etasje 1 1,000.0 m²
| Rom | Areal | Vinduer | Dører |
|---|---|---|---|
| Hovedhall 101 | 650.0 m² | 0 | 0 |
| Kontor 102 | 25.0 m² | 1 | 1 |
| Vaskerom 103 | 15.0 m² | 0 | 1 |
| Toalett 104 | 10.0 m² | 0 | 1 |
| Lager 105 | 150.0 m² | 0 | 1 |
| Varelevering 106 | 60.0 m² | 1 | 1 |
| Toalett 107 | 0.0 m² | 0 | 1 |
| Vaskerom 108 | 0.0 m² | 0 | 1 |
| Frys 109 | 0.0 m² | 0 | 1 |
| Inngang 110 | 0.0 m² | 0 | 1 |
| Trapperom 111 | 0.0 m² | 0 | 1 |
Fasader
Kiwi Hvalstad
Sør
- Materiale
- Mur
- Taktype
- Flatt tak
- Høyde
- 12.0 m
- Vinduer
- 19
- Dører
- 1
- Synlige etasjer
- 2
Øst
- Materiale
- Mur
- Taktype
- Flatt tak
- Høyde
- 4.3 m
- Vinduer
- 24
- Dører
- 1
- Synlige etasjer
- 2
Nord
- Materiale
- Mur
- Taktype
- Flatt tak
- Høyde
- 12.0 m
- Vinduer
- 18
- Dører
- 3
- Synlige etasjer
- 2
Vest
- Materiale
- Mur
- Taktype
- Flatt tak
- Høyde
- 12.0 m
- Vinduer
- 20
- Dører
- 1
- Synlige etasjer
- 2
Syd
- Materiale
- Mur
- Høyde
- 4.3 m
- Vinduer
- 19
- Dører
- 1
- Synlige etasjer
- 2
Hendelser
08.04.2026
28/298 Smedsvingen 4 - Søknad om endring av gitt tillatelse
28.08.2025
28/298 Smedsvingen 4 - Rammetillatelse for utvidelse av Kiwi Hvalstad og dispensasjon fra plankrav
27.08.2025
28/298 - Uttalelse fra vann- og avløpsetaten (VOV)
30.05.2025
28/298 - Smedsvingen 4 / Kiwi Hvalstad - Trafikkanalyse / vurdering av trafikkpåvirkning
30.04.2025
28/298 - Smedsvingen 4 / Kiwi Hvalstad - Tilbakemelding til kommunens svar på søknad om tilbygg og fasadendring
07.03.2025
28/298 Smedsvingen 4 - Tilbakemelding på søknad om tilbygg og fasadeendring
21.01.2025
28/298 - Smedsvingen 4 / Kiwi Hvalstad - Søknad om tilbygg og fasadeendring med dispensasjon næringsbygg