Extension Soeknad Naeringsbygg

Tilbygg på næringsbygg i Solgaard skog 132, Moss

📍 Solgaard skog 132 , 1599 MOSS

Nøkkelinfo

Sakstype
Tilbygg
Bygningstype
Naeringsbygg
Bruksareal
3,000 m²
Kommune
Moss
Fylke
Østfold
Gnr / Bnr
3 / 2178
Saksnummer
2026/2720
Fase
Søknad

Om byggesaken

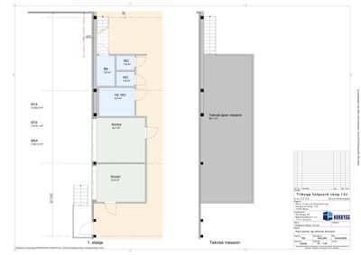
Nybygg av tilbygg på ca. 3 000 m² til eksisterende industribygg i Solgaard skog 132, Moss. Tilbygget inkluderer produksjonsareal, kontorer og teknisk mesanin over to etasjer med totalt bruksareal på ca. 2 921 m² og bebygd areal på ca. 3 035 m². Bygget har flatt tak og betongfasader med flere vinduer og dører, samt garasjeporter på fasadene mot nord og vest. Interiøret omfatter kontorrom, HC WC, flere vanlige WC, teknisk rom og mange like store soverom på 15 m² hver. Bygget er planlagt med en teknisk åpen mesanin på 50,1 m² i andre etasje. Prosjektet inkluderer også terrengarbeider, lastehus og tilrettelegging for overvannshåndtering i tråd med lokale krav.

Produkter og materialer

Vinduer Fasadevindu

Antall: 64

Vinduer fordelt på fasader, totalt 64 vinduer i kontor og soverom

Fasadevindu i betongfasade, inkludert kontor- og soveromsrom

Elektro Teknisk installasjon

Teknisk mesanin og kontorarealer krever elektroinstallasjoner

Elektroinstallasjoner for kontor, teknisk mesanin og produksjonsareal

Dører Ytterdører og innerdører

Antall: 74

Dører i kontorer, WC, soverom og fasade, totalt 74 dører

Ytterdører og innerdører i tilbygg

Grunnarbeid Terrengarbeid og overvannshåndtering

Overvann føres til terreng/sluk og videre til grøntområde, krav om lokal overvannsdisponering (LOD)

Terrengarbeid og overvannshåndtering i henhold til kommuneplan og overvannsnorm

Fasade Betongfasade

🧱 Betong

Fasader mot sør, øst, nord og vest med betongmateriale og flatt tak

Betongfasader med flatt tak på tilbygg

Tømrer Bygningskonstruksjon

Tømrerarbeid for oppføring av tilbyggets konstruksjon og innredning

Isolasjon Bygningsisolasjon

Isolasjon for fasade og tak i henhold til gjeldende byggeforskrifter

Trapper Innvendig trapp

Antall: 1

En innvendig trapp til teknisk mesanin

Innvendig trapp til teknisk mesanin i andre etasje

Tak Flatt tak

Flatt tak på tilbygg

Flatt tak på tilbyggsbygget

Maling Innvendig og utvendig maling

Maling av fasader og innvendige overflater

VVS Sanitæranlegg og stikkledninger

Nye stikkledninger og sanitæranmeldelse kreves, rørlegger skal sende søknad

VVS-installasjoner inkludert sanitær og vann- og avløpsledninger

Fasader

Solgaard Skog 132

Vest
Materiale
Betong
Taktype
Flatt tak
Vinduer
4
Dører
2
Synlige etasjer
2
Nord
Materiale
Betong
Taktype
Flatt tak
Vinduer
10
Dører
1
Synlige etasjer
2

Hendelser

17.04.2026 Solgaard skog 132 - 3/2178 - forhåndskonferanse - oppføring av tilbygg
07.04.2026 Solgaard skog 132 - 3/2178 - anmodning om forhåndskonferanse 16.04.2026