Extension Igangsettingstillatelse Naeringsbygg

Nytt servicebygg med kafé og 10 leiligheter i Sørsidevegen 39, Skjolden

📍 Sørsidevegen 37 , 6876 SKJOLDEN

Nøkkelinfo

Sakstype
Tilbygg
Bygningstype
Naeringsbygg
Bruksareal
656 m²
Boenheter
10
Kommune
Luster
Fylke
Vestland
Gnr / Bnr
17 / 15
Saksnummer
2022/4837
Fase
Igangsettingstillatelse

Om byggesaken

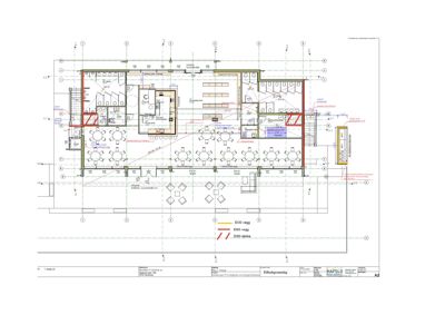
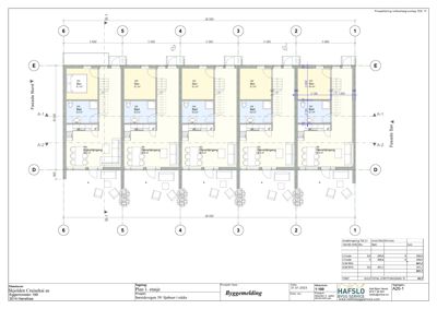
Prosjektet omfatter oppføring av et nytt to-etasjes bygg på Hydrokaien i Skjolden, som inkluderer kafé, suvenirbutikk i første etasje og 10 utleieleiligheter i andre etasje. Bygget har saltak med tegl taktekking og fasader i tre, tilpasset lokal byggeskikk. Det er planlagt uteområder med treplatting mot fjorden og parkeringsplasser i tilknytning til bygget. Eksisterende kran og kranhus på tomten rives for å gi plass til nybygg og forbedre området for turisme. Bygget er plassert innenfor reguleringsplanens rammer med dispensasjon for mindre avvik, og har godkjente løsninger for brannsikkerhet, ventilasjon, sanitær og elektro. Prosjektet har gjennomgått nabovarsling og fått godkjenning fra relevante myndigheter, inkludert Arbeidstilsynet.

Produkter og materialer

Fasade Trepanel

🧱 Malt trepanel

Kledning i hvit, stående panel, tilpasset lokal byggeskikk

Ytterkledning i tre med god estetikk og holdbarhet

Rekkverk Glassrekkverk

🧱 Glass og metall

Antall: 5

Glassrekkverk på balkonger med sjøutsikt

Rekkverk for balkonger i glass for utsikt og sikkerhet

Betong Fundament og kaidekke

🧱 Betong

Betongfundament for pullerter, kaidekke og ringmur

Fundamentering og kaidekke i betong for stabilitet

Ventilasjon Ventilasjonsanlegg

Ventilasjonsanlegg for servicebygg og leiligheter

Ventilasjon med luft-til-luft varmepumper og aggregater

Terrasse Treplatting

🧱 Impregnert tre

Treplatting på uteområde mot fjorden

Oppgradering av uteareal med terrasse i tre

Mur Natursteinsmur

🧱 Naturstein

Vertikal natursteinsmur ved fylling i sjøen

Mur for avslutning av fyllingskant i sjø

Tak Saltak med teglstein

🧱 Betongtakstein

Antall: 1

Saltak med Skarpnes betongtakstein, snøfangere og lufting

Taktekking med betongtakstein for holdbarhet og estetikk

Dører Ytterdører og balkongdører

🧱 Tre med glassfelt

Antall: 15

Ytterdører til kafé, suvenirbutikk og leiligheter, samt balkongdører

Dører med glassfelt for lysinnslipp og estetikk

Varmepumpe Luft-til-luft varmepumpe

Luft/luft varmepumpe installert i bygget

Oppvarming og kjøling av bygget

Maling Utvendig maling

🧱 Maling for trepanel

Maling av ytterkledning i godkjent farge

Overflatebehandling for holdbarhet og estetikk

Tømrer Bindingsverk og kledning

🧱 Tre

Bindingsverk 48x98 mm, kledning stående panel

Tømrerarbeid for bærende konstruksjoner og fasade

Solceller Ingen spesifikke opplysninger

Ingen dokumenterte behov for solcelleanlegg

VVS Sanitærinstallasjon

Sanitærinstallasjoner for kafé, butikk og leiligheter

Vann og avløpsinstallasjoner i henhold til offentlige krav

Elektro Brannalarm og ledelys

Brannalarmanlegg kategori 2 med alarmoverføring, optiske alarmorganer i 1. etasje

Elektriske installasjoner for brannsikkerhet og belysning

Grunnarbeid Graving, komprimering og drenering

Grunnarbeider for fundamentering og drenering

Forberedelse av byggegrunn med komprimering og drenering

Trapper Innvendig trapp

🧱 Tre og metall

Antall: 2

Innvendige trapper til 2. etasje leiligheter

Trapper med brannsikring og estetisk utførelse

Gulv Parkett og fliser

🧱 Parkett 13 mm, fliser 20x600 mm

Parkett i leiligheter, fliser i veranda og fellesarealer

Gulvbelegg tilpasset bruk og estetikk

Vinduer Fasadevindu

🧱 Tre/aluminium

Antall: 10

Vinduer i servicebygg og leiligheter, inkludert balkongvinduer

Fasadevinduer i tre med glass, tilpasset byggets arkitektur

Fasader

Sjøbu

Aust
Materiale
Tre
Taktype
Saltak
Takmat.
Tegl
Vinduer
10
Dører
5
Synlige etasjer
2
Vest
Materiale
Tre
Taktype
Saltak
Vinduer
10
Dører
5
Balkonger
5
Synlige etasjer
2
Nord
Materiale
Tre
Taktype
Flatt tak
Takmat.
Tegl
Vinduer
1
Dører
0
Synlige etasjer
1
Sør
Materiale
Tre
Taktype
Flatt tak
Takmat.
Tegl
Vinduer
1
Dører
0
Synlige etasjer
1

Hendelser

17.04.2026 Fakturagrunnlag - Gbnr. 17/15 - Sørsidevegen 39 - bygg med kafé, souvenirbutikk og 10 utleigeleilegheiter
17.04.2026 Dokumentsjekk - ikkje behov for mangelbrev
17.04.2026 Mellombels bruksløyve - Skjolden cruisekai - bygg med kafé, suvenirbutikk og 10 leilegheiter for utleige - gbnr. 17/15
17.04.2026 Korrespondanse - avklaring av kva som er omfatta av søknaden om mellombels bruksløyve - Kafébygg, souvenirbutikk og 10 utleigeleilegheiter
15.04.2026 Søknad om midlertidig bruksløyve - gbnr. 17/15 - Sørsidevegen 39
13.04.2026 Supplering av søknad - gbnr. 17/15 - Sørsidevegen 39
11.07.2025 Tilsynsrapport - Sørsidevegen 39 - gbnr. 17/15
03.06.2025 Igangsettingsløyve - Gbnr. 17/15- Sørsidevegen 39 - Bygging av bygg med kafé, suvenirbutikk og 10 leilegheiter for utleige
03.06.2025 Fakturagrunnlag - Gbnr. 17/15 - Sørsidevegen 39 - Bygging av sjøboder - riving av eksisterande kran for oppføring av 5 sjøbodar
28.05.2025 Fakturagrunnlag - endring av rammeløyve - gbnr. 17/15 - Sørsidevegen 39 - kafé og suvenirbutikk i 1. etasje og 10 leilegheiter for utleige i 2. etasje
28.05.2025 Endringsvedtak - endring av gitt rammeløyve - Gbnr. 17/15 - Sørsidevegen 39 - etablering av butikk i 1. etasje og 10 utleigeleilegheiter i 2. etasje - auke høgda på bygget med 1,5 meter
28.05.2025 Søknad om igangsetjingsløyve - gbnr. 17/15 - Sørsidevegen 39 - servicebygg og leiligheiter Hydrokaien
23.05.2025 Kopi av merknad til nabovarsel - Sørsidevegen 39 - nytt service- og leilighetsbygg på Skjolden brygge
21.05.2025 Kopi av brev - uttale frå Vestland fylkeskommune - kombinert service- og leilegheitsbygg - Skjolden cruisekai - gbnr. 17/15
13.05.2025 Tiltak på gbnr. 17/15 - Hydrokaien i Skjolden - plassering av bygg i forhold til eksisterande vass- og kloakkleidning
13.05.2025 Oppdatert situasjonsplan - Skjolden Cruisekai - Endringar etter oppmåling på tomt - kombinert servicebygg og leilegheiter - Sørsidevegen 39 - gbnr 17/15
09.05.2025 Søknad til Vestland fylkeskommune: Skjolden Cruisekai - Endringar og søknad om dispensasjon frå veglova - kombinert servicebygg og leilegheiter - Sørsidevegen 39 - gbnr. 17/15
24.04.2025 Korrespondanse - søknad om endring av rammeløyve - Skjolden cruisekai - etablering av suvenirbutikk mm - kommunen avventar tilbakemelding frå Vestland fylkeskommune
22.04.2025 Me innvilgar søknaden om samtykke etter automatisk sakshandsaming
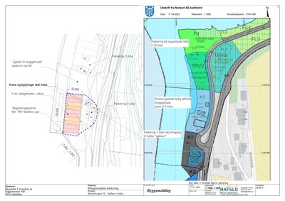
11.04.2025 Illustrasjon som syner parkeringsareal på F1 og F2 - gbnr. 17/15 - Sørsidevegen 39 - Nytt service og leilighetsbygg på Skjolden brygge
04.03.2025 Kopi av brev - svar på nabomerknad - gbnr. 17/15 - Sørsidevegen 39
18.02.2025 Søknad om endring av gitt løyve - gbnr. 17/15 - Sørsidevegen 39
13.02.2025 Kopi av brev - Merknad til nabovarsel - kombinert servicebygg og leilegheitsbygg - gbnr. 17/15 - Skjolden
31.01.2025 Stadfesting på motteken endring av ansvarsrett - riving av kran - hydrokaien i Skjolden
30.01.2025 Supplering av søknad - gbnr. 17/15 - Hydrokaien i Skjolden
20.06.2023 Fakturagrunnlag - Gbnr. 17/15 - Sørsidevegen 39 - Bygging av sjøboder - riving av eksisterande kran for oppføring av 5 sjøbodar
20.06.2023 Rammeløyve - Gbnr. 17/15 - Sørsidevegen 39 - riving av eksisterande kran for oppføring av 5 sjøbodar - igangsettingsløyve til riving av eksisterande kran og tilhøyrande bygningar
19.06.2023 Oppdatert situasjonsplan med 5 parkeringsplassar innanfor planområde TRV1 - byggesak som gjeld rammeløyve for bygging av 5 sjøbodar - Skjolden cruisekai - gbnr. 17/15
15.06.2023 Ny situasjonsplan med tre parkeringsplassar i planområde TRV1 - korrespondanse om vidare saksgang - byggesak som gjeld 5 sjøbodar - Skjolden cruisekai
15.06.2023 Oppdatert situasjonsplan - leilegheitsbygg Skjolden cruisekai - flytting av bygg utafor reguleringsplangrenser
24.05.2023 Referat frå Teamsmøte 12.05.2023 som gjaldt bygging av sjøbodar - Skjolden cruisekai
17.04.2023 Oppdatert situasjonsplan som syner parkering - søknad om riving av kran og kranhus og bygging av 5 sjøbodar - Skjolden cruisekai - gbnr. 17/15
23.03.2023 Søknad om tiltak på gbnr. 17/15 - Hydrokaien i Skjolden - Bygging av sjøboder
22.11.2022 Korrespondanse - tilbakemelding på spørsmål om førehandskonferanse - Skjolden brygge
16.09.2022 Notat etter telefonsamtale med Hafslo bygg service 15.09.2022 - ønskje om førehandskonferanse i byggesak
15.09.2022 Vedrørande plankrav - bygging av sjøboder på Hydrokaien i Skjolden
15.09.2022 Svar - søknad om tiltak - teikningar i samband med førehandskonferanse - bygging av sjøboder på Hydrokaien i Skjolden
12.09.2022 Søknad om tiltak - teikningar i samband med førehandskonferanse - bygging av sjøboder på Hydrokaien i Skjolden