Extension Igangsettingstillatelse Naeringsbygg

Nytt tilbygg for bilforretning med riving i Stabburveien 6, Fredrikstad

๐Ÿ“ Stabburveien 6 , 1617 FREDRIKSTAD

Nรธkkelinfo

Sakstype
Tilbygg
Bygningstype
Naeringsbygg
Bruksareal
1,450 mยฒ
Kommune
Fredrikstad
Fylke
Østfold
Gnr / Bnr
201 / 120
Saksnummer
2025/10839
Fase
Igangsettingstillatelse

Om byggesaken

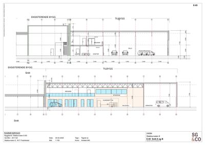
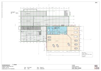
Nytt tilbygg på ca. 1450 m² BRA, inkludert mesanin på 250 m², oppføres som en del av bilforretningen i Stabburveien 6. Tilbygget består av stålbygg med grå fasadeplater og store vindusfelt mot Stabburveien, og inneholder salgsareal, verksted og personalrom. Deler av eksisterende bygning rives, inkludert vaskehall og takoverbygg. Utomhusplanen viser parkeringsarealer med 40 kundearbeidsplasser, 20 ansatteplasser, 20 lagringsplasser tilknyttet verkstedet, 6-8 midlertidige utstillingsplasser og 60 sykkelplasser, hvorav 15 under tak. Bygget er tilknyttet fjernvarme, og det er gjennomført miljøkartlegging og miljøsanering i forbindelse med riving. Tiltaket inkluderer også ny avkjørsel for bedre logistikk og trafikkavvikling. Bygget er ett-etasjes med flatt tak og platemontasje på fasadene.

Produkter og materialer

Solceller Ingen opplysninger

Ingen solcelleanlegg oppgitt

Stål Bærende stålkonstruksjoner

๐Ÿงฑ Stål

Stålramme og takbæring for nytt tilbygg

Stålkonstruksjoner for bæresystem

Grunnarbeid Ny avkjørsel

Antall: 1

Ny avkjørsel for bedre logistikk og trafikkavvikling

Grunnarbeid for ny avkjørsel

Garasjeport Porter i vaskehall og vegg under takoverbygg

Antall: 3

Porter ønskes gjenbrukt, kan inneholde miljøfarlige stoffer

Garasjeporter for verksted og vaskehall

Riving Miljøsanering og riving

Riving av ca. 330 m² vaskehall og takoverbygg, miljøkartlegging utført

Riving og miljøsanering av eksisterende bygningsdeler

Betong Plasstøpte betongkonstruksjoner

Fundamenter og betonggulv for nytt tilbygg

Betongarbeider for fundamenter og gulv

Løfteinnretninger Løfteplattform

Antall: 1

Løfteplattform installert i bygget

Løfteinnretning for tilgjengelighet

VVS Sanitærinstallasjoner, vann- og avløpsanlegg, varme- og kuldeinstallasjoner

Sanitær, vann, avløp og varmeinstallasjoner for nytt bygg

VVS-installasjoner for nytt tilbygg

Grunnarbeid Veg- og grunnarbeider, landskapsutforming

Grunnarbeider for nytt tilbygg og utearealer

Grunnarbeider og landskapsutforming

Balkong Ingen balkonger

Antall: 0

Ingen balkonger i prosjektet

Vinduer Store fasadevindu

Antall: 14

Store vindusfelt mot Stabburveien

Vinduer for salgsareal og kontorer

Maling Innvendig og utvendig maling

Maling av fasadeplater og innvendige flater

Maling og overflatebehandling

Dører Ytterdører

Antall: 3

Ytterdører i fasade øst og nord

Ytterdører for inngang og verksted

Ventilasjon Ventilasjon- og klimainstallasjoner

Ventilasjonssystem med prosessavsug for verksted

Ventilasjon og klimainstallasjoner

Trapper Innvendig trapp

Antall: 1

Trapp til mesanin

Innvendig trapp til mesanin

Pipe Ingen opplysninger

Ingen pipe oppgitt

Elektro Brannalarm og ledelyssystem

Brannalarm og ledelyssystem installert

Elektroinstallasjoner for brann og ledelys

Tak Flatt tak

Flatt tak på nytt tilbygg med sandwich elementer

Taktekking for nytt tilbygg

Tømrer Innvendig tømrerarbeid og montering av trekonstruksjoner

๐Ÿงฑ Tre

Innvendige trekonstruksjoner og tømrerarbeid

Innvendig tømrerarbeid

Fasade Platemontasje

๐Ÿงฑ Grå fasadeplater

Stålbygg med grå fasadeplater og store vindusfelt mot Stabburveien

Fasadeplater for yttervegger på nytt tilbygg

Fasader

Hovedbygg

Vest
Materiale
Platemontasje
Taktype
Flatt tak
Vinduer
2
Dรธrer
1
Synlige etasjer
1
Nord
Materiale
Platemontasje
Taktype
Flatt tak
Vinduer
0
Dรธrer
1
Synlige etasjer
1
Øst
Materiale
Platemontasje
Taktype
Flatt tak
Vinduer
14
Dรธrer
3
Synlige etasjer
1

Hendelser

16.04.2026 Igangsettingstillatelse - Oppføring av nytt tilbygg for etablering av bilforretning - Stabburveien 6 - Eiendom 201/120
15.04.2026 Søknad om igangsettingstillatelse - Stabburveien 6 - Eiendom 201/120
15.04.2026 Stabburveien 6 - Ber om tilleggsdokumentasjon
15.04.2026 Supplering av søknad - eiendom 201/120 - Stabburveien 6
19.03.2026 Ber om tilleggsdokumentasjon - Oppføring av nytt tilbygg for etablering av bilforretning - Stabburveien 6 - Eiendom 201/120
18.03.2026 Endring - Stabburveien 6 - Eiendom 201/120 - Søknad om ny avkjørsel
14.10.2025 Igangsettingstillatelse trinn 2- Oppføring av nytt tilbygg for etablering av bilforretning - Stabburveien 6 - Eiendom 201/120
13.10.2025 Søknad om igangsettingstillatelse - Stabburveien 6 - Eiendom 201/120
09.09.2025 Igangsettingstillatelse trinn 1 - Oppføring av nytt tilbygg for etablering av bilforretning - Stabburveien 6 - Eiendom 201/120
08.09.2025 Supplering av søknad - eiendom 201/120 - Stabburveien 6
02.09.2025 Stabburveien - vedrørende manglende dokumentasjon
02.09.2025 Svar angående manglende dokumentasjon - Stabburveien
01.09.2025 Mangelfull søknad - Oppføring av nytt tilbygg for etablering av bilforretning - Stabburveien 6 - Eiendom 201/120
01.09.2025 Søknad om igangsettingstillatelse - Stabburveien 6 - Eiendom 201/120
24.06.2025 Saksprotokoll - planutvalgets sak 53/25 - Stabburveien 6 - Oppføring av nytt tilbygg for etablering av bilforretning
24.06.2025 Orientering om vedtak - Oppføring av nytt tilbygg for etablering av bilforretning - Stabburveien 6 - Eiendom 201/120
10.06.2025 Stabburveien 6 - Oppføring av nytt tilbygg for etablering av bilforretning
27.05.2025 Uttalelse - Oppføring av nytt tilbygg for etablering av bilforretning - Stabburveien 6 - Eiendom 201/120
20.05.2025 Stabburveien 6 - Eiendom 201/120 - Oppføring av nytt tilbygg for etablering av bilforretning - uttalelse Teknisk forvaltning - Kommunalteknikk
14.05.2025 Kopi: Vi innvilger søknaden om samtykke - Stabburveien 6
14.05.2025 Uttalelse til søknad om dispensasjon for oppføring av nytt tilbygg for etablering av bilforretning - eiendom 201/120
07.05.2025 Anmodning om uttalelse - Oppføring av nytt tilbygg for etablering av bilforretning - Stabburveien 6 - Eiendom 201/120
07.05.2025 Supplering av søknad - Eiendom 201/120 - Stabburveien 6
07.05.2025 Ber om tilleggsdokumentasjon - Oppføring av nytt tilbygg for etablering av bilforretning - Stabburveien 6 - Eiendom 201/120
07.05.2025 Anmodning om uttalelse - Oppføring av nytt tilbygg for etablering av bilforretning - Stabburveien 6 - Eiendom 201/120
22.04.2025 Kopi: Vi gir fristutsettelse