Extension Soeknad Naeringsbygg

Tilbygg og fasadeendring på næringsbygg i Stasjonsgata 32, Spydeberg

📍 Stasjonsgata 32 , 1820 SPYDEBERG

Nøkkelinfo

Sakstype
Tilbygg
Bygningstype
Naeringsbygg
Bruksareal
1,089 m²
Kommune
Indre Østfold
Fylke
Østfold
Gnr / Bnr
426 / 24
Saksnummer
2026/2855
Fase
Søknad

Om byggesaken

Ny utvidelse av eksisterende forretningsbygg i Stasjonsgata 32 med tilbygg på til sammen ca. 622 m², inkludert utvidelse av Kiwi og Europris butikker i 1. etasje samt lagerutvidelse. Tilbygget er en forlengelse mot sør og øst med stående malt trekledning og pusset fasade, tilpasset eksisterende bygg og kommunens fargekrav. Det gjennomføres også riving av deler av et tidligere kontorbygg tilknyttet Telenorsentralen, som delvis bevares etter dispensasjon. Utomhusplanen inkluderer 60 parkeringsplasser, sykkelparkering, universell utforming med ramper og trapper, samt grøntarealer. Overvannshåndtering forbedres med permeable dekker og infiltrasjonsløsninger. Bygget har et samlet areal på ca. 1089 m² i 1. etasje, med 3 trapper og flere funksjonsrom som lager, kontor og toaletter.

Produkter og materialer

Vinduer Vindusfelt med innvendig vindfang

Vindusfelt på sør- og østfasade ved Kiwi inngang

Nye vindusfelt for inngangspartier

Tømrer Tømrerarbeid og trekonstruksjoner

🧱 Trekonstruksjoner

Tømrerarbeid for tilbygg og fasadeendringer

Tømrerarbeid knyttet til tilbygg og fasadeendring

Tak Takoverbygg ved inngang

Antall: 1

Takoverbygg over inngangspartier

Takoverbygg for inngangspartier til Kiwi

Elektro Belysning utendørs

Planlagt belysning iht. TEK17, detaljert plassering utarbeides i detaljprosjektering

Utendørs belysning for parkerings- og gangarealer

Fasade Stående trekledning og sandwichpanel

🧱 Tre, malt gul farge iht. kommunens fargekode

Fasadekledning males i samme farge som eksisterende bygg med justert kulørstyrke

Fasadeendring med stående malt trekledning og pusset fasade tilpasset eksisterende bygg

VVS Overvannshåndtering

🧱 Permeable dekker, infiltrasjonsgrøfter, sandfang

Permeable flater på parkering, infiltrasjonsgrøft, sandfang, lokal infiltrasjon og fordrøyning

System for håndtering av overvann med permeable flater og infiltrasjon

Grunnarbeid Riving og grunnarbeid for parkeringsplass

Riving av deler av Telenorsentralens kontordel, opparbeidelse av 60 parkeringsplasser inkl. 3 HC-plasser

Riving og opparbeidelse av parkeringsarealer

Dører Porter og inngangsdører

Antall: 5

Tre eksisterende porter gjenbrukes, ny port og inngangsdør til lager for ansatte

Porter for Europris utesalgsområde og lagerinngang for Kiwi

Terrasse Sykkelparkering og gangarealer

🧱 Belegningsstein, grusdekker, asfalt

Antall: 18

Sykkelparkering for 18 sykler, trafikksikker gangstruktur med belegningsstein

Utomhusplan med sykkelparkering og gangveier

Maling Fasademaling

🧱 Maling tilpasset kommunens fargekrav

Maling av stående trekledning i gul farge med justert kulørstyrke

Maling av fasadepanel

Betong Bærende konstruksjoner

🧱 Betong og metallkonstruksjoner

Montering av bærende metall- eller betongkonstruksjoner for tilbygg

Bærende konstruksjoner for tilbygg på næringsbygg

Trapper Utvendig trapp og ramper

Antall: 1

Trapp opp til inngangspartiet fra parkering, ramper for universell utforming

Adkomsttrapp og ramper til butikkinnganger

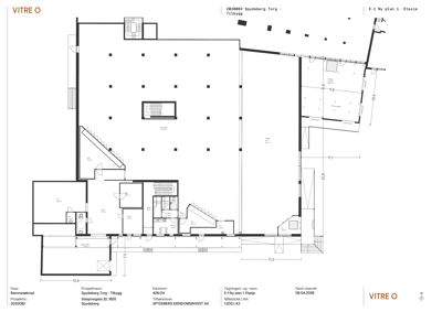
Plantegning

E-1 1,088.6 m²

Etasje 1 1,088.6 m²

Rom Areal Vinduer Dører
Eks. butikk 101 878.2 m² 0 0
Kjøp 102 43.6 m² 0 1
TR 103 69.7 m² 0 1
BK 104 5.4 m² 0 0
Lager 105 17.1 m² 0 1
Kontor 106 17.8 m² 0 1
Gang 107 30.0 m² 0 0
Garderobe 108 5.3 m² 0 0
Gang 109 3.6 m² 0 0
Toalett 110 3.5 m² 0 0
Spisestue 111 13.8 m² 0 1
Kjøp 112 20.4 m² 0 1
Plass 113 14.2 m² 0 0
VF 114 10.4 m² 0 0
Tilbygg - Kjøp 115 361.1 m² 0 0
Tilbygg - Europris 116 128.5 m² 0 0
Området kyller 117 0.0 m² 0 0
Området port 118 0.0 m² 0 0
Området port 119 0.0 m² 0 0
Området port 120 0.0 m² 0 0
Lagermetall 121 199.5 m² 0 0

Fasader

Enebolig

Sør
Materiale
Tre
Taktype
Saltak
Høyde
6.5 m
Mønehøyde
8.2 m
Vinduer
5
Dører
1
Balkonger
1
Synlige etasjer
2
Øst
Materiale
Tre
Taktype
Saltak
Høyde
6.5 m
Mønehøyde
8.2 m
Vinduer
4
Dører
1
Synlige etasjer
2

Hendelser

14.04.2026 Gbnr 426/24 - Stasjonsgata 32 - Søknad om oppføring av tilbygg, fasadeendring og riving av deler av bygg