Extension Soeknad Naeringsbygg

Tilbygg og fasadeendring på næringsbygg i Stenrødveien 90, Halden

📍 Stenrødveien 90 , 1784 HALDEN

Nøkkelinfo

Sakstype
Tilbygg
Bygningstype
Naeringsbygg
Bruksareal
180 m²
Kommune
Halden
Fylke
Østfold
Gnr / Bnr
98 / 1048
Saksnummer
2026/279
Fase
Søknad

Om byggesaken

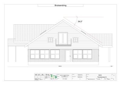
Prosjektet omfatter et tilbygg i underetasje og ny balkong mot sør/vest på et eksisterende næringsbygg i Stenrødveien 90, Halden. Tilbygget har et areal på ca. 95 m², og det totale bruksarealet etter utvidelsen blir ca. 180 m². Bygget har saltak med teglstein og trekledning på fasadene. Balkongen plasseres mot sør/vest og har rekkverk. Fasadeendringene inkluderer nye vinduer og dører, samt justeringer i fasadens utforming. Prosjektet er i søknadsfasen med rammetillatelse under behandling. I tillegg er det flere andre byggesaker i området som omfatter nybygg, bruksendringer, fasadeendringer og parkeringsplass.

Produkter og materialer

Maling Utvendig og innvendig maling

Maling av fasade og innvendige flater

Overflatebehandling av tilbygg og fasadeendring

Balkong Balkong med rekkverk

🧱 Tre og metall

Antall: 1

Ny balkong mot sør/vest med rekkverk

Balkong på tilbygg med rekkverk

Tømrer Innvendige vegger og tak

🧱 Tre og isolasjon

Innvendige konstruksjoner i tilbygg

Tømrerarbeid for tilbyggets innvendige konstruksjoner

Grunnarbeid Fundamentering og grunnarbeid

Grunnarbeid for tilbygg og balkong, inkludert fundamentering

Grunnarbeid for nytt tilbygg og balkong

Fasade Vinduer

🧱 Tre med isolerglass

Antall: 5

Nye vinduer i fasade Sør, Øst og Vest, inkludert vinduer med isolerglass

Nye vinduer for fasadeendring og tilbygg

Elektro Elektrisk installasjon

Elektrisk installasjon i tilbygg og balkong

El-installasjon for nytt tilbygg og balkong

Fasade Dører

🧱 Tre med isolerglass

Antall: 2

Nye dører i fasade Sør og Øst, inkludert isolerglassdører

Nye ytterdører for tilbygg og fasadeendring

Tak Saltak med teglstein

🧱 Teglstein

Saltak med teglstein som takmateriale

Taktekking på tilbygg og eksisterende bygg

Fasade Trekledning

🧱 Tre

Trekledning på fasader

Fasadebekledning på tilbygg og eksisterende bygg

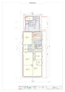
Plantegning

Lagerbygg 673.3 m²

Etasje 1 673.3 m²

Rom Areal Vinduer Dører
Lager 1 315.2 m² 0 0
Lager 2 157.6 m² 0 0
Lager 3 154.1 m² 0 0
Lager L1 48.6 m² 1 0
Bod B1 6.9 m² 0 0
Vaskerom V1 3.9 m² 0 1
Lager L2 48.5 m² 1 0
Bod B2 7.0 m² 0 0
Vaskerom V2 3.9 m² 0 1
Lager L3 48.6 m² 1 0
Bod B3 6.9 m² 0 0
Vaskerom V3 3.9 m² 0 1
Lager L4 48.6 m² 1 0
Bod B4 7.0 m² 0 0
Vaskerom V4 3.9 m² 0 1
Lager L5 48.6 m² 1 0
Bod B5 6.9 m² 0 0
Vaskerom V5 3.9 m² 0 1
Lager L6 48.5 m² 1 0
Bod B6 7.0 m² 0 0
Vaskerom V6 3.9 m² 0 1
Lager L7 48.6 m² 1 0
Bod B7 6.9 m² 0 0
Vaskerom V7 3.9 m² 0 1
Lager L8 48.6 m² 1 0
Bod B8 7.0 m² 0 0
Vaskerom V8 3.9 m² 0 1
Lager L9 48.6 m² 1 0
Bod B9 7.0 m² 0 0
Vaskerom V9 3.9 m² 0 1
Lager L10 48.6 m² 1 0
Bod B10 7.0 m² 0 0
Vaskerom V10 3.9 m² 0 1

Enebolig 692.1 m²

Etasje 0 208.0 m²

Rom Areal Vinduer Dører
Parkering 123.4 m² 0 1
Avfall 9.0 m² 0 0

Etasje 1 484.1 m²

Rom Areal Vinduer Dører
Kontor 101 10.7 m² 0 2
Dusj H 102 1.7 m² 0 1
WC H 103 1.4 m² 0 1
Garderobe H 104 5.9 m² 0 2
WC D 105 1.3 m² 0 1
Garderobe D 106 7.8 m² 0 2
Dusj D 107 1.7 m² 0 1
Garderobe 108 23.8 m² 0 2
Barnehage avdeling 109 43.1 m² 5 1
Kjøkken/aktivitetsrom 110 34.2 m² 2 1
Stillerom/WC 111 8.3 m² 0 1
HCWC 112 3.7 m² 0 1
Gang 113 29.3 m² 0 4
Grupperom/lekerom 114 12.9 m² 3 2
WC 115 1.7 m² 0 1
WC 116 1.7 m² 0 1
Gang 117 7.5 m² 0 2
Stillerom 118 19.5 m² 0 1
Grupperom 119 16.2 m² 0 2
Barnehage avdeling 120 50.8 m² 4 1
Barnehage avdeling 121 41.6 m² 3 1

Bruksendring 484.1 m²

Etasje 2 484.1 m²

Rom Areal Vinduer Dører
Klubbrom Klubbrom 88.1 m² 0 2
Gang Gang 21.3 m² 0 4
WC WC 7.1 m² 1 1
Kjøkken / Stue Kjokken / Stue 23.3 m² 2 1
Gang Gang 7.9 m² 0 3
Kjøkken / Stue Kjokken / Stue 37.9 m² 2 1
Soverom Sov 10.8 m² 1 1
Gang Gang 5.1 m² 0 2
Soverom Sov 10.7 m² 1 1
Bad / Vask Bad / Vask 9.6 m² 0 1
Bod Bod 5.7 m² 0 1
Kott Kott 4.5 m² 0 1
Bod Bod 1.7 m² 0 1
Kott Kott 4.5 m² 0 1
Bod Bod 8.3 m² 0 1
Soverom Sov 9.6 m² 1 1
Bod Bod 0.9 m² 0 1
Kott Kott 6.5 m² 0 1
Balkong Balkong 3.2 m² 0 1
Terrasse Terrasse 4.6 m² 0 1
Terrasse Terrasse 5.1 m² 0 1
Ventilasjonsrom Ventilasjonsrom 18.5 m² 0 0

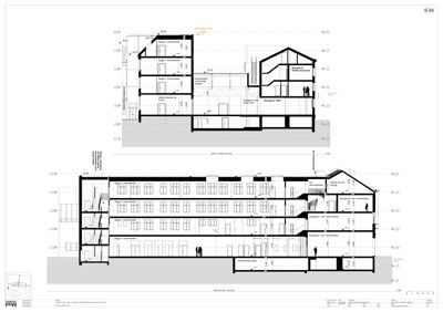
Fasader

Enebolig

Nord
Materiale
Tre
Taktype
Saltak
Takmat.
Tegl
Høyde
3.4 m
Mønehøyde
4.4 m
Vinduer
2
Dører
1
Balkonger
1
Synlige etasjer
2
Sør
Materiale
Tre
Taktype
Saltak
Takmat.
Tegl
Høyde
4.6 m
Mønehøyde
6.0 m
Vinduer
5
Dører
1
Balkonger
1
Synlige etasjer
2
Sør-Vest
Materiale
Tre
Taktype
Saltak
Høyde
3.5 m
Vinduer
1
Dører
0
Synlige etasjer
2
Sør-Øst
Materiale
Tre
Taktype
Saltak
Vinduer
3
Dører
0
Balkonger
1
Synlige etasjer
2
Nord-Vest
Materiale
Tre
Taktype
Saltak
Høyde
3.5 m
Vinduer
3
Dører
0
Balkonger
1
Synlige etasjer
2
Øst
Materiale
Tre
Taktype
Saltak
Takmat.
Tegl
Høyde
3.4 m
Mønehøyde
3.4 m
Vinduer
5
Dører
2
Balkonger
1
Synlige etasjer
2
Vest
Materiale
Tre
Taktype
Saltak
Takmat.
Tegl
Høyde
6.8 m
Mønehøyde
9.0 m
Vinduer
18
Dører
6
Balkonger
9
Synlige etasjer
3
Sydvest
Taktype
Flatt tak
Vinduer
5
Dører
3
Balkonger
1
Synlige etasjer
2
Sydøst
Taktype
Saltak
Vinduer
6
Dører
2
Balkonger
1
Synlige etasjer
2
Nordøst
Taktype
Flatt tak
Vinduer
6
Dører
2
Synlige etasjer
1
Nordvest
Taktype
Saltak
Vinduer
1
Dører
2
Synlige etasjer
2

Kornmottak

Syd Øst
Høyde
3.1 m
Vinduer
0
Dører
1
Synlige etasjer
2
Syd Vest
Høyde
3.1 m
Vinduer
0
Dører
1
Synlige etasjer
2
Nord Øst
Høyde
3.1 m
Vinduer
0
Dører
1
Synlige etasjer
2
Nord Vest
Høyde
3.1 m
Vinduer
0
Dører
1
Synlige etasjer
2

Storgata 9 / Rådhuset

Sør
Materiale
Betong
Taktype
Flatt tak
Vinduer
0
Dører
0
Synlige etasjer
1

Rådhuset

Sør
Taktype
Saltak
Vinduer
24
Dører
1
Synlige etasjer
3

Bruksendring

NordVest
Materiale
Mur
Taktype
Saltak
Vinduer
14
Dører
2
Synlige etasjer
2
SørØst
Materiale
Mur
Taktype
Saltak
Vinduer
10
Dører
2
Synlige etasjer
2

Robuste boliger

Øst
Materiale
Tre
Taktype
Flatt tak
Høyde
50.2 m
Vinduer
1
Dører
3
Synlige etasjer
1

Eksisterende bygg

Vest
Taktype
Flatt tak
Vinduer
9
Dører
0
Synlige etasjer
1

Garasje

Nord
Taktype
Saltak
Høyde
3.5 m
Vinduer
0
Dører
1
Synlige etasjer
1

Kvikk

Ukjent
Materiale
Betong
Taktype
Flatt tak
Vinduer
16
Dører
2
Synlige etasjer
2

Hendelser

10.04.2026 98/1048 - Stenrødveien 90 - Tilbygg og fasadeendring
31.03.2026 62/118 - Violgata 7 - Bruksendring
30.03.2026 158/48/1 - Sauøya 4 - Ombygging av kornmottak
30.03.2026 62/363 - Karl Johans gate 11 - Utvidelse av balkong og fasadeendring
27.03.2026 62/307 - Oscars gate 1 - Fasadeendring av godkjent tiltak
26.03.2026 143/33 - Store Bjørnstad - Solkraftverk
20.03.2026 66/738 - Forstrøms vei 31 - Rive og oppføre garasje
12.03.2026 62/320 - Fisketorget 2 - Bruksendring, fasadeendring og brannskille
11.03.2026 12/50 - Parkeringsplass
11.03.2026 66/688 - Busterudkleiva 24 - Ombygging, fasadeendring og bruksendring
25.02.2026 160/358 og 160/578 - Pipemontering og fasadeendring
19.02.2026 65/2/1 - Thorsheimveien 10 - Bruksendring
17.02.2026 62/101 - Wiels plass 4 - Endring av bygg, bruksendring og tilbygg
16.02.2026 159/136 - Knardalveien 28 - Ny veranda, takløft og fasadeendring
11.02.2026 159/136 - Knardalveien 28 - tilbygg
11.02.2026 160/543 - Sykehusgata 2 - Arealoverføring
10.02.2026 Nabovarsel - 69/230 - Stubberudveien 16B - Gjerde
06.02.2026 4/38 - Svinesundsveien 319 - Fasadeendring
06.02.2026 12/49 - Vestgårdveien 15 - Oppføring av to næringsbygg
29.01.2026 162/10 - Kongeveien 1 - Etablering av leke- og sports områder
27.01.2026 98/973 - Ulvåsveien 30 - Rive bygg, planering av tomt, bygge carport og bruksendring
14.01.2026 12/43 - Torpumveien 537 - Nytt bygg