Extension UnderBehandling Naeringsbygg

Ny fraksjoneringskolonne til fabrikk i Teistholmsundet 2

📍 Teistholmsundet 2 , 6512 KRISTIANSUND N

Nøkkelinfo

Sakstype
Tilbygg
Bygningstype
Naeringsbygg
Bruksareal
61 m²
Kommune
Kristiansund
Fylke
Møre og Romsdal
Gnr / Bnr
9 / 431
Saksnummer
26/02185
Fase
Under behandling

Om byggesaken

Ny fraksjoneringskolonne på 61,2 m² bygges som et tilbygg til eksisterende fabrikk på Teistholmsundet 2. Kolonnen får en gesimshøyde på 14,6 meter og mønehøyde på 21,7 meter, fordelt på 2 etasjer. Bygget utføres i betong med flatt tak og har flere fasader med vinduer og dører. Tiltaket øker bebygd areal med 64 m² og er plassert inntil eksisterende kolonne med tilsvarende høyde. Formålet er å øke produksjonskapasiteten ved fabrikken. Tiltaket krever dispensasjon fra reguleringsplanens høydebestemmelser og plankrav, da høyden overskrider regulert maksimum. Området er regulert til næringsformål, og tiltaket er i tråd med dette. Det foreligger godkjente tegninger og situasjonskart som viser plassering og utforming.

Produkter og materialer

Vinduer Fasadevindu

Antall: 14

Vinduer fordelt på fasader sør (10 stk) og vest (2 stk) og nord (2 stk)

Fasadevinduer for naturlig lys i fraksjoneringskolonne

Grunnarbeid Fundamentering

Fundamentering for ny betongkolonne iht. tekniske krav

Grunnarbeid og fundamentering for ny fraksjoneringskolonne

Dører Ytterdør

Antall: 2

Dører på fasade sør (1 stk) og vest (1 stk)

Ytterdører til fraksjoneringskolonne

Betong Bygningskonstruksjon

🧱 Betong

Betongkonstruksjon for kolonne med høyde 21,7 m

Betongkonstruksjon for ny fraksjoneringskolonne

Fasade Betongfasade

🧱 Betong

Fasade med betongmateriale, flatt tak, gesimshøyde 14,6 m, mønehøyde 21,7 m

Betongfasade for ny fraksjoneringskolonne med flatt tak

Elektro El-installasjoner

Elektriske installasjoner i ny kolonne

Tømrer Innvendige vegger og tak

Innvendige konstruksjoner og vegger i tilbygg

VVS Sanitær og ventilasjon

VVS-installasjoner i ny fraksjoneringskolonne

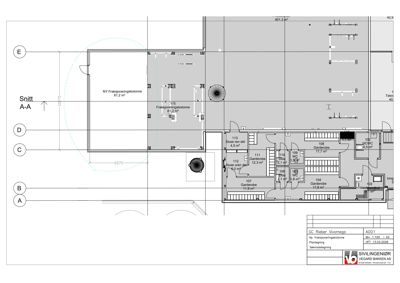
Plantegning

Teknisk rom 401.3 m²

Etasje 1 401.3 m²

Rom Areal Vinduer Dører
HCWC 102 6.5 m² 0 1
Vaskesentral 103 19.1 m² 0 1
Garderobe 104 17.8 m² 0 1
WC 105 1.8 m² 0 1
Dusj 106 2.1 m² 0 1
Garderobe 107 11.9 m² 0 1
Garderobe 108 17.7 m² 0 1
WC 109 1.8 m² 0 1
Dusj 110 2.1 m² 0 1
Garderobe 111 12.3 m² 0 1
Sluse uren del 112 6.0 m² 0 1
Sluse ren del 113 4.5 m² 0 1
Fraksjoneringskolonne 115 61.2 m² 0 0
NY Fraksjoneringskolonne 61.2 m² 0 0

Fasader

Fraksjoneringskolonne

Vest
Høyde
14.6 m
Mønehøyde
21.7 m
Vinduer
2
Dører
0
Synlige etasjer
2
Sør
Materiale
Betong
Høyde
18.5 m
Vinduer
10
Dører
1
Synlige etasjer
2

Fabrikk

Vest
Materiale
Betong
Taktype
Flatt tak
Høyde
17.8 m
Mønehøyde
21.7 m
Vinduer
1
Dører
1
Synlige etasjer
3

Ny RC-kolonne

Vest
Materiale
Betong
Taktype
Flatt tak
Høyde
21.7 m
Mønehøyde
21.7 m
Vinduer
2
Dører
1
Synlige etasjer
6

Hendelser

20.04.2026 26/02185-5 Teistholmsundet 2 - høgde på tilbygg - uttalelse
17.04.2026 26/02185-3 Teistholmsundet 2 - Søknad om dispensasjon - bekreftelse
17.04.2026 26/02185-4 Teistholmsundet 2, anmodning om uttalelse
25.03.2026 26/02185-2 Teistholmsundet 2, foreløpig tilbakemelding på søknad om søknad om dispensasjon fra reguleringsplanen
23.03.2026 26/02185-1 Teistholmsundet 2, søknad om dispensasjon fra reguleringsplanen - høydebestemmelse