Extension UnderBehandling Naeringsbygg

Tilbygg til industribygg i Toralfvegen 105, Fjørtoft

📍 Toralfvegen 103 , 6294 FJØRTOFT

Nøkkelinfo

Sakstype
Tilbygg
Bygningstype
Naeringsbygg
Bruksareal
130 m²
Kommune
Haram
Fylke
Møre og Romsdal
Gnr / Bnr
303 / 173
Saksnummer
2026/633
Fase
Under behandling

Om byggesaken

Ny utvendig tilbygg på ca. 130 m² til eksisterende industribygg på Toralfvegen 105. Tilbygget oppføres i én etasje med lavere gesimshøyde enn eksisterende bygg, og skal inneholde garderober, sanitetsinstallasjoner, kantine, kontorer og resepsjonsområde. Bygget får platekledning i kombinasjon av lys og mørk grå med blå innslag, tilpasset eksisterende fasade. Tilbygget kobles til eksisterende vann- og avløpsanlegg og har tilknytning til eksisterende produksjonshall. Det er planlagt 7 utvendige parkeringsplasser, inkludert en handicapplass, med ytterligere parkering innendørs. Tekniske installasjoner som ventilasjon, varme, kulde, brannalarm og nødlys inngår i prosjektet. Bygget planlegges utleid til ny virksomhet innen kapsling og emballering av helsekostprodukter.

Produkter og materialer

Tak Saltak

Antall: 1

Saltak med økt gesimshøyde pga. etterisolering

Tak på tilbygget med saltak og økt gesimshøyde

Vinduer Sikkerhetsglass vinduer

🧱 Sikkerhetsglass iht. Plan- og bygningsloven og glassbransjens anbefalinger

Antall: 18

Vinduer med brystningshøyde <0,8 m på bakkeplan

Vinduer med sikkerhetsglass i tilbygget

Maling Innvendig maling

Innvendig maling av vegger og tak i tilbygget

Overflatebehandling innvendig

VVS Utvendig vannforsynings- og avløpsanlegg

Tilkobling til eksisterende privat vann- og avløpsanlegg

Vann- og avløpsanlegg til tilbygget

Grunnarbeid Plate på mark

🧱 Betongplate på mark tilpasset eksisterende bygg

Antall: 1

Plate på mark med kotehøyde +2,55 moh

Fundament og plate for tilbygget

Betong Ringmur og fundament

🧱 Betong

Ringmur og fundament til tilbygget

Betongkonstruksjoner for tilbygget

Gulv Industrielt gulv

Industrielt gulv i produksjons- og lagerområder

Gulv i produksjon og lager i tilbygget

Ventilasjon Ventilasjons- og klimainstallasjoner

Ventilasjons- og klimainstallasjoner i tilbygget

Ventilasjon og klima for tilbygget

Annet Parkeringsplasser

Antall: 7

7 utvendige biloppstillingsplasser, inkludert en handicapplass

Parkeringsplasser tilknyttet tilbygget

Elektro Brannalarmanlegg, nød- og ledelys

Brannalarmanlegg, nød- og ledelys installert i tilbygget

Brannvern og nødlys i tilbygget

Dører Glassdør og -vegg

Antall: 3

Glassdører og glassvegger i resepsjon og inngangsparti

Inngangsdører og glassvegger i tilbygget

VVS Sanitærinstallasjoner, varme og kulde

Sanitærinstallasjoner, varme- og kuldeinstallasjoner i tilbygget

VVS-installasjoner for sanitær og varme/kulde

Tømrer Trekonstruksjoner

🧱 Tre

Montering av trekonstruksjoner for tilbygget

Tømrerarbeid for tilbygget

Fasade Platekledning

🧱 Fasadeplater i lys og mørk grå med blå innslag

Platekledning tilpasset eksisterende fasadeendring

Utvendig fasadekledning for tilbygget

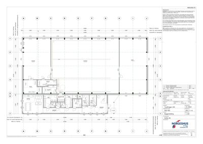
Plantegning

Toralfvegen 105 884.3 m²

Etasje 0 884.3 m²

Rom Areal Vinduer Dører
Kantine KANTINE 31.3 m² 0 1
Garderobe GARD 11.1 m² 0 1
Sluse/Grov Garderobe SLUSE/GROV GARD 9.6 m² 0 1
Garderobe GARD 9.6 m² 0 1
Lager Lager 1.7 m² 0 1
Hovedvaskerom H.WC 6.1 m² 0 1
WC WC 1.7 m² 0 1
Badkar BK 1.8 m² 0 1
WC WC 2.7 m² 0 1
Kontor Kontor 6.1 m² 0 1
Kontor Kontor 6.3 m² 0 1
Resepsjon RESEPSJON 25.3 m² 0 1
Korridor Korridor 17.2 m² 0 0
Vaskerom Vaskerom 9.0 m² 0 1
Teknisk rom Teknisk 18.2 m² 0 1
Lab/kontor Lab/kontor 8.8 m² 0 1
Emballeasje Emballeasje 94.8 m² 0 0
Produksjon Produksjon 311.4 m² 0 0
Mottak Mottak 127.3 m² 0 0

Fasader

Hovedbygg

Ukjent
Taktype
Saltak
Høyde
5.8 m
Vinduer
6
Dører
1
Synlige etasjer
1
Sørøst
Materiale
Platemontasje
Taktype
Saltak
Vinduer
9
Dører
1
Synlige etasjer
1
Nordøst
Materiale
Platemontasje
Taktype
Saltak
Vinduer
3
Dører
1
Synlige etasjer
1

Hendelser

21.04.2026 Gbnr. 303/173 - Toralfvegen 105 - Uttale - dispensasjon - tilbygg industribygg
07.04.2026 gbnr 303/173 - Høringssvar - Haram kommune - tilbygg til eksisterande industribygg - Toralfvegen 105 - dispensasjonssak
31.03.2026 Gbnr. 303/173 - Toralfvegen 105 - Tilbygg til eksisterande industribygg - Ber om uttale
24.03.2026 Gbnr. - Komplettering - Toralfvegen 103 - Tilbygg
23.03.2026 Gbnr. 303/173 - Toralfvegen 105 - Tilbygg til eksisterande industribygg - Mangelbrev
23.03.2026 Gbnr. 303/173 - Toralfvegen 105 - Tilbygg til eksisterande industribygg - Ber om tilleggsdokumentasjon
13.03.2026 Gbnr. 303/173 - Toralfvegen 105 - Komplettering ved mangelfull søknad - Tilbygg til eksisterande industribygg
06.03.2026 Gbnr. 303/173 - Toralfvegen 105 - Innvilger søknaden om samtykke etter automatisk saksbehandling
06.03.2026 Gbnr. 303/173 - Toralfvegen 105 - Søknad om tillatelse i ett trinn