Extension Rammetillatelse Naeringsbygg

Tilbygg, fasadeendring og riving ved Trondheimsvegen 144, Kløfta

📍 Trondheimsvegen - Kløfta 144 , 2040 KLØFTA

Nøkkelinfo

Sakstype
Tilbygg
Bygningstype
Naeringsbygg
Bruksareal
1,214 m²
Kommune
Ullensaker
Fylke
Akershus
Gnr / Bnr
15 / 79
Saksnummer
2025/6321
Fase
Rammetillatelse

Om byggesaken

Prosjektet omfatter riving av eksisterende garasje/verksted, vaskehall og bensinstasjon, samt innvendig rehabilitering og fasadefornyelse av et næringsbygg fra 1958 med tilbygg på ca. 329 m². Det etableres en ny dagligvarebutikk (Coop Extra) og et nytt drivstoffanlegg på eiendommen. Bygget har flatt tak med trekledning og platekledning på fasadene, og inneholder blant annet butikkareal, lager, kjølerom og varemottak. Utomhusarbeider inkluderer parkeringsplasser, sykkelparkering og tilrettelegging for myke trafikanter. Prosjektet inkluderer også omfattende miljøkartlegging og ombrukskartlegging, samt tiltak for overvannshåndtering med blå tak, regnbed og permeabel asfalt. Det er gitt rammetillatelse med dispensasjon fra regulert byggegrense, og prosjektet er underlagt krav om videre dokumentasjon før igangsettingstillatelse.

Produkter og materialer

Betong Gulvbelegg og maling

Gulvmalingen i verkstedet er ordinært avfall, mens i vaskehallen er den lett forurenset og skal leveres som forurensede masser

Maling og gulvbelegg skal håndteres i henhold til forurensningsgrad

Vinduer Enkeltglassvinduer uten asbest i kitt

Antall: 7

Enkeltglassvinduer i garasjen, kitt uten asbest

Kan leveres som ordinært avfall

Elektro Lysstoffrør og nødlys

Antall: 295

Ca. 290 lysstoffrør og 5 nødlys/ledelys i bygningsmassen, skal leveres som EE-avfall

Elektrisk avfall som skal sorteres og leveres til godkjent mottak

VVS Ventilasjonskanaler

Antall: 105

Runde ventilasjonskanaler i næringsbygget, ulike dimensjoner, vurdert til ombruk

Ventilasjonskanaler som kan gjenbrukes

Betong Keramiske fliser

🧱 Keramiske fliser

Keramiske fliser på gulv i næringsbygget, kan ligge over lim og avrettingsmasse som kan inneholde asbest og PCB

Fliser skal leveres som lett forurensede masser, underliggende materialer må undersøkes

Dører Kjøreporter fra 2015 eller nyere

Antall: 3

Porter i sørvestenden av næringsbygget, leddet port i verkstedet og portene i vaskehallen, uten flammehemmere eller freoner

Kan håndteres som ordinært avfall

Annet Bensin- og dieselpumper

Antall: 2

Bensin- og dieselpumper ved bensinstasjonen, må vurderes av tekniker før demontering og ombruk

Teknisk utstyr som krever spesiell håndtering

VVS Oljeutskillere og sandfangsrenner

Antall: 2

Oljeutskillere tilknyttet bensinstasjon og vaskehall, innhold farlig avfall

Oljeutskillere skal fjernes og innhold leveres som farlig avfall

Fasade Trekledning og platekledning

🧱 Tre og plater

Fasadene på næringsbygget og tilbygg, med tre- og platekledning, tilpasses eksisterende bygg

Fasadeendring med ny kledning

Annet Kabelskinner

Antall: 250

Kabelskinner til lysarmaturer i næringsbygget, vurdert til ombruk

Kabelskinner som kan gjenbrukes

VVS Cellegummiisolasjon

Antall: 70

Isolasjon på rør og komponenter tilknyttet vannrør og varmepumper i næringsbygget, inneholder bromerte flammehemmere og antimontrioksid

Isolasjon som skal leveres som farlig avfall

VVS EPS-isolasjon

Antall: 0

EPS-isolasjon mellom fasadeelementer av betong, inneholder ikke farlige stoffer over grenseverdi

Kan håndteres som ordinært avfall

Betong Ubehandlet betong

🧱 Betong

Betong fra såler og fundamenter, varierende grad av forurensning, oljeforurenset betong må leveres som farlig avfall

Betong som skal sorteres og leveres i henhold til forurensningsgrad

Annet Betalingsterminaler

Antall: 2

Betalingsterminaler ved bensinstasjonen, må vurderes av tekniker før demontering og ombruk

Elektronisk utstyr som skal håndteres forsvarlig

Tak Sarnafil-duk takbelegg

🧱 PVC

Tak på næringsbygget, inneholder ftalater, skal håndteres som farlig avfall

Takbelegg som skal demonteres og leveres som farlig avfall

VVS Kjølemaskiner/varmepumper

Antall: 4

Kjølemaskiner i næringsbygget, kjølemedium skal tappes av kuldeentreprenør før demontering

Kjølemaskiner som skal håndteres som farlig avfall

Dører Kjøreport med PUR-isolasjon

Antall: 1

Kjøreport i nordvestenden av næringsbygget, antatt fra 2003, inneholder flammehemmere og freoner

Skal håndteres som farlig avfall eller prøvetas

Vinduer Isolerglassvinduer med klorparafiner

Antall: 36

28 stk. i vaskehallen og 8 stk. i sørenden av næringsbygget, produsert 1976-1990, inneholder klorparafiner over grenseverdi

Isolerglassvinduer som skal demonteres og leveres som farlig avfall

Grunnarbeid Graving og miljøsanering

Gravearbeider ned til 3,5 m dybde, miljøtekniske grunnundersøkelser og sanering av forurensede masser

Grunnarbeid med håndtering av forurenset grunn og massehåndtering

Vinduer Isolerglassvinduer produsert etter 1990

Antall: 31

Fordelt i næringsbygget og verkstedet, inneholder ftalater, dioksiner og isocyanater, kan håndteres som ordinært avfall hvis hele

Isolerglassvinduer som skal tas ut hele og leveres til godkjent mottak

VVS XPS-isolasjon

Antall: 2

XPS-plater under kjøleelementer på taket, inneholder flammehemmere og freoner

Skal leveres som farlig avfall

Utendørs Søppelkasser med papirdispenser

Antall: 2

Søppelkasser ved bensinstasjonen, vurdert til ombruk

Utendørs inventar som kan gjenbrukes

Betong Lecamur

🧱 Leca

Lecamur under verksted, forurenset med sink over normverdi, skal leveres som lett forurensede masser

Leca som skal leveres til godkjent mottak

Tak Stålplatetak

🧱 Stål

Tak på garasje/verksted og antatt på vaskehallen, må kontrolleres for papp/membran under

Takplater som kan gjenbrukes eller gjenvinnes

Fasade Skrudde stålplater på fasade

🧱 Stål

Antall: 140

Utvendig kledning på vaskehallen og næringsbygget, ulike dimensjoner og lengder, vurdert til ombruk

Fasadeplater som kan gjenbrukes

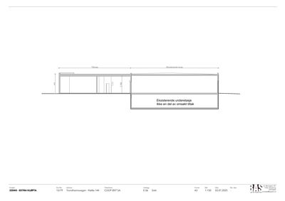
Fasader

Butikk

Nord
Materiale
Tre
Taktype
Flatt tak
Høyde
4.6 m
Vinduer
4
Dører
1
Synlige etasjer
1
Vest
Materiale
Tre
Taktype
Flatt tak
Høyde
4.4 m
Vinduer
4
Dører
1
Synlige etasjer
1
Sør
Materiale
Tre
Taktype
Flatt tak
Høyde
4.4 m
Vinduer
0
Dører
0
Synlige etasjer
1
Øst
Materiale
Tre
Taktype
Flatt tak
Høyde
4.6 m
Vinduer
9
Dører
1
Synlige etasjer
1

Hendelser

20.04.2026 Klage på vedtak - Gnr 15 bnr 79 - Trondheimsvegen - Kløfta 144 - Coop Kløfta - Tilbygg - Fasadeendring - Endring av bygg - Riving av bygg - Dagligvarehus - Bensinstasjon
27.03.2026 Rammetillatelse med dispensasjon - Gnr 15 bnr 79 - Trondheimsvegen - Kløfta 144 - Coop Kløfta - Tilbygg - Fasadeendring - Endring av bygg - Riving av bygg - Dagligvarehus - Bensinstasjon
27.03.2026 Underretting av vedtak - Gnr 15 bnr 79 - Trondheimsvegen - Kløfta 144 - Coop Kløfta - Tilbygg - Fasadeendring - Endring av bygg - Riving av bygg - Dagligvarehus - Bensinstasjon
27.03.2026 Underretting om vedtak - Gnr 15 bnr 79 - Trondheimsvegen - Kløfta 144 - Coop Kløfta - Tilbygg - Fasadeendring - Endring av bygg - Riving av bygg - Dagligvarehus - Bensinstasjon
19.03.2026 Tilbakemelding fra Akershus fylkeskommune - Gnr 15 bnr 79 - Trondheimsvegen - Kløfta 144 - Coop Kløfta - Tilbygg - Fasadeendring - Endring av bygg - Riving av bygg - Dagligvarehus - Bensinstasjon
09.03.2026 Uttalelse til supplering av tidligere oversendelse - Gnr 15 bnr 79 - Trondheimsvegen - Kløfta 144 - Coop Kløfta - Tilbygg - Fasadeendring - Endring av bygg - Riving av bygg - Dagligvarehus - Bensinstasjon
18.02.2026 Supplering av tidligere oversendelse - Gnr 15 bnr 79 - Trondheimsvegen - Kløfta 144 - Coop Kløfta - Tilbygg - Fasadeendring - Endring av bygg - Riving av bygg - Dagligvarehus - Bensinstasjon
21.01.2026 Tilsvar mangler rammesøknad - Gnr 15 bnr 79 - Trondheimsvegen - Kløfta 144 - Coop Kløfta - Tilbygg - Fasadeendring - Endring av bygg - Riving av bygg - Dagligvarehus - Bensinstasjon
02.01.2026 Fortsatt mangler ved søknaden - Gnr 15 bnr 79 - Trondheimsvegen - Kløfta 144 - Coop Kløfta - Tilbygg - Fasadeendring - Endring av bygg - Riving av bygg - Dagligvarehus - Bensinstasjon
02.01.2026 Orientering om tilbakemelding fra forvaltning bymiljø, veg - Gnr 15 bnr 79 - Trondheimsvegen - Kløfta 144 - Coop Kløfta - Tilbygg - Fasadeendring - Endring av bygg - Riving av bygg - Dagligvarehus - Bensinstasjon
21.10.2025 Uttalelse til søknad om tilbygg, endring og riving - Gnr 15 bnr 79 - Trondheimsvegen - Kløfta 144 - Coop Kløfta
16.10.2025 Supplering av søknad - Gnr 15 bnr 79 - Trondheimsvegen - Kløfta 144 - Coop Kløfta - Tilbygg - Fasadeendring - Endring av bygg - Riving av bygg - Dagligvarehus - Bensinstasjon
14.10.2025 Ber om utsatt frist - Gnr 15 bnr 79 - Trondheimsvegen - Kløfta 144 - Coop Kløfta - Tilbygg - Fasadeendring - Endring av bygg - Riving av bygg - Dagligvarehus - Bensinstasjon
19.09.2025 Tilbakemelding om mangler - Gnr 15 bnr 79 - Trondheimsvegen - Kløfta 144 - Coop Kløfta - Tilbygg - Fasadeendring - Endring av bygg - Riving av bygg - Dagligvarehus - Bensinstasjon
19.09.2025 Oversending av søknad for uttalelse - Gnr 15 bnr 79 - Trondheimsvegen - Kløfta 144 - Coop Kløfta - Tilbygg - Fasadeendring - Endring av bygg - Riving av bygg - Dagligvarehus - Bensinstasjon
11.08.2025 Søknad om rammetillatelse - Gnr 15 bnr 79 - Trondheimsvegen - Kløfta 144 - Coop Kløfta - Endring av bygg - Nytt anlegg