Extension UnderBehandling Naeringsbygg

Utvidelse og ombygging av servicebygg og flytebrygge, Valleveien 1000

📍 Valleveien 1000 , 3967 STATHELLE

Nøkkelinfo

Sakstype
Tilbygg
Bygningstype
Naeringsbygg
Bruksareal
114 m²
Kommune
Bamble
Fylke
Telemark
Gnr / Bnr
83 / 27
Saksnummer
2026/1455
Fase
Under behandling

Om byggesaken

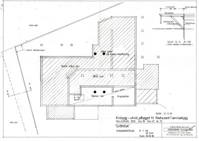
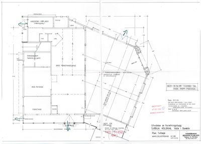
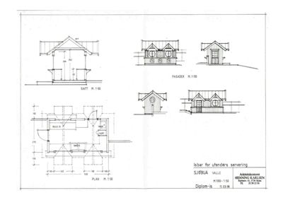
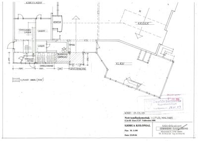
Prosjektet omfatter omfattende utvidelser og ombygginger av servicebygg, kiosk, forretningsbygg og flytebryggeanlegg på eiendommene Valleveien 1000 og 1002 i Stathelle. Byggene inkluderer blant annet Sjøbua kro med tilbygg og ombygging til restaurant og servicebygg, kioskbygg, butikk/forretningsbygg med tilbygg for tomflaskemottak og utvidelse av inngangsparti, samt glassbygg mellom butikk og skute. Flytebryggeanlegget er utvidet med ny brygge, marina, taxibåthavn og tilhørende tekniske installasjoner. Byggene har saltak og valmtak i tre, med flere etasjer og funksjonsrom som kontorer, lager, soverom, tekniske rom, toaletter og uteservering. Det er også gjennomført terrengarbeider og etablering av bryggefront. Flere tiltak har midlertidige brukstillatelser eller ferdigattester, mens enkelte tiltak fortsatt krever ferdigattest. Prosjektet inkluderer også tekniske installasjoner som sanitæranlegg, sprinkleranlegg og brannsikring.

Produkter og materialer

Maling Innvendig og utvendig maling

Maling av fasader, innvendige vegger og tak

Overflatebehandling for alle bygg

Brannvern Brannslukningsutstyr og sprinkling

Brannslukningsapparater, brannslanger, boligsprinkling i servicebygg

Brannsikringstiltak i servicebygg og tilbygg

VVS Sanitæranlegg og våtrom

Sanitæranlegg til servicebygg, våtrom med uavhengig kontroll

VVS-installasjoner for servicebygg og kiosk

Dører Ytterdører i tre og glass

🧱 Tre og glass

Antall: 12

Ytterdører til hovedinngang, kiosk, forretningsbygg og servicebygg

Ytterdører for alle byggene i prosjektet

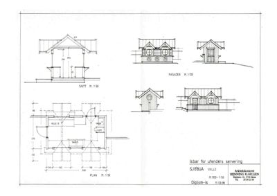
Terrasse Uteplass og terrasseutvidelse

Utvidelse av terrasse med isbar, uteservering

Utendørs terrasse og serveringsareal

Ventilasjon Ventilasjonsanlegg

Ventilasjonsanlegg i servicebygg og kiosk

Ventilasjon for alle bygg

Fasade Trepanel med saltak

🧱 Tre

Saltak og valmtak i tre, flere fasader med trepanel

Fasadebekledning og taktekking for servicebygg, kiosk og forretningsbygg

Kjøkken Kjøkkeninnredning og utstyr

Kjøkken i servicebygg og bryggekjøkken

Innredning og utstyr til kjøkken i servicebygg

Bad Våtrom og toaletter

Toaletter, dusjrom, våtrom med krav til uavhengig kontroll

Sanitærrom i servicebygg og ansatteområder

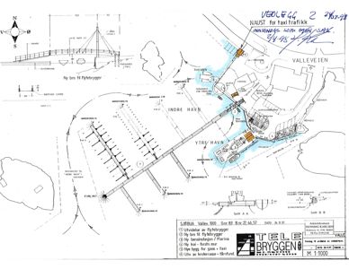
Skilt Frittstående taxibåtskilt

Antall: 1

Skilt for taxibåtparkering på brygge

Skilt for taxibåtparkering

Elektro Elektrisk oppvarming og belysning

Elektrisk panelovner, varmekabler, belysning i bygg og uteområder

Elektroinstallasjoner for alle bygg og uteområder

Stål Stålknekt og spunt

🧱 Stål

Stålknekt for brygge, spunt for bryggekant

Stålkonstruksjoner for brygge og marina

Betong Fundament og betonglekter for flytebrygge

🧱 Betong

Betongfundament for brygge, betonglekter for dypvannskai

Fundamentering og konstruksjon av flytebrygge og marina

Trapper Innvendig trapp

🧱 Tre/stål

Antall: 1

Innvendig trapp i servicebygg og Sjøkroa

Trapper i servicebygg og tilknyttede bygg

Gulv Gulvbelegg og fliser

Gulvbelegg i forretningsbygg og servicebygg, fliser i våtrom

Gulvbehandling i alle bygg

Grunnarbeid Terrengarbeider og fundamentering

Terrengarbeider, etablering av bryggefront, grunnarbeider for bygg og brygge

Grunnarbeider for bygg og flytebryggeanlegg

Vinduer Fasadevindu i tre

🧱 Tre

Antall: 14

Vinduer i tre med 2-3 lags glass, inkludert fasadevinduer i kiosk og forretningsbygg

Vinduer til servicebygg, kiosk og forretningsbygg

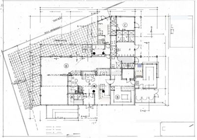
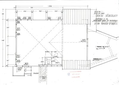
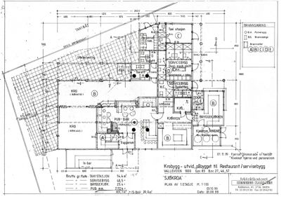
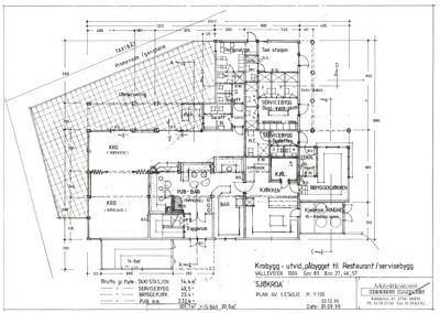
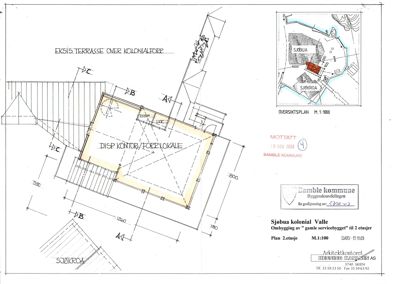
Plantegning

Forretningsbygg 113.6 m²

Etasje 2 0.0 m²

Rom Areal Vinduer Dører
Disp. kontor/forp. lokale 0 0.0 m² 0 0
Gang 201 45.0 m² 0 2
Kontor 202 35.0 m² 2 1
Toalett 203 2.5 m² 0 1
Teknisk rom 204 24.0 m² 1 1

Etasje 1 113.6 m²

Rom Areal Vinduer Dører
Forr-2 FORR-2 66.0 m² 2 1
Forr-3 FORR-3 47.6 m² 2 1
Hovedinngang 101 0.0 m² 0 1
Forr-1 102 0.0 m² 0 0
Forr-2 103 0.0 m² 0 0
Forr-3 104 0.0 m² 0 0
WC 105 0.0 m² 0 0
WC 106 0.0 m² 0 0
Forr-1 FORR-1 0.0 m² 0 1
WC WC 0.0 m² 0 1
Forretning 107 0.0 m² 0 1
Kontor 108 0.0 m² 0 1
Service 109 0.0 m² 0 0
Trapperom A 0.0 m² 0 1
KRO (RØYKFRI) B 0.0 m² 0 0
Taxi stasjon C 0.0 m² 0 0
SERVICEBYGG Dusj-vask-skift D 0.0 m² 0 0
SERVICEBYGG Toaletter E 0.0 m² 0 0
TEKN F 0.0 m² 0 0
PUB-BAR G 0.0 m² 0 0
KJØKKEN H 0.0 m² 0 0
BRYGGEKJØKKEN I 0.0 m² 0 0
Kjølerom RINGNES J 0.0 m² 0 0
Toalett K 0.0 m² 0 0
Personal rom L 0.0 m² 0 0
WC M 0.0 m² 0 0
WC N 0.0 m² 0 0
disk O 0.0 m² 0 0
GANG P 0.0 m² 0 0
H.C. Q 0.0 m² 0 0
OPP VASK R 0.0 m² 0 0
KJØL. S 0.0 m² 0 0
Is-bar T 0.0 m² 0 0
Uteservering U 0.0 m² 0 0
PERSONALROM 110 0.0 m² 0 0
TOALET 111 0.0 m² 0 0
TRAPPEROM 112 0.0 m² 0 0
IS-BAR 113 0.0 m² 0 0
UTESERVERING 114 0.0 m² 0 0
IS-BAR 115 20.0 m² 0 1

Kiosk 35.0 m²

Etasje 1 35.0 m²

Rom Areal Vinduer Dører
Kiosk 101 35.0 m² 0 0

SJØKROA 0.0 m²

Etasje 0 0.0 m²

Rom Areal Vinduer Dører
Teknisk rom Teknisk rom 0.0 m² 0 0
Krypkjeller Krypkjeller 0.0 m² 0 0

Etasje 1 0.0 m²

Rom Areal Vinduer Dører
Nedre nivå Nedre nivå 0.0 m² 0 0
Øvre nivå Øvre nivå 0.0 m² 0 0

Fasader

Kiosk

Ukjent
Vinduer
6
Dører
0
Synlige etasjer
2

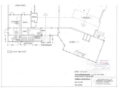
Tomflaskemottak

Nord
Materiale
Tre
Taktype
Saltak
Vinduer
3
Dører
2
Synlige etasjer
2

Sjøbua Kolonial

S-Vest
Materiale
Tre
Taktype
Saltak
Vinduer
6
Dører
1
Balkonger
1
Synlige etasjer
2
N-Øst
Materiale
Tre
Taktype
Saltak
Vinduer
3
Dører
1
Synlige etasjer
2

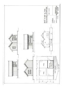
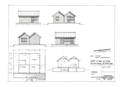
Naust

Nord
Materiale
Tre
Taktype
Valmtak
Høyde
2.5 m
Mønehøyde
3.5 m
Vinduer
1
Dører
0
Synlige etasjer
1
Sør
Materiale
Tre
Taktype
Valmtak
Høyde
2.5 m
Mønehøyde
3.5 m
Vinduer
2
Dører
0
Synlige etasjer
1
Øst
Materiale
Tre
Taktype
Valmtak
Vinduer
2
Dører
0
Synlige etasjer
1
Vest
Materiale
Tre
Taktype
Valmtak
Høyde
2.5 m
Mønehøyde
3.5 m
Vinduer
1
Dører
0
Synlige etasjer
1

Sjøbua

N-Vest
Materiale
Tre
Taktype
Saltak
Vinduer
6
Dører
2
Balkonger
1
Synlige etasjer
2
S-Øst
Materiale
Tre
Taktype
Saltak
Vinduer
2
Dører
1
Balkonger
1
Synlige etasjer
2

Hendelser

22.04.2026 Søknader om ferdigattest - gbnr. 83/17 og 83/27 - Valleveien 1000 og 1002 - diverse tiltak
31.03.2026 Oversikt over tiltak på eiendommene - gbnr. 83/17 og 83/27 - Valleveien 1000 og 1002
17.03.2026 Purring på svar - gbnr. 83/17 og 83/27 - Valleveien 1000 og 1002
13.03.2026 Purring på svar - gbnr. 83/17 og 83/27 - Valleveien 1000 og 1002
25.02.2026 Dokumentasjon til søknad om fullstendig ferdigattest - gbnr. 83/17 - Valleveien 1000