Facade
Fasadetegning som viser bygningens utseende fra vest, nord og sør.
1 / 5
Extension
Unknown
Naeringsbygg
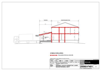
Tilbygg varemottak/lager
📍 Veodalsvegen 1039 , 2686 LOM
Nøkkelinfo
- Sakstype
- Tilbygg
- Bygningstype
- Naeringsbygg
- Kommune
- Lom
- Fylke
- Innlandet
- Gnr / Bnr
- 155 / 1
- Saksnummer
- 2026/328
- Fase
- Unknown
Om byggesaken
Saken gjelder søknad om tillatelse til utvendig tilbygg på mindre enn 50 m² for etablering av varemottak og lagerfunksjon. Saken inkluderer også søknad om dispensasjon fra byggegrense og håndtering av nabovarsler.
Hendelser
21.04.2026
Vedtak - Eit-stegs søknad - tilbygg varemottak/lager
20.04.2026
Dispensasjon fra byggegrense for tilbygg - FV 55 Sognefjellsvegen - 3434-155/1/50 - Lom kommune
26.03.2026
155/1/50 Sognefjellsvegen 4688 - Mangelfull søknad
26.03.2026
Dykkar ref.: 2026/328 20060 Krossbu, tilbygg varemottak
23.03.2026
Bekreftelse på mottatt søknad - Endring tillatelse - Endring av bygg - utvendig tilbygg mindre enn 50 m² - {Byggeaddresse}.{Matrikkelnr}
23.03.2026
Endringsløyve - 155/1/50 Sognefjellsvegen 4688