ChangeOfUse UnderBehandling Offentlig

Bruksendring og tilbygg på Thon Hotel Oslo Airport, Balder Alle 2

📍 Balder alle 2 , 2060 GARDERMOEN

Nøkkelinfo

Sakstype
Bruksendring
Bygningstype
Offentlig
Bruksareal
3,925 m²
Kommune
Ullensaker
Fylke
Akershus
Gnr / Bnr
137 / 46
Saksnummer
2026/610
Fase
Under behandling

Om byggesaken

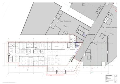
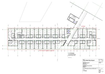
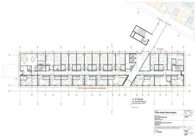
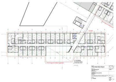
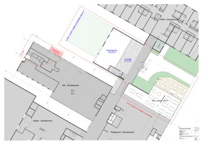
Prosjektet omfatter bruksendring av kontor- og næringsarealer til hotellrom i hele bygg 1, samt bruksendring av møterom til hotellrom i bygg 2. Det bygges tilbygg på 109 m² til resepsjon i to etasjer på nordsiden, og tilbygg på 165 m² til restaurant med utvendig terrasse på sørsiden. Det etableres også et nytt lokk over varelevering på 190 m². Eksisterende glassfasade mot nord byttes ut med en moderne, energieffektiv glassfasade. Tidligere resepsjon ombygges til treningsrom og lounge. Det rives bærende dekke i 2. etasje over resepsjon, samt dekorativt skjermtak og mindre tak ved rømningsvei. Det etableres takterrasse på taket av en suite. Utomhusplanen viser ny belegning, snuplass og flytting av bussholdeplass. Totalt areal for bygget er ca. 3925 m² med fire etasjer, og tilbyggene har høyder på 7,2 m (resepsjon) og 4,5 m (restaurant).

Produkter og materialer

Elektro Brannalarmanlegg og ledesystem

Installasjon av brannalarmanlegg og nødlys/ledesystem

Brann- og sikkerhetssystemer

Isolasjon Isolasjon i tilbygg og fasade

Isolasjon i nye bygningsdeler og fasade

Isolasjon for energieffektivitet

Fasade Overbygg varelevering

Antall: 1

Nytt lokk over varelevering 190 m²

Overbygg over varelevering

Riving Bærende dekke og tak

Riving av bærende dekke i 2. etasje over resepsjon, riving av dekorativt skjermtak og mindre tak ved rømningsvei

Riving av bærende dekke og takoppbygg

VVS Sanitær, varme og kulde

Sanitærinstallasjoner, varme- og kuldeinstallasjoner

VVS-installasjoner for sanitær og klima

Tømrer Montering trekonstruksjoner og fasadekledning

Montering av trekonstruksjoner og fasadekledning i tilbygg

Tømrerarbeid for tilbygg og fasade

Maling Innvendig og utvendig maling

Maling av nye og ombygde flater

Overflatebehandling innvendig og utvendig

Trapper Trapperom

Antall: 1

Eksisterende trapperom beholdes, ny heis installeres

Trapperom og heis

Ventilasjon Nytt ventilasjonsaggregat

Antall: 1

Nytt ventilasjonsaggregat på tak

Ventilasjonsanlegg på tak

Tak Takterrasse

Antall: 1

Takterrasse på suite på tak

Ny takterrasse på taket av suite

Fasade Tilbygg fasade

🧱 Betong og glass

Antall: 2

Tilbygg resepsjon 109 m² i 2 etasjer, tilbygg restaurant 165 m² med terrasse

Tilbygg til resepsjon og restaurant med terrasse

Innvendig Bruksendring og ombygging

Bruksendring kontor/næring til hotellrom, møterom til hotellrom, resepsjon til treningsrom og lounge

Innvendige ombygginger og bruksendringer

Fasade Glassfasade

🧱 Moderne, energieffektiv glassfasade

Byttes ut glassfasade mot nord

Ny energieffektiv glassfasade mot nord

Grunnarbeid Utomhusarbeid

Ny belegning ved inngang, snuplass, flytting av bussholdeplass, uteoppholdsareal og uteservering

Utomhusanlegg og trafikkarealer

Fasader

Bygg 2

Sør
Materiale
Betong
Taktype
Flatt tak
Høyde
14.0 m
Vinduer
36
Dører
1
Synlige etasjer
4

Hovedbygg

Vest
Materiale
Glass
Vinduer
18
Dører
3
Synlige etasjer
4

Thon Hotel Oslo Airport

Nord
Materiale
Glass
Taktype
Flatt tak
Vinduer
38
Dører
2
Synlige etasjer
4

Hendelser

15.04.2026 Mangler i byggesak - Gnr 137 bnr 46 - Baldert alle 2 - Bruksendring - Thon Hotel Oslo Airport
19.01.2026 Søknad om rammetillatelse - Gnr 137 bnr 46 - Baldert alle 2 - Bruksendring - Thon Hotel Oslo Airport