ChangeOfUse UnderBehandling Offentlig

Bruksendring og fasadeendring av Sparebankbygget i Larsnesvegen 65

📍 Larsnesvegen 65 , 6084 LARSNES

Nøkkelinfo

Sakstype
Bruksendring
Bygningstype
Offentlig
Bruksareal
993 m²
Boenheter
11
Kommune
Sande
Fylke
Møre og Romsdal
Gnr / Bnr
87 / 49
Saksnummer
2025/1027
Fase
Under behandling

Om byggesaken

Eksisterende Sparebankbygg på Larsnesvegen 65 gjennomgår bruksendring hvor deler av bygget omgjøres til boligformål. Det etableres 10 hybler med fellesrom i 2. etasje og 1 leilighet i underetasjen. Bygget har tre etasjer med totalt ca. 993 m² BRA. Kontorlokaler og bankfunksjoner opprettholdes i øvrige deler. Fasadeendringer utføres for å forbedre brannsikkerheten, inkludert utskifting av vinduer med brannklassifiserte vinduer og etablering av brannhemmende fasadeelementer. Bygget har betongkonstruksjoner og omfattes av tiltaksklasse 2. Det installeres brannalarmanlegg, røykventilering i trapperom, og det søkes fritak fra krav om heis og sprinkling basert på brukergruppe. Prosjektet krever omfattende innvendige arbeider som lettvegger, våtrom og tekniske installasjoner.

Produkter og materialer

Ventilasjon Brannsikker ventilasjon

Ventilasjonsanlegg utført i ubrennbare materialer med brannmotstand og røykspredningskontroll

Ventilasjonsanlegg med brannsikring

Tømrer Innvendige lettvegger og snikkararbeid

Innredning av hybler og leilighet med lettvegger og våtromsarbeider, utført av LA-LU AS og ZEPELL AS

Innvendige bygningsarbeider for boligformål

Vinduer Brannklassifiserte fasadevinduer

Brannklassifiserte vinduer med krav til EI30 og kjølesone på fasade for å hindre brannspredning

Utskifting av vinduer i fasade for å oppnå brannsikkerhet

Brannvern Brannalarmanlegg

Fullverdig brannalarmanlegg med detektorer i alle etasjer, fellesarealer og leiligheter, alarmstyrke minimum 60 dB

Brannvarsling som kompenserende tiltak for manglende sprinkling

Fasade Brannhemmende fasadeelementer

Fasadeendringer for å beskytte mot brannspredning, inkludert kjølesone med brannmotstand EI30

Fasadeendringer for brannsikring

Brannvern Manuelt brannslokkeutstyr

Handslokkeapparater eller brannslanger plassert i hver branncelle, maks avstand 30 meter

Manuelt slokkeutstyr for tidlig innsats ved brann

VVS Sanitærinstallasjoner

Sanitærinstallasjoner i hybler og leilighet, utført av Varme & Bad AS

Våtromsarbeider og sanitærinstallasjoner

Elektro Brannalarmanlegg og nødlys

Installasjon av brannalarmanlegg og nødlys med strømforsyning sikret i minst 60 minutter

Elektriske installasjoner for brannsikkerhet

Isolasjon Ubrennbar isolasjon i konstruksjoner

Bruk av ubrennbar isolasjon i bygningsdeler for å oppfylle brannkrav

Isolasjon for brannsikkerhet

Grunnarbeid Byggegrunn og flomsikring

Bygget ligger i flomsone med sikkerhetsklasse F2, gulv ligger 20 cm over anbefalt stormflothøyde

Tiltak for trygg byggegrunn og flomsikring

Trapper Røykventilerte trapperom

Antall: 2

Trapperom utført som egne brannceller med røykventilering og brannmotstand EI60

Eksisterende trapperom opprettholdes som rømningsveier med røykventilering

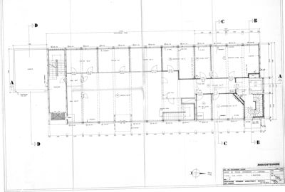
Plantegning

Eksisterende bygg 424.8 m²

Etasje 1 424.8 m²

Rom Areal Vinduer Dører
Garasje 101 0.0 m² 0 0
Trapp 102 0.0 m² 0 0
Gang 103 39.0 m² 0 0
Arkiv 104 118.0 m² 0 0
Kontor 105 16.0 m² 0 0
Kontor 106 16.5 m² 0 0
Kontor 107 16.5 m² 0 0
Kontor 108 19.5 m² 0 0
Utlån 109 10.6 m² 0 0
Bankseksjon 110 33.4 m² 0 0
Toalett 111 0.0 m² 0 0
Bedriftsradiover 112 17.1 m² 0 0
Korridor 113 13.2 m² 0 0
Rum for maskin 114 8.7 m² 0 0
Banksal 115 86.0 m² 0 0

Fasader

Hovedbygg

Øst
Vinduer
22
Dører
3
Synlige etasjer
2

Enebolig

Vest
Høyde
5.6 m
Vinduer
24
Dører
2
Synlige etasjer
3

Leilighet

Øst
Vinduer
18
Dører
1
Synlige etasjer
2
Vest
Vinduer
18
Dører
2
Synlige etasjer
2

Hendelser

22.04.2026 Vedrørande søknad om bruksendring av bygg - Larsnesvegen 65 - gnr 87 bnr 49
25.03.2026 Brannkonsept - Bruksendring av Sparebankbygget - Gnr 87 bnr 49
23.03.2026 Vedrørande søknad om bruksendring - Larsnesvegen 65 - gnr 87 bnr 49
19.03.2026 Tilbakemelding etter møte på rådhuset 16.03.2026
27.02.2026 Fortsatt manglar i søknad om bruksendring - Larsnesvegen 65 - gnr 87 bnr 49
17.02.2026 Larsnesvegen 65 Supplering av søknad 87/49
05.02.2026 Tilbakemelding om manglar i søknad/behov for ytterligare dokumentasjon - Larsnesvegen 65 - gnr 87 bnr 49
23.12.2025 Høyringssvar - Sande kommune - bruksendring på delar av eksisterande bygg - gbnr 87/49 - Larsnesvegen 65 - dispensasjon
16.12.2025 Til uttale - dispensasjon - Sande 87/49 - Larsnesvegen 65 - bruks- og fasadeendring bustad
02.12.2025 Oversending av søknad til uttale - Bustad - Larsnesvegen 65 - gnr 87 bnr 49
24.11.2025 Larsnesvegen 65 Søknad om tillatelse i ett trinn 87/49