ChangeOfUse UnderBehandling Offentlig

Bruksendring med tilbygg og påbygg til forsamlingslokale i Setskogveien 67

📍 Setskogveien 67 , 1940 BJØRKELANGEN

Nøkkelinfo

Sakstype
Bruksendring
Bygningstype
Offentlig
Bruksareal
568 m²
Boenheter
1
Kommune
Aurskog-Høland
Fylke
Akershus
Gnr / Bnr
75 / 519
Saksnummer
23/04278
Fase
Under behandling

Om byggesaken

Prosjektet omfatter bruksendring av en eksisterende bolig med tilhørende tidligere distriktslegekontor til forsamlingslokale, undervisning, kontor og aktivitetssenter. Bygget får tilbygg og påbygg i flere etasjer, inkludert riving av eksisterende garasje og oppføring av ny inngangskonstruksjon. Totalt areal blir ca. 568 m² fordelt på underetasje, 1. og 2. etasje. Det etableres nye parkeringsplasser, inkludert HC-plass, og utearealet tilrettelegges med permeable flater og regnbed for lokal overvannshåndtering. Bygget får universell utforming med rampe og løfteplattform. Fasader utføres i stående trekledning med saltak og sort takstein. Tiltaket krever dispensasjon fra gjeldende reguleringsplan for arealformål, bebyggelsesplan, maksimal mønehøyde og bebygd areal. Flom- og geoteknisk vurdering er utført med anbefalte sikringstiltak. Energiberegning viser at prosjektet tilfredsstiller TEK17 krav. Det er planlagt omfattende rehabilitering og oppgradering for å tilpasse bygget til ny bruk som aktivitetssenter for lokalmiljøet.

Produkter og materialer

Gulv Nye gulv i aktivitetssenter og boligdel

Oppgradering og rehabilitering av gulvflater

Gulvoppgradering i hele bygget

Tak Saltak med sort takstein

🧱 Takstein

Saltak med sort takstein på eksisterende og nye bygningsdeler

Nytt tak på tilbygg og påbygg, integrert med eksisterende tak

Varmepumpe Avtrekksvarmepumpe

Levert avtrekksvarmepumpe iht. tillegg N med virkningsgrad og energibruk dokumentert

Oppvarming med avtrekksvarmepumpe

Solceller Ingen spesifikk info

Ingen opplysninger om solceller i dokumentene

Balkong Balkong med rekkverk i metall og glass

🧱 Tre, metall, glass

Antall: 2

Balkonger i 2. etasje med rekkverk i metall og glass

Nye balkonger for uteopphold

Ventilasjon Ventilasjonsanlegg med varmegjenvinning

Ventilasjonsanlegg med temperaturvirkningsgrad 80%

Nytt ventilasjonsanlegg for aktivitetssenter og boligdel

Trapper Innvendig trapp og utvendig rømningstrapp

🧱 Tre og metall

Antall: 1

Ny trapp til underetasje, utvendig rømningstrapp i metall

Trapper for intern kommunikasjon og rømningsvei

Rekkverk Metallrekkverk og glassrekkverk på balkonger og trapper

🧱 Metall og glass

Rekkverk på balkonger og utvendig trapp

Sikkerhetsrekkverk for balkonger og trapper

Dører Ytterdører og branndører

🧱 Tre og metall

Antall: 20

Inkluderer inngangsdører, branndører, dører til balkonger og trapperom

Nye dører for inngang, rømning og intern bruk i bygget

Vinduer Fasadevindu

🧱 Tre, malt hvit

Antall: 14

Lydisolerende vinduer med Rw + Ctr minimum 30 dB, soverom i 2. etasje med krav opp til 36 dB

Nye og utskiftede vinduer i fasader, tilpasset lydkrav pga. trafikkstøy

Betong Vanntett betong i fundament og kjeller

🧱 Betong

Vanntett betong for flomsikring av kjeller

Flomsikring av kjeller med vanntett betong

Garasjeport Eksisterende garasje rives, ny garasjeplass for leilighet

Antall: 1

Garasje erstattes med ny konstruksjon, plass for enkeltgarasje til leilighet

Garasje for boligdel

Elektro Belysning og teknisk utstyr

Ny belysning og teknisk utstyr iht. energiberegning

Elektriske installasjoner for nytt formål

Terrasse Balkonger og uteareal

🧱 Tre og grus

Balkonger i 2. etasje, permeable utearealer med grus og gress

Utearealer tilpasset aktivitet og rekreasjon

Grunnarbeid Overvannshåndtering med regnbed

Regnbed med filtermedium, permeable flater for infiltrasjon og fordrøyning

Lokal overvannshåndtering på tomten

Maling Innvendig og utvendig maling

Maling av fasader, vinduer og innvendige flater

Overflatebehandling for estetikk og beskyttelse

VVS Sanitærinstallasjoner og løfteplattform

Nye toaletter, HC WC, vaskerom, løfteplattform for universell utforming

Sanitær og tilgjengelighetsløsninger i bygget

Tømrer Bindingsverk og innvendige konstruksjoner

🧱 Tre

Oppføring av bindingsverk for tilbygg og påbygg, rehabilitering av eksisterende konstruksjoner

Tømrerarbeider for ny og eksisterende bygningsmasse

Grunnarbeid Fundamenter og drenering

🧱 Betong, membran

Nye fundamenter for tilbygg, vanntett membran på eksisterende fundamenter, drenering

Grunnarbeider for tilbygg og flomsikring

Fasade Stående trekledning

🧱 Tre, malt sandfarge

Stående panel i sandfarge på alle fasader

Ny kledning på fasader for tilbygg og påbygg

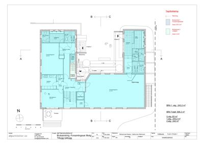
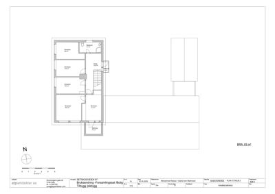
Plantegning

Bruksendring - Forsamlingshall / Bolig 568.2 m²

Etasje 0 83.0 m²

Rom Areal Vinduer Dører
Lager 001 18.3 m² 1 1
Fyrrom 002 11.3 m² 1 1
Gang 003 11.8 m² 0 1
Lager 004 28.3 m² 1 1
Lager 005 9.8 m² 0 1
Kryperom 006 3.3 m² 2 0

Etasje 2 242.0 m²

Rom Areal Vinduer Dører
Stue 201 31.0 m² 1 1
Kjøkken 202 8.1 m² 1 1
Soverom 203 10.3 m² 1 1
Soverom 204 14.2 m² 1 1
Soverom 205 7.3 m² 1 1
Bad 206 5.2 m² 0 1
Gang 207 19.9 m² 0 2
Trapperom 208 19.5 m² 0 1
Lager 209 2.2 m² 0 1
Kontor 210 16.3 m² 1 1
Undervisning/møte/kurs 211 23.1 m² 2 1
Undervisning/møte/kurs 212 23.7 m² 2 1
Undervisning/møte/kurs 213 35.9 m² 2 1
Balkong 214 5.8 m² 0 1
Balkong 215 12.6 m² 0 1

Etasje 1 243.2 m²

Rom Areal Vinduer Dører
Forsamlingsrom 101 81.9 m² 0 1
Aktivitetsrom 102 16.4 m² 0 1
Kjøkken 103 8.7 m² 0 1
Lager/BK 104 1.6 m² 0 1
Gang 105 2.1 m² 0 1
Inngang / trapperom 106 24.4 m² 0 1
Inngang / gang 107 13.3 m² 0 1
Vaskerom 108 7.0 m² 0 1
WC Kvinner 109 3.3 m² 0 1
HC WC 110 5.2 m² 0 1
Lager 111 2.2 m² 0 1
Inngang 112 9.7 m² 0 1
Vask 113 7.6 m² 0 1
Gang 114 5.5 m² 0 1
Gang 115 1.2 m² 0 1
WC 116 2.9 m² 0 1
WC 117 1.7 m² 0 1
HC WC 118 5.8 m² 0 1

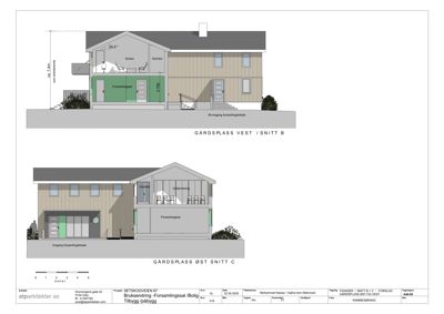
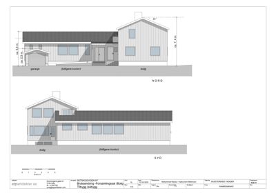
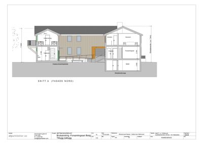
Fasader

Forsamlingshall

Vest
Materiale
Tre
Taktype
Saltak
Høyde
7.4 m
Vinduer
2
Dører
1
Synlige etasjer
2
Øst
Materiale
Tre
Taktype
Saltak
Vinduer
4
Dører
1
Synlige etasjer
2
Nord
Materiale
Tre
Taktype
Saltak
Takmat.
Sort takstein
Høyde
5.5 m
Mønehøyde
7.4 m
Vinduer
5
Dører
1
Balkonger
1
Synlige etasjer
2
Sør
Materiale
Tre
Taktype
Saltak
Takmat.
Sort takstein
Vinduer
12
Dører
1
Balkonger
1
Synlige etasjer
2

Hendelser

16.04.2026 23/04278-15 75/519 Supplering av søknad
20.06.2025 23/04278-14 75/519 Mangler ved søknaden
13.06.2025 23/04278-13 75/519 Søknad om rammetillatelse
04.01.2024 23/04278-12 75/519 Tar til orientering at planavklaring vil bli søkt om ved dispensasjonssøknad
04.01.2024 23/04278-10 75/519 Svar til oppfølgingsspørsmål
04.01.2024 23/04278-9 75/519 Oppfølgingsspørsmål
04.01.2024 23/04278-11 75/519 Bruksendring vil bli søkt planavklart gjennom dispensasjonssøknad
20.12.2023 23/04278-8 75/519 Svar - kommentar til vurdering av prosess for planavklaring
20.12.2023 23/04278-7 75/519 Kommentar til at bruksendring er vurdert å kreve reguleringsplanavklaring
06.11.2023 23/04278-6 75/519 Vurderer at planlagt ny bruk må avklares i reguleringsplan