ChangeOfUse Soeknad Offentlig

Bruksendring til treningssenter i Skytebanen 14, Arendal

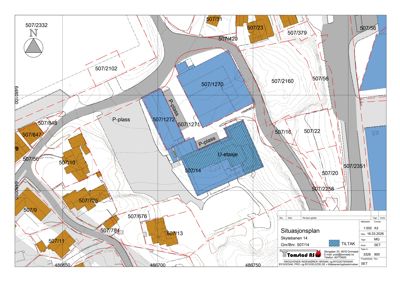
📍 Skytebanen 14 , 4841 ARENDAL

Nøkkelinfo

Sakstype
Bruksendring
Bygningstype
Offentlig
Bruksareal
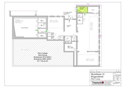
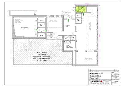
425 m²
Kommune
Arendal
Fylke
Agder
Gnr / Bnr
507 / 14
Saksnummer
2026/10542
Fase
Søknad

Om byggesaken

Bruksendring av U-etasje i eksisterende kontor- og administrasjonsbygg til et ubetjent treningssenter med adgangskontroll. Arealet på 425 m² innredes med aktivitetsflate, inngangsparti med ny glassdør, garderober, dusj, WC, lager, teknisk rom, vaskeri og heis. Innvendige lettvegger rives for å skape større åpne arealer, og tekniske anlegg for elektro og ventilasjon oppgraderes. Fasadeendring omfatter erstatning av to vinduer med en dør i fasade nord. Overflater på vegger, tak og gulv oppgraderes for å gi et moderne og funksjonelt treningsmiljø. Parkeringsdekningen opprettholdes som tidligere med inntil 10 plasser. Eksisterende tilfluktsrom beholdes uendret.

Produkter og materialer

Fasade Ytterdør i glass

Antall: 1

Glassdør som erstatter 2 vinduer i fasade nord

Ny glassdør i fasade nord for inngangsparti

Tømrer Innvendige lettvegger

🧱 lettvegger

Riving av innvendige lettvegger for å skape større åpne arealer

Riving av lettvegger i U-etasje for treningssenter

Elektro Elektroinstallasjon

Oppgradering av elektroinstallasjoner i U-etasje

Nytt elektroanlegg for treningssenter

Maling Veggoverflater og tak

Oppgradering av overflater på vegger og tak

Maling og overflatebehandling i treningssenteret

Heis Heis og heismaskin

Antall: 1

Eksisterende heis og heismaskinrom oppgraderes

Heisinstallasjon i U-etasje

Gulv Gulvbelegg

Oppgradering av gulvflater i treningssenteret

Nye gulvflater i treningssenterets U-etasje

Vinduer Fasadevindu

Antall: -2

To eksisterende vinduer fjernes i fasade nord

Fjerning av to vinduer i fasade nord for ny dør

Ventilasjon Ventilasjonsanlegg

Nytt ventilasjonsanlegg i U-etasje

Oppgradering av ventilasjon for treningssenter

Grunnarbeid Parkeringsplass

Eksisterende parkeringsplasser benyttes, ca. 10 plasser

Parkeringsdekning for treningssenteret

Annet Inngangsparti

Antall: 1

Nytt inngangsparti med glassdør

Oppgradering av inngangsparti for treningssenter

Bad WC, HCWC, Dusj

Oppgradering av WC, HCWC og dusjrom

Nye sanitærinstallasjoner og overflater i WC og dusjrom

Hendelser

21.04.2026 DOK-analyse - 507/14/0/0 Skytebanen 14
21.04.2026 Sentral godkjenning
08.04.2026 Skytebanen 14, melding om mottatt søknad
07.04.2026 Skytebanen 14 Søknad om tillatelse i ett trinn 507/14