ChangeOfUse Rammetillatelse Offentlig

Innredning av kontorlokaler i Strandgaten 59, Bergen

📍 Strandgaten 59 , 5004 BERGEN

Nøkkelinfo

Sakstype
Bruksendring
Bygningstype
Offentlig
Bruksareal
690 m²
Kommune
Bergen
Fylke
Vestland
Gnr / Bnr
165 / 36
Saksnummer
BYGG-2026/12294
Fase
Rammetillatelse

Om byggesaken

Innredning av kontorlokaler for NAV i plan 3 i eksisterende bygg på Strandgaten 59, Bergen. Prosjektet omfatter oppføring av innvendige vegger, tekniske installasjoner som ventilasjon, sanitær og elektro, samt endringer i brannskiller. Arealet som innredes er ca. 690 m² og inkluderer møterom, fokusrom, garderober, HC-toalett, sosialsoner og tekniske rom. Det er tre trapper og heis i bygget, og det stilles krav til trinnfri atkomst, ventilasjon, arbeidsmiljø og universell utforming. Fasadeendringer eller bruksendringer til andre formål inngår ikke i dette tiltaket.

Produkter og materialer

Elektro El-installasjoner

Elektriske installasjoner for kontorlokaler

Tømrer Innvendige vegger og innredning

🧱 Gipsvegger og lettvegger

Innvendige vegger for kontor, møterom, garderober, HC-toalett, sosialsoner

Oppføring av innvendige vegger og rominndeling i kontorlokaler

Elektro Brannalarmanlegg og ledesystem

Brannalarmanlegg og ledesystem for plan 3

Installasjon av brannalarmanlegg og ledesystem i kontorlokaler

Rekkverk Sikringsrekkverk ved trapper og åpninger

Sikringsrekkverk for å ivareta sikkerhet ved trapper og åpninger

VVS Sanitærinstallasjoner

Sanitæranlegg med HC-toalett og vanlige toaletter

Sanitærinstallasjoner i kontorlokaler, inkludert handikaptoalett

Maling Innvendig maling

Innvendig maling av vegger og tak i kontorlokaler

Gulv Gulvbelegg

Gulvbelegg i kontorlokaler, antatt iht. arbeidsmiljøkrav

Grunnarbeid Ingen nye grunnarbeider

Ingen nye grunnarbeider da tiltaket gjelder innvendig ombygging

Fasade Brannskille

Endring av brannskiller i plan 3

Brannskilleendringer i eksisterende kontorlokaler

Heis Eksisterende heis

Antall: 1

Heis på 5,9 m² i plan 3, men med usikker trinnfri atkomst til lokalet

Eksisterende heis for personbefordring, må dokumenteres trinnfri atkomst

Ventilasjon Mekanisk ventilasjonssystem

Antall: 1

Eget ventilasjonssystem for plan 3 med balansert mekanisk ventilasjon

Ventilasjon for tilfredsstillende inneklima og luftkvalitet i kontorlokaler

Trapper Eksisterende trapper

Antall: 3

Tre trapper i bygget, tilgjengelig for plan 3

Eksisterende trapper benyttes for atkomst og rømningsveier

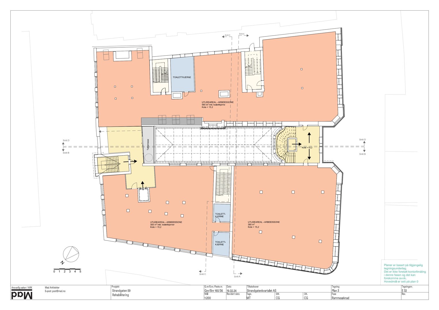
Plantegning

E Plan 3 1,245.2 m²

Etasje 1 1,245.2 m²

Rom Areal Vinduer Dører
Gang 101 0.0 m² 0 0
Toalett 102 0.0 m² 0 0
Toalett 103 0.0 m² 0 0
Toalett 104 0.0 m² 0 0
Toalett 105 0.0 m² 0 0
Utleieareal - Arbeidssone 106 580.0 m² 0 0
Utleieareal - Arbeidssone 107 305.0 m² 0 0
Utleieareal - Arbeidssone 108 360.0 m² 0 0

NAV 1,000.0 m²

Etasje 3 1,000.0 m²

Rom Areal Vinduer Dører
Møterom 101 18.1 m² 0 1
Fokus 102 6.0 m² 0 1
Heis 103 5.9 m² 0 0
Stakt 104 2.6 m² 0 0
Tlf 105 2.1 m² 0 0
Multirom 106 9.4 m² 0 1
Garderobe 107 10.0 m² 0 1
Wc 108 6.3 m² 0 1
Wc 109 6.6 m² 0 1
Hvilerom 110 10.1 m² 0 1
BK/Lager 111 8.6 m² 0 1
Post/arkiv 112 6.0 m² 0 1
Teknisk 113 4.1 m² 0 1
HCwc 114 5.3 m² 0 1
Fokus 115 6.0 m² 0 1
Tlf 116 2.8 m² 0 0
Møterom 117 20.0 m² 0 1
Møterom 118 15.0 m² 0 1
Fokus 119 6.0 m² 0 1
Sluse 120 3.9 m² 0 1
Multirom 121 9.0 m² 0 1
Korridor 122 26.8 m² 0 0
Fokus 123 6.2 m² 0 1
Møterom 124 30.2 m² 0 1
Fokus 125 6.0 m² 0 1
Korridor 126 22.0 m² 0 0
IKT 127 3.4 m² 0 1
Landskap 128 124.4 m² 0 0
Landskap 129 217.4 m² 0 0
Møterom 130 15.0 m² 0 1
Fokus 131 6.1 m² 0 1
Fokus 132 6.0 m² 0 1
Sosialson 133 57.8 m² 0 0

Hendelser

13.04.2026 Kopi. Vi har foretatt etterkontroll av planene for tiltaket
07.04.2026 Kopi - Vi innvilger søknaden om samtykke etter automatisk saksbehandling - 165/36/0/0 Strandgaten 59, innredning av kontor på plan 3
02.04.2026 Strandgaten 59 Søknad om tillatelse i ett trinn 165/36